Mieszkanie na sprzedaż
1 158 028 zł
86 m2




















1 / 20
Szczegóły ogłoszenia
- Symbol oferty M3N-MS-648
- Typ oferty mieszkanie na sprzedaż
- Cena 1 158 028 zł
- Charakterystyka mieszkania 86.42 m2, 4 pokoje
- Budynek apartamentowiec; rok budowy: 2025
- Rozkład mieszkania 1p piętro
- Media Ogrzewanie: pompa ciepła; Woda: pompa; Gaz: brak
- Balkon jest
- Dojazd kostka brukowa
- Ilość sypialni 3
- Instalacje nowe
- Okna PCV
- Otoczenie tereny rekreacyjne
- Stan lokalu do wykończenia
- Technologia budowlana pustak ceramiczny
- Umeblowanie brak
Lokalizacja
- Adres małopolskie, Kraków, Zwierzyniec
Opis nieruchomości
M3N Biuro Nieruchomości przedstawia opracowaną propozycję sprzedaży mieszkania w stanie deweloperskim.
Zapraszamy Państwa do zapoznania się z najważniejszymi informacjami:
2. Dane techniczne
3. Opis inwestycji
4. Opis okolicy
Ogłoszenie dotyczy lokalu mieszkalnego w nowo powstającej inwestycji przy ulicy Księcia Józefa w Krakowie (VII Dzielnica Zwierzyniec, Przegorzały).
- mieszkanie w stanie deweloperskim;
- miejsce postojowe;
- udział w nieruchomości wspólnej;
- ogródek.
Termin realizacji przewidywany jest na II kwartał 2025 roku.
2. DANE TECHNICZNE
1. Część na parterze:
"Dolina Wisły" to projekt kameralnej inwestycji zakładającej budowę 4 lokali mieszkalnych.
Dwa z nich, położone na parterze, są mieszkaniami jednopoziomowymi.
Te natomiast położone na pierwszym piętrze są lokalami dwupoziomowymi i obejmują również poddasze.
"Dolina Wisły" zasługuje na szczególną uwagę ze względu na swoje położenie.
Przegorzały to miejsce o wysokim znaczeniu historycznym, kulturowym i rekreacyjnym.
Niegdyś niewielka podkrakowska wieś, dziś przyciąga mieszkańców Krakowa atrakcyjnymi terenami zielonymi.
Przegorzały wraz z Wolą Justowską, Bielanami i całym Bielańsko-Tynieckim Parkiem Krajobrazowym tworzą enklawę najbardziej prestiżowych lokalizacji w Małopolsce.
Sąsiedztwo Lasu Wolskiego z Ogrodem Zoologicznym, Kopcem Piłsudskiego i niezliczonymi ścieżkami rekreacyjnymi to jednocześnie długie trasy niedzielnych spacerów i porannych joggingów.
Popularnym kierunkiem zwiedzających jest również Winnica Srebrna Góra wraz z Klasztorem Ojców Kamedułów na Bielanach.
Bliskość Wisły to również sąsiedztwo Wiślanej Trasy Rowerowej. Jest to projekt, który zakłada budowę trasy łączącej góry z morzem.
Choć na ukończenie całej ścieżki przyjdzie nam jeszcze poczekać, to już teraz korzystać można z odcinka na terenie województwa śląskiego i małopolskiego.
4. OPIS OKOLICY
"Dolina Wisły" to nie tylko wysokie walory przyrodnicze, ale również doskonała komunikacja i łatwy dostęp do infrastruktury.
Wjazd na autostradę A4 oddalony jest zaledwie 2,8 kilometra, co przekłada się na bardzo krótki czas dojazdu do lotniska w Balicach (15 minut).
Obecnie trwający remont ulic Kościuszki i Zwierzynieckiej poprawi komfort podróżowania do centrum miasta, gdzie dotrzeć można w około 15 minut.
160 metrów stąd zlokalizowany jest przystanek komunikacji miejskiej, skąd odjeżdżają autobusy linii:
Oferta mieszkania dostępna wyłącznie w M3N Biuro Nieruchomości.
Klientom kredytującym się pomagamy w uzyskaniu NAJLEPSZYCH WARUNKÓW na rynku.
Chętnie odpowiem na wszelkie Państwa pytania.
Kinga Wiche
Specjalista ds. Nieruchomości
500 732 177
M3N Biuro Nieruchomości
ul. Cienista 16a
31-831 Kraków
Zapraszamy Państwa do zapoznania się z najważniejszymi informacjami:
- TREŚCIĄ OGŁOSZENIA;
2. Dane techniczne
3. Opis inwestycji
4. Opis okolicy
- FILMEM PROMUJĄCYM;
- WIZUALIZACJĄ;
- RZUTEM;
- PRZYBLIŻONĄ LOKALIZACJĄ (wskazaną na dole ogłoszenia).
Ogłoszenie dotyczy lokalu mieszkalnego w nowo powstającej inwestycji przy ulicy Księcia Józefa w Krakowie (VII Dzielnica Zwierzyniec, Przegorzały).
- OBECNIE PRACE KONCETRUJĄ SIĘ NA WYKONYWANIU INSTALACJI WEWNĘTRZNYCH.
- mieszkanie w stanie deweloperskim;
- miejsce postojowe;
- udział w nieruchomości wspólnej;
- ogródek.
Termin realizacji przewidywany jest na II kwartał 2025 roku.
2. DANE TECHNICZNE
- dane ewidencyjne: działka ewidencyjna 14/7, obręb K-23;
- powierzchnia: 86,42 m2;
- powierzchnia ogródka: 83 m2;
- rozkład: dwustronne, dwupoziomowe;
- ekspozycja: północy-wschód, południowy-zachód;
- okna: PCV, 3-szybowe;
- ściany wewnętrzne: tynki gipsowe, tynki cementowe (w łazience);
- źródło ciepła: indywidualna pompa ciepła Stiebel Eltron HSBC200;
- ogrzewanie: podłogowe + grzejnik łazienkowy wyposażony grzałką elektryczną;
- kanalizacja: miejska;
- wodociąg: miejski;
- instalacje: elektryczna, wodno-kanalizacyjna, światłowód;
- dodatkowe udogodnienia: instalacja przygotowana pod klimatyzację.
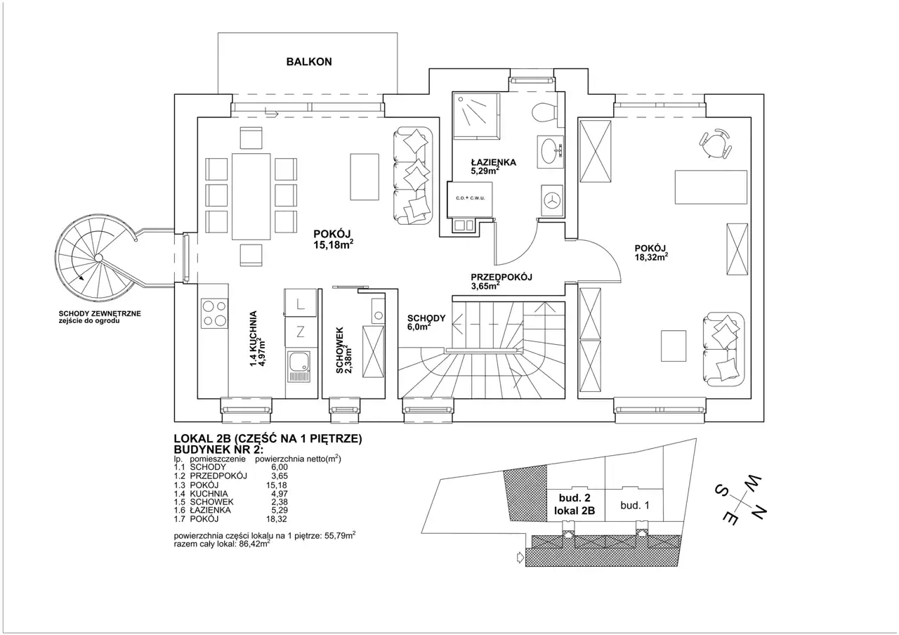
1. Część na parterze:
- klatka schodowa: 5,00 m2.
- schody: 6,00 m2;
- przedpokój: 3,65 m2;
- pokój: 15,18 m2;
- kuchnia: 4,97 m2;
- schowek: 2,38 m2;
- łazienka: 5,29 m2;
- pokój: 18,32 m2.
- schody: 0,80 m2;
- przedpokój: 3,48 m2;
- pokój: 7,78 m2 (18,90 m2);
- łazienka: 3,52 m2 (5,49 m2);
- pokój: 10,05 m2 (23,77 m2).
"Dolina Wisły" to projekt kameralnej inwestycji zakładającej budowę 4 lokali mieszkalnych.
Dwa z nich, położone na parterze, są mieszkaniami jednopoziomowymi.
Te natomiast położone na pierwszym piętrze są lokalami dwupoziomowymi i obejmują również poddasze.
"Dolina Wisły" zasługuje na szczególną uwagę ze względu na swoje położenie.
Przegorzały to miejsce o wysokim znaczeniu historycznym, kulturowym i rekreacyjnym.
Niegdyś niewielka podkrakowska wieś, dziś przyciąga mieszkańców Krakowa atrakcyjnymi terenami zielonymi.
Przegorzały wraz z Wolą Justowską, Bielanami i całym Bielańsko-Tynieckim Parkiem Krajobrazowym tworzą enklawę najbardziej prestiżowych lokalizacji w Małopolsce.
Sąsiedztwo Lasu Wolskiego z Ogrodem Zoologicznym, Kopcem Piłsudskiego i niezliczonymi ścieżkami rekreacyjnymi to jednocześnie długie trasy niedzielnych spacerów i porannych joggingów.
Popularnym kierunkiem zwiedzających jest również Winnica Srebrna Góra wraz z Klasztorem Ojców Kamedułów na Bielanach.
Bliskość Wisły to również sąsiedztwo Wiślanej Trasy Rowerowej. Jest to projekt, który zakłada budowę trasy łączącej góry z morzem.
Choć na ukończenie całej ścieżki przyjdzie nam jeszcze poczekać, to już teraz korzystać można z odcinka na terenie województwa śląskiego i małopolskiego.
4. OPIS OKOLICY
"Dolina Wisły" to nie tylko wysokie walory przyrodnicze, ale również doskonała komunikacja i łatwy dostęp do infrastruktury.
Wjazd na autostradę A4 oddalony jest zaledwie 2,8 kilometra, co przekłada się na bardzo krótki czas dojazdu do lotniska w Balicach (15 minut).
Obecnie trwający remont ulic Kościuszki i Zwierzynieckiej poprawi komfort podróżowania do centrum miasta, gdzie dotrzeć można w około 15 minut.
160 metrów stąd zlokalizowany jest przystanek komunikacji miejskiej, skąd odjeżdżają autobusy linii:
- 229 Salwator - Kamień Szkoła;
- 209 Salwator - Mników Skały;
- 109 Cracovia Stadion - Bielany;
- 239 Salwator - Jeziorzany Pętla;
- 269 Salwator - Czułówek Kapliczka;
- 249 Salwator - Czernichów Rynek.
- szkoła podstawowa;
- przedszkole;
- sklepy spożywcze;
- apteki;
- ośrodek kultury;
- plac zabaw i boisko;
- gabinety lekarskie i weterynaryjne;
- Paintball;
- ośrodek squasha;
- restauracje i hotele.
Oferta mieszkania dostępna wyłącznie w M3N Biuro Nieruchomości.
Klientom kredytującym się pomagamy w uzyskaniu NAJLEPSZYCH WARUNKÓW na rynku.
- PRZYBLIŻONA LOKALIZACJA NIERUCHOMOŚCI ZNAJDUJE SIĘ NA DOLE OGŁOSZENIA.
Chętnie odpowiem na wszelkie Państwa pytania.
Kinga Wiche
Specjalista ds. Nieruchomości
500 732 177
M3N Biuro Nieruchomości
ul. Cienista 16a
31-831 Kraków
Nota prawna
Opis oferty zawarty na stronie internetowej sporządzany jest na podstawie oględzin nieruchomości oraz informacji uzyskanych od właściciela, może podlegać aktualizacji i nie stanowi oferty określonej w art. 66 i następnych K.C.
Kalkulator kredytowy
Formularz kontaktowy