Mieszkanie na sprzedaż





























Szczegóły ogłoszenia
- Symbol oferty APH-MS-17240
- Typ oferty mieszkanie na sprzedaż
- Cena 1 195 000 zł
- Charakterystyka mieszkania 53.24 m2, 2 pokoje
- Budynek apartamentowiec; rok budowy: 2017
- Rozkład mieszkania 1p piętro
- Media Ogrzewanie: C.O. miejskie; Woda: tak - miejska; Gaz: brak
- Bezpieczeństwo Rolety antywłamaniowe
- Balkon duży
- Czynsz 940 zł
- Dojazd asfaltowa/kostka
- Garaż miejsce parkingowe przy budynku
- Ilość sypialni 1
- Instalacje nowe
- Okna PCV
- Otoczenie rzeka
- Plac zabaw Tak
- Stan lokalu bardzo dobry
- Technologia budowlana mieszana
- Winda Tak
Lokalizacja
- Adres małopolskie, Kraków, Podgórze
Opis nieruchomości
NA SPRZEDAŻ 2 POKOJOWE MIESZKANIE Z WIDOKIEM NA WISŁĘ ZABŁOCIE, RIVERSIDE
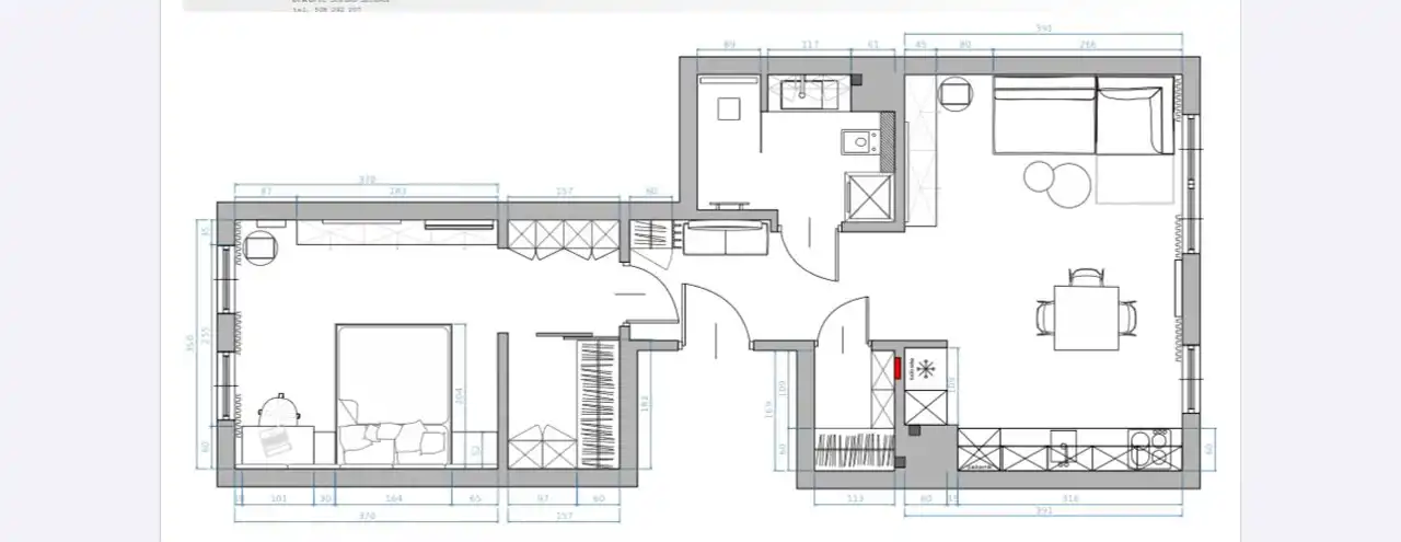
Mamy przyjemność zaprezentować mieszkanie o powierzchni 53,24 m2.
Mieszkanie znajduje się na pierwszym piętrze w inwestycji Riverside na Zabłociu i składa się z:
-Dużego salonu połączonego z Aneksem kuchennym,
-Sypialni,
-Łazienki,
-Przedpokoju,
-Garderoby,
-Schowka,
Do mieszkania przynależy obszerny balkon z widokiem na Wisłę.
Prezentowane mieszkanie z bezpośrednim widokiem na Wisłę, wykończone zostało z wykorzystaniem materiałów najwyższej klasy zgodnie z indywidualnym projektem przygotowanym przez architekta wnętrz. Mieszkanie jest w pełni umeblowane i wyposażone. W salonie znajduje się komplet wypoczynkowy, meble RTV, TV oraz stół z krzesłami. Kuchnia została wyposażona w lodówko zamrażarkę, zmywarkę, okap, piekarnik. Łazienka wyposażona jest w prysznic, toaletę, umywalkę z szafką oraz pralkę. W sypialni znajduje się łóżko dwuosobowe oraz garderoba. W przedpokoju znajduje się dodatkowy schowek.
Wyjście na balkon jest zarówno z salonu. Dużym atutem mieszkania jest widok na Wisłę i tereny zielone.
Na terenie inwestycji znajduje się bezpłatny parking tylko dla mieszkańców.
Obecnie mieszkanie jest wynajmowane i przynosi zysk.
Za dodatkową opłatą istnieje możliwość zakupu komórki lokatorskiej w cenie 40000zł
OPIS BUDYNKU:
RIVERSIDE to inwestycja zlokalizowana przy ul. Zabłocie
Inwestycja składa się z trzech siedmiokondygnacyjnych budynków połączonych garażem podziemnym. Bezpośrednie sąsiedztwo bulwarów Wiślanych zapewnia dostęp do zielonych terenów rekreacyjnych. Do dyspozycji mieszkańców jest ogólnodostępny garaż naziemny oraz plac zabaw dla dzieci.
OPIS LOKALIZACJI:
Inwestycja Riverside położona jest przy Bulwarach Wiślanych. W zaledwie kilkanaście minut można dotrzeć do Rynku Głównego jak i na Kazimierz. Nieopodal znajdują się zielone tereny, doskonałe do spacerów, wycieczek rowerowych oraz odpoczynku. Tuż obok apartamentowca znajduje się Akademia Krakowska, Orange Office Park, który skupia na swoim terenie akie korporacje jak BROWN BROTHERS HARRIMAN, SAPPI, CISCO, ENTERPRISE. Bardzo dobra komunikacja miejska, doskonałe połączenie do centrum miasta.
CENA:
1195000 zł