Mieszkanie na sprzedaż
1 353 800 zł
96 m2




1 / 4
Szczegóły ogłoszenia
- Symbol oferty AP7-MS-14392
- Typ oferty mieszkanie na sprzedaż
- Cena 1 353 800 zł
- Charakterystyka mieszkania 96 m2, 4 pokoje
- Budynek apartamentowiec; rok budowy: 2025
- Rozkład mieszkania 1p piętro
- Media Ogrzewanie: C.O. miejskie; Woda: ciepła - miejska; Gaz: brak
- Balkon jest
- Czynsz Czynsz letni: 600 zł
- Dojazd ASFALTOWA
- Garaż możliwość kupna
- Ilość sypialni 4
- Instalacje nowe
- Okna PCV
- Otoczenie działki zabudowane+tereny zielone
- Stan lokalu deweloperski
- Taras taras duży
- Technologia budowlana mieszana
- Umeblowanie brak
- Winda Tak
Lokalizacja
- Adres małopolskie, Kraków, Bronowice
Opis nieruchomości
Dwupoziomowe mieszkanie z panoramicznymi 5m oknami, antresolą oraz balkonem na kameralnym osiedlu w świetnej lokalizacji blisko galerii Bronowice z rozwiniętą infrastrukturą! Idealne dla rodziny ceniącej ciszę, spokój oraz bezpośredni dojazd do centrum!
ZADZWOŃ I UMÓW SIĘ NA PREZENTACJĘ !
Inwestycja już oddana.
OPIS MIESZKANIA
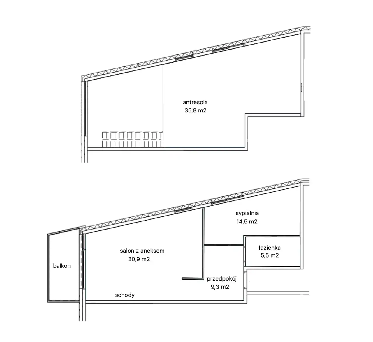
Mieszkanie ma 96 m2 oraz składa się z :
1. Przedpokoju - 9,3 m2
2. Salonu z aneksem - 30,9 m2
3. Sypialni - 14,4 m2
4. Antresoli - 35,8 m2 (z możliwością wydzielania 2 osobnych sypialni oraz łazienki)
5. Łazienki - 5,5 m2
6. Balkonu
LOKALIZACJA I KOMUNIKACJA
400m - przystanek autobusowy
800m - Galeria Bronowice
400m - przedszkole, szkoły
Blisko Paczkomatu
W bliskiej odległości są wszystkie niezbędne punkty handlowo-usługowe: Biedronka, Castorama, Ikea, Makro, a także placówki edukacyjne, kino, teatr, kluby sportowe oraz bliskość ośrodków zdrowotnych.
DLACZEGO MY?
Pomożemy Ci przebrnąć przez cały proces zakupu.
Pomagamy Ci w zakresie finansowania nieruchomości oraz mamy dostęp do szerokiej oferty kredytowej, ubezpieczeniowej oraz leasingowej.
Pomagamy Ci w wyborze najlepszego mieszkania, domu, działki lub nieruchomości komercyjnej.
Posiadamy dostęp do dużej bazy ofert nieruchomości na terenie Krakowa i okolic.
NEGOCJUJEMY INDYWIDUALNE RABATY dla Klientów.
ZADZWOŃ I UMÓW SIĘ NA PREZENTACJĘ!
TO NIC NIE KOSZTUJE!
Zapraszam serdecznie do kontaktu!
*Zdjęcie jest wizualizacją, tak może wyglądać Twoje mieszkanie!
ZADZWOŃ I UMÓW SIĘ NA PREZENTACJĘ !
Inwestycja już oddana.
OPIS MIESZKANIA
Mieszkanie ma 96 m2 oraz składa się z :
1. Przedpokoju - 9,3 m2
2. Salonu z aneksem - 30,9 m2
3. Sypialni - 14,4 m2
4. Antresoli - 35,8 m2 (z możliwością wydzielania 2 osobnych sypialni oraz łazienki)
5. Łazienki - 5,5 m2
6. Balkonu
LOKALIZACJA I KOMUNIKACJA
400m - przystanek autobusowy
800m - Galeria Bronowice
400m - przedszkole, szkoły
Blisko Paczkomatu
W bliskiej odległości są wszystkie niezbędne punkty handlowo-usługowe: Biedronka, Castorama, Ikea, Makro, a także placówki edukacyjne, kino, teatr, kluby sportowe oraz bliskość ośrodków zdrowotnych.
DLACZEGO MY?
Pomożemy Ci przebrnąć przez cały proces zakupu.
Pomagamy Ci w zakresie finansowania nieruchomości oraz mamy dostęp do szerokiej oferty kredytowej, ubezpieczeniowej oraz leasingowej.
Pomagamy Ci w wyborze najlepszego mieszkania, domu, działki lub nieruchomości komercyjnej.
Posiadamy dostęp do dużej bazy ofert nieruchomości na terenie Krakowa i okolic.
NEGOCJUJEMY INDYWIDUALNE RABATY dla Klientów.
ZADZWOŃ I UMÓW SIĘ NA PREZENTACJĘ!
TO NIC NIE KOSZTUJE!
Zapraszam serdecznie do kontaktu!
*Zdjęcie jest wizualizacją, tak może wyglądać Twoje mieszkanie!
Nota prawna
Opis oferty zawarty na stronie internetowej sporządzany jest na podstawie oględzin nieruchomości oraz informacji uzyskanych od właściciela, może podlegać aktualizacji i nie stanowi oferty określonej w art. 66 i następnych K.C.
Kalkulator kredytowy
Formularz kontaktowy