Mieszkanie na sprzedaż
1 564 400 zł
196 m2








1 / 8
Szczegóły ogłoszenia
- Symbol oferty SPEK-MS-5924
- Typ oferty mieszkanie na sprzedaż
- Cena 1 564 400 zł
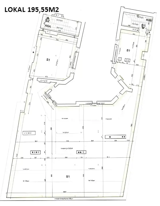
- Charakterystyka mieszkania 195.55 m2, 7 pokoi
- Budynek kamienica; rok budowy: 1914
- Rozkład mieszkania 4p piętro
- Media Ogrzewanie: inne; Woda: brak; Gaz: jest
- Balkon Barierka
- Czynsz Czynsz letni: 1 zł
- Dojazd ASFALTOWA
- Instalacje WODNA, GAZOWA
- Okna stare drewniane
- Otoczenie centrum miasta
- Stan lokalu do adaptacji
- Technologia budowlana beton, cegła
Lokalizacja
- Adres małopolskie, Kraków, Stare Miasto
Opis nieruchomości
STRYCH DO ADAPTACJI W SAMYM CENTRUM PRZY PLANTACH !!!
Oferuję Państwu lokal mieszkalny o powierzchni po podłodze: 278,05m² na ul. Krowoderska,
Lokal usytuowany jest na czwartym piętrze w 4 -piętrowej kamienicy z 1914 roku .
Powierzchnia strychu :
- po podłodze: 278,05m²
- użytkowa: 195,55m²
- mierzona powyżej 2,20m: 155,65m²
Wejście z jednej klatki schodowej z możliwością wykonania dodatkowego wejścia z klatki frontowej jest wyodrębnione miejsce na windę zewnętrzną .
Istnieje możliwość zakupu drugiego lokalu (strychu) o powierzchni 48,52 m², znajdującego się obok w cenie 388 160 PLN
LOKALIZACJA
Największą zaletą tego miejsca jest lokalizacja
5 min spacerkiem do Rynku , 8 min do Galerii Krakowskiej i dworca PKP, PKS
Rozbudowana infrastruktura : w sąsiedztwie Stary Kleparz , liczne sklepy , piekarnie , muzea oraz banki, nawet basen YMCA jest 150 m od mieszkania oraz kultowe kino studyjne Agrafka.
Tereny zielone : po drugiej stronie ulicy Planty.
Doskonała komunikacja miejska liczne linie tramwajowe oraz autobusowe
CENA: 1564 400 PLN
Kontakt w sprawie oferty : Mariusz 792-484-802
Spektrum Estate Wioletta Grubarek
30-074 Kraków , ul. Kazimierza Wielkiego 58/3
Finansuj zakup nieruchomości z naszymi specjalistami.
Pośrednik odpowiedzialny zawodowo za wykonanie umowy pośrednictwa - Nr Licencji 5989
Przed prezentacją obowiązuje podpisanie standardowej umowy pośrednictwa.
Oferty zamieszczone na naszych stronach internetowych nie stanowią oferty w rozumieniu kodeksu cywilnego
Wszelkie dane dotyczące nieruchomości uzyskano na podstawie oświadczeń właściciela
Oferuję Państwu lokal mieszkalny o powierzchni po podłodze: 278,05m² na ul. Krowoderska,
Lokal usytuowany jest na czwartym piętrze w 4 -piętrowej kamienicy z 1914 roku .
Powierzchnia strychu :
- po podłodze: 278,05m²
- użytkowa: 195,55m²
- mierzona powyżej 2,20m: 155,65m²
Wejście z jednej klatki schodowej z możliwością wykonania dodatkowego wejścia z klatki frontowej jest wyodrębnione miejsce na windę zewnętrzną .
Istnieje możliwość zakupu drugiego lokalu (strychu) o powierzchni 48,52 m², znajdującego się obok w cenie 388 160 PLN
LOKALIZACJA
Największą zaletą tego miejsca jest lokalizacja
5 min spacerkiem do Rynku , 8 min do Galerii Krakowskiej i dworca PKP, PKS
Rozbudowana infrastruktura : w sąsiedztwie Stary Kleparz , liczne sklepy , piekarnie , muzea oraz banki, nawet basen YMCA jest 150 m od mieszkania oraz kultowe kino studyjne Agrafka.
Tereny zielone : po drugiej stronie ulicy Planty.
Doskonała komunikacja miejska liczne linie tramwajowe oraz autobusowe
CENA: 1564 400 PLN
Kontakt w sprawie oferty : Mariusz 792-484-802
Spektrum Estate Wioletta Grubarek
30-074 Kraków , ul. Kazimierza Wielkiego 58/3
Finansuj zakup nieruchomości z naszymi specjalistami.
Pośrednik odpowiedzialny zawodowo za wykonanie umowy pośrednictwa - Nr Licencji 5989
Przed prezentacją obowiązuje podpisanie standardowej umowy pośrednictwa.
Oferty zamieszczone na naszych stronach internetowych nie stanowią oferty w rozumieniu kodeksu cywilnego
Wszelkie dane dotyczące nieruchomości uzyskano na podstawie oświadczeń właściciela
Nota prawna
Opis oferty zawarty na stronie internetowej sporządzany jest na podstawie oględzin nieruchomości oraz informacji uzyskanych od właściciela, może podlegać aktualizacji i nie stanowi oferty określonej w art. 66 i następnych K.C.
Kalkulator kredytowy
Formularz kontaktowy