Mieszkanie na sprzedaż
1 568 900 zł
117 m2



1 / 3
Szczegóły ogłoszenia
- Symbol oferty AP7-MS-14394
- Typ oferty mieszkanie na sprzedaż
- Cena 1 568 900 zł
- Charakterystyka mieszkania 117 m2, 5 pokoi
- Budynek apartamentowiec; rok budowy: 2027
- Rozkład mieszkania 4p piętro
- Media Ogrzewanie: C.O. miejskie; Woda: ciepła - miejska; Gaz: brak
- Balkon jest
- Dojazd ASFALTOWA
- Garaż możliwość kupna
- Ilość sypialni 4
- Instalacje nowe
- Okna PCV
- Otoczenie działki zabudowane+tereny zielone
- Stan lokalu deweloperski
- Taras taras duży
- Technologia budowlana mieszana
- Umeblowanie brak
- Winda Tak
Lokalizacja
- Adres małopolskie, Kraków, Prądnik Biały
Opis nieruchomości
Dwupoziomowe 5 pokojowe mieszkanie z panoramicznymi oknami, antresolą, balkonem oraz tarasem na dachu na kameralnym osiedlu w świetnej lokalizacji blisko trasy Wolbromskiej z rozwiniętą infrastrukturą! Idealne dla rodziny ceniącej ciszę, spokój oraz bezpośredni dojazd do centrum!
ZADZWOŃ I UMÓW SIĘ NA PREZENTACJĘ !
Oddanie inwestycji w 2 kwartale 2027 roku.
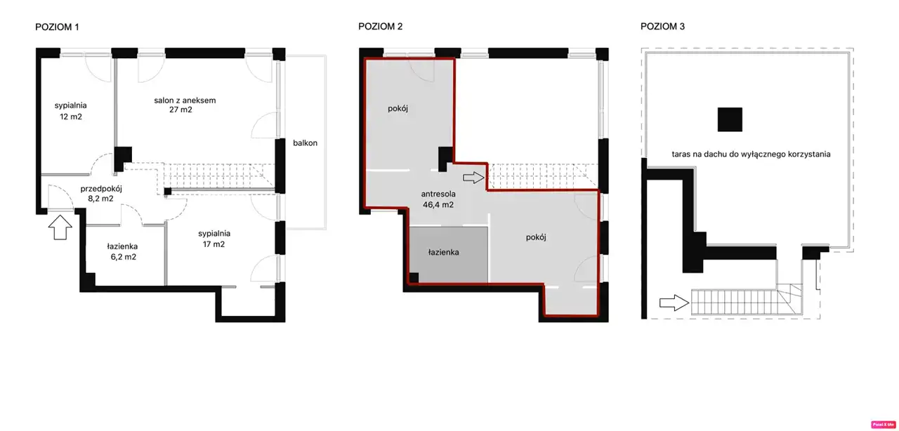
OPIS MIESZKANIA
Mieszkanie ma 117 m2 oraz składa się z :
Poziom 1 - 70,5 m2 :
1. Przedpokoju - 8,2 m2
2. Salonu z aneksem - 27 m2
3. Sypialni 1 - 12 m2
4. Sypialni 2 - 17 m2 ( wydzielona garderoba )
5. Łazienki - 6,2 m2
6. Balkonu
Poziom 2 - 46,4 m2 :
7. Antresoli - 40,1m2 (z możliwością wydzielania 2 osobnych sypialni )
8. Powierzchni dodatkowej - 6,2 m2 ( pod łazienkę)
Poziom 3 :
9. Powierzchnia do wyłącznego korzystania - taras na dachu
LOKALIZACJA I KOMUNIKACJA
5 min pieszo - przystanek autobusowy,
10 min pieszo - przystanek tramwajowy,
2 min autem - Opolska (obwodnica),
1-2 min autem - Lidl, Biedronka,
1-5 min autem - szkoły, przedszkola, żłobki,
10 min spacerem - Park Krowoderski oraz Park Wyspiańskiego.
DLACZEGO MY?
Pomożemy Ci przebrnąć przez cały proces zakupu.
Pomagamy Ci w zakresie finansowania nieruchomości oraz mamy dostęp do szerokiej oferty kredytowej, ubezpieczeniowej oraz leasingowej.
Pomagamy Ci w wyborze najlepszego mieszkania, domu, działki lub nieruchomości komercyjnej.
Posiadamy dostęp do dużej bazy ofert nieruchomości na terenie Krakowa i okolic.
NEGOCJUJEMY INDYWIDUALNE RABATY dla Klientów.
ZADZWOŃ I UMÓW SIĘ NA PREZENTACJĘ!
TO NIC NIE KOSZTUJE!
Zapraszam serdecznie do kontaktu!
*Zdjęcie jest wizualizacją, tak może wyglądać Twoje mieszkanie!
ZADZWOŃ I UMÓW SIĘ NA PREZENTACJĘ !
Oddanie inwestycji w 2 kwartale 2027 roku.
OPIS MIESZKANIA
Mieszkanie ma 117 m2 oraz składa się z :
Poziom 1 - 70,5 m2 :
1. Przedpokoju - 8,2 m2
2. Salonu z aneksem - 27 m2
3. Sypialni 1 - 12 m2
4. Sypialni 2 - 17 m2 ( wydzielona garderoba )
5. Łazienki - 6,2 m2
6. Balkonu
Poziom 2 - 46,4 m2 :
7. Antresoli - 40,1m2 (z możliwością wydzielania 2 osobnych sypialni )
8. Powierzchni dodatkowej - 6,2 m2 ( pod łazienkę)
Poziom 3 :
9. Powierzchnia do wyłącznego korzystania - taras na dachu
LOKALIZACJA I KOMUNIKACJA
5 min pieszo - przystanek autobusowy,
10 min pieszo - przystanek tramwajowy,
2 min autem - Opolska (obwodnica),
1-2 min autem - Lidl, Biedronka,
1-5 min autem - szkoły, przedszkola, żłobki,
10 min spacerem - Park Krowoderski oraz Park Wyspiańskiego.
DLACZEGO MY?
Pomożemy Ci przebrnąć przez cały proces zakupu.
Pomagamy Ci w zakresie finansowania nieruchomości oraz mamy dostęp do szerokiej oferty kredytowej, ubezpieczeniowej oraz leasingowej.
Pomagamy Ci w wyborze najlepszego mieszkania, domu, działki lub nieruchomości komercyjnej.
Posiadamy dostęp do dużej bazy ofert nieruchomości na terenie Krakowa i okolic.
NEGOCJUJEMY INDYWIDUALNE RABATY dla Klientów.
ZADZWOŃ I UMÓW SIĘ NA PREZENTACJĘ!
TO NIC NIE KOSZTUJE!
Zapraszam serdecznie do kontaktu!
*Zdjęcie jest wizualizacją, tak może wyglądać Twoje mieszkanie!
Nota prawna
Opis oferty zawarty na stronie internetowej sporządzany jest na podstawie oględzin nieruchomości oraz informacji uzyskanych od właściciela, może podlegać aktualizacji i nie stanowi oferty określonej w art. 66 i następnych K.C.
Kalkulator kredytowy
Formularz kontaktowy