Mieszkanie na sprzedaż
1 590 000 zł
97 m2
















1 / 16
Szczegóły ogłoszenia
- Symbol oferty DNX-MS-30544
- Typ oferty mieszkanie na sprzedaż
- Cena 1 590 000 zł
- Charakterystyka mieszkania 97.4 m2, 3 pokoje
- Budynek kamienica; rok budowy: 1887
- Rozkład mieszkania 1p piętro
- Media Ogrzewanie: C.O. GAZOWE; Woda: tak - miejska
- Balkon jest
- Czynsz Czynsz letni: 350 zł
- Okna PCV
- Otoczenie centrum miasta
- Stan lokalu do odświeżenia
- Technologia budowlana cegła
Lokalizacja
- Adres małopolskie, Kraków, Stare Miasto
Opis nieruchomości
PREZENTUJEMY PAŃSTWU NA SPRZEDAŻ WYJĄTKOWĄ NIERUCHOMOŚĆ
UNIKALNA OFERTA NA SPRZEDAŻ MIESZKANIA POŁOŻONEGO W NIEDALEKIEJ ODLEGŁOŚCI OD WAWELU. DWA MIESZKANIA NA ODRĘBNYCH KSIĘGACH WIECZYSTYCH !
KAMIENICA Z 1887 ROKU PROJEKTU ARCHITEKTA KAROLA KNAUS.
TAKA OFERTA NA RYNKU NIERUCHOMOŚĆI POJAWIA SIĘ RZADKO !
NAJWAŻNIEJSZE ATUTY:
- DWA ODRĘBNE WEJŚCIA DO MIESZKANIA Z MOŻLIWOŚCIA POŁĄCZENIA
- wspaniała inwestycja również pod najem krótkoterminowy
- w pobliżu zamek królewski Wawel 350 metrów
- bulwary Wiślane w odległości 200 metrów
- lokalizacja zapewnia szybki dostęp do komunikacji miejskiej w każdą stronę miasta
- parę minut do Rynku Głównego
- dużym atutem jest możliwość zmiany układu mieszkań
Oferta składa się z dwóch odrębnych mieszkań, na odrębnych księgach wieczystych, które właściciel chce sprzedać w całości. Obydwa mieszkania wysokie na 3,8 m, /można wykonać antresolę/, graniczące ze sobą ścianą.
Usytuowane na pierwszym piętrze w przedwojennej trzy piętrowej kamienicy.
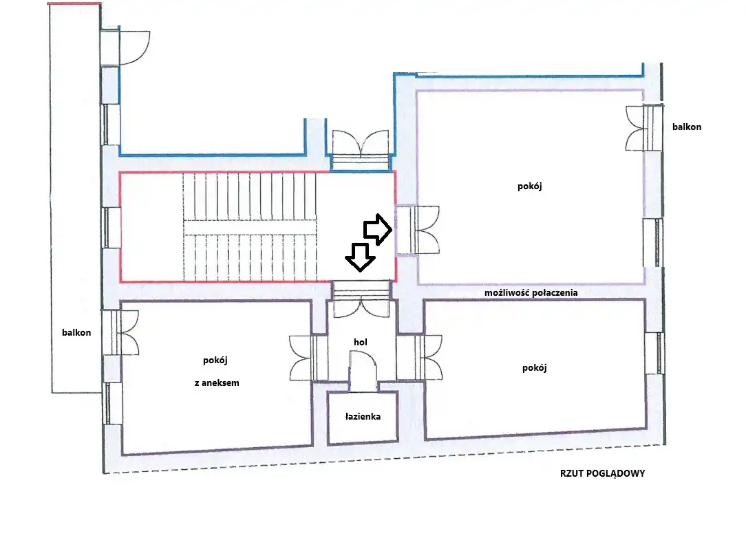
ROZKŁAD POMIESZCZEŃ:/rzut pod ofertą/
1/. Mieszkanie o układzie jednostronnym o metrażu 32,9 m2 składające się z jednego pokoju z wejściem z klatki. Odrębna księga wieczysta.
* pokój 32,9m2 z wyjściem na balkon
2/. Mieszkanie dwustronne o metrażu 49,9 m2
* przedpokój 4,2m2
* duży pokój 22,10 m2 z możliwością połączenia z mieszkaniem obok.
* łazienka z wanną 2,6 m2
* przestronny salon z aneksem kuchennym 21 m2 - z wyjściem na balkon
Do mieszkań przynależą również dwie piwnice (11,8 m2 +2,8m2)
Mniejsze mieszkanie jest w stanie do wykończenia tzn. uzupełnienie parkietu, odmalowanie.
Natomiast większe mieszkanie zapewne wymaga modernizacji łazienki / wg. uznania nabywcy/.
Mieszkania ogrzewane poprzez ogrzewanie gazowe własne piecem II-funkcyjnym.
Posiadają wszystkie media . Duże okna doświetlają w sposób wystarczający mieszkania.
Koszty:
Płacony czynsz administracyjny w wysokości 350 zł plus media.
Status własności: odrębna własność na księdze wieczystej bez żadnych obciążeń. /dwie księgi wieczyste/.
UNIKALNA OFERTA NA SPRZEDAŻ MIESZKANIA POŁOŻONEGO W NIEDALEKIEJ ODLEGŁOŚCI OD WAWELU. DWA MIESZKANIA NA ODRĘBNYCH KSIĘGACH WIECZYSTYCH !
KAMIENICA Z 1887 ROKU PROJEKTU ARCHITEKTA KAROLA KNAUS.
TAKA OFERTA NA RYNKU NIERUCHOMOŚĆI POJAWIA SIĘ RZADKO !
NAJWAŻNIEJSZE ATUTY:
- DWA ODRĘBNE WEJŚCIA DO MIESZKANIA Z MOŻLIWOŚCIA POŁĄCZENIA
- wspaniała inwestycja również pod najem krótkoterminowy
- w pobliżu zamek królewski Wawel 350 metrów
- bulwary Wiślane w odległości 200 metrów
- lokalizacja zapewnia szybki dostęp do komunikacji miejskiej w każdą stronę miasta
- parę minut do Rynku Głównego
- dużym atutem jest możliwość zmiany układu mieszkań
Oferta składa się z dwóch odrębnych mieszkań, na odrębnych księgach wieczystych, które właściciel chce sprzedać w całości. Obydwa mieszkania wysokie na 3,8 m, /można wykonać antresolę/, graniczące ze sobą ścianą.
Usytuowane na pierwszym piętrze w przedwojennej trzy piętrowej kamienicy.
ROZKŁAD POMIESZCZEŃ:/rzut pod ofertą/
1/. Mieszkanie o układzie jednostronnym o metrażu 32,9 m2 składające się z jednego pokoju z wejściem z klatki. Odrębna księga wieczysta.
* pokój 32,9m2 z wyjściem na balkon
2/. Mieszkanie dwustronne o metrażu 49,9 m2
* przedpokój 4,2m2
* duży pokój 22,10 m2 z możliwością połączenia z mieszkaniem obok.
* łazienka z wanną 2,6 m2
* przestronny salon z aneksem kuchennym 21 m2 - z wyjściem na balkon
Do mieszkań przynależą również dwie piwnice (11,8 m2 +2,8m2)
Mniejsze mieszkanie jest w stanie do wykończenia tzn. uzupełnienie parkietu, odmalowanie.
Natomiast większe mieszkanie zapewne wymaga modernizacji łazienki / wg. uznania nabywcy/.
Mieszkania ogrzewane poprzez ogrzewanie gazowe własne piecem II-funkcyjnym.
Posiadają wszystkie media . Duże okna doświetlają w sposób wystarczający mieszkania.
Koszty:
Płacony czynsz administracyjny w wysokości 350 zł plus media.
Status własności: odrębna własność na księdze wieczystej bez żadnych obciążeń. /dwie księgi wieczyste/.
Lokalizacja tej kamienicy jest niesamowicie kluczowa:
Nieruchomość zlokalizowane jest w jednej z najstarszych dzielnic Krakowa - Starym Mieście.
W niedalekiej odległości znajdują się między innymi Bulwary Wiślane, Planty Dietlowskie, Zamek Królewski oddalony 4 minuty spacerem, Dzielnica Kazimierz.
Zapraszam do kontaktu w celu uzyskania dodatkowych informacji oraz umówienia się na prezentację.
OFERTA NA WYŁĄCZNOŚĆ - DOSTĘPNA TYLKO W NASZYM BIURZE
Nota prawna
Opis oferty zawarty na stronie internetowej sporządzany jest na podstawie oględzin nieruchomości oraz informacji uzyskanych od właściciela, może podlegać aktualizacji i nie stanowi oferty określonej w art. 66 i następnych K.C.
Kalkulator kredytowy
Formularz kontaktowy