Mieszkanie na sprzedaż
2 100 000 zł
144 m2



















1 / 19
Szczegóły ogłoszenia
- Symbol oferty DNX-MS-29674
- Typ oferty mieszkanie na sprzedaż
- Cena 2 100 000 zł
- Charakterystyka mieszkania 144.12 m2, 6 pokoi
- Budynek blok; rok budowy: 2009
- Rozkład mieszkania parter piętro
- Media Ogrzewanie: miejskie; Woda: ciepła - miejska; Gaz: jest
- Balkon jest
- Czynsz Czynsz letni: 1020 zł
- Ilość sypialni 6
- Instalacje dobre
- Okna PCV
- Otoczenie osiedle
- Stan lokalu do adaptacji
- Technologia budowlana tradycyjna
- Winda Tak
Lokalizacja
- Adres małopolskie, Kraków, Dębniki
Opis nieruchomości
Bliski Ruczaj! 6 pokojowe mieszkanie o powierzchni 144,12 m2 z balkonem, tarasem i komórką lokatorską położone przy ulicy Norymberskiej.
Na chwilę obecną brak możliwości wykonania zdjęć.
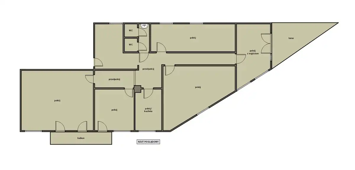
Prezentowane mieszkanie położone jest na parterze 3 piętrowego budynku z 2009 roku.
Aktualny oraz pierwotny układ przedstawiają rzuty.
Mieszkanie wymaga adaptacji - doskonale sprawdzi się dla dużej rodziny lub pod działalność typu kancelaria, gabinety czy punkt przedszkolny.
Okna PCV, wychodzą na północ, południe i wschód.
Czynsz wynosi 1020 zł, do tego należy doliczyć opłaty za wodę (w zależności od zużycia) i śmieci (w zależności od ilości osób). Ogrzewanie miejskie.
Do mieszkania przynależy komórka lokatorska.
Lokalizacja:
- osiedle zielone, z ładnie zagospodarowanym dziedzińcem
- w najbliższej okolicy liczne punkty handlowo - usługowe, szkoły, przedszkola, żłobki
- w najbliższej okolicy Zalew Zakrzówek i liczne tereny rekreacyjne
- doskonała komunikacja do centrum (tramwaj, autobus) - 4 minuty do przystanków
- dogodny wyjazd na obwodnicę
Zadzwoń! Opowiem o szczegółach, zaproszę na prezentację i doradzę jak przyjacielowi!
Na chwilę obecną brak możliwości wykonania zdjęć.
Prezentowane mieszkanie położone jest na parterze 3 piętrowego budynku z 2009 roku.
Aktualny oraz pierwotny układ przedstawiają rzuty.
Mieszkanie wymaga adaptacji - doskonale sprawdzi się dla dużej rodziny lub pod działalność typu kancelaria, gabinety czy punkt przedszkolny.
Okna PCV, wychodzą na północ, południe i wschód.
Czynsz wynosi 1020 zł, do tego należy doliczyć opłaty za wodę (w zależności od zużycia) i śmieci (w zależności od ilości osób). Ogrzewanie miejskie.
Do mieszkania przynależy komórka lokatorska.
Lokalizacja:
- osiedle zielone, z ładnie zagospodarowanym dziedzińcem
- w najbliższej okolicy liczne punkty handlowo - usługowe, szkoły, przedszkola, żłobki
- w najbliższej okolicy Zalew Zakrzówek i liczne tereny rekreacyjne
- doskonała komunikacja do centrum (tramwaj, autobus) - 4 minuty do przystanków
- dogodny wyjazd na obwodnicę
Zadzwoń! Opowiem o szczegółach, zaproszę na prezentację i doradzę jak przyjacielowi!
Nota prawna
Opis oferty zawarty na stronie internetowej sporządzany jest na podstawie oględzin nieruchomości oraz informacji uzyskanych od właściciela, może podlegać aktualizacji i nie stanowi oferty określonej w art. 66 i następnych K.C.
Kalkulator kredytowy
Formularz kontaktowy