Mieszkanie na sprzedaż
259 969 zł
41 m2






1 / 6
Szczegóły ogłoszenia
- Symbol oferty DST-MS-445
- Typ oferty mieszkanie na sprzedaż
- Cena 259 969 zł
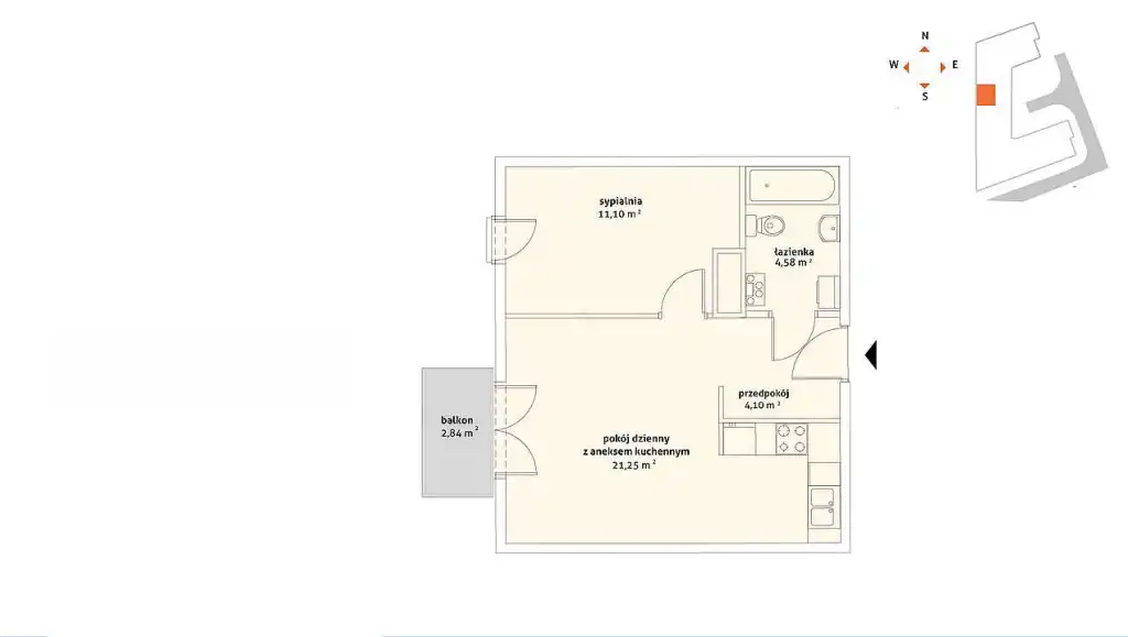
- Charakterystyka mieszkania 40.94 m2, 2 pokoje
- Budynek blok; rok budowy: 2015
- Rozkład mieszkania 2p piętro
- Media Ogrzewanie: miejskie
- Garaż miejsce parkingowe
- Ilość sypialni 1
- Instalacje nowe
- Okna nowe PCV
- Stan lokalu deweloperski
- Technologia budowlana mieszana
- Winda Tak
Lokalizacja
- Adres małopolskie, Kraków, Podgórze Duchackie
Opis nieruchomości
Do sprzedania mieszkanie w stanie deweloperskim położone w V – kondygnacyjnym budynku przy ulicy Halszki – w dzielnicy Krakowa – Podgórze Duchackie/ Kurdwanów. Inwestycja na Halszki to nowoczesny, energooszczędny wielorodzinny budynek mieszkalny. W inwestycji znajduje się 94 funkcjonalnych mieszkań – kawalerki, 2, 3 i 4 pokojowe mieszkania. Metraż mieszkań w inwestycji od 29,93 m2 do 77,66 m2. Wszystkie mieszkania posiadać będą balkony, dodatkowo mieszkania na parterze będą mieć ogródki do samodzielnej aranżacji. Budynek o atrakcyjnej formie architektonicznej, komfortowo zaprojektowane wnętrza oraz nowoczesna technologia wykonania. Parking oraz komórki lokatorskie – w podziemiu budynków. Inwestycja spełnia standardy budynków energooszczędnych – co dla nabywców oznacza możliwość otrzymania dopłaty do kredytu hipotecznego w ramach programu Narodowego Funduszu Ochrony Środowiska i Gospodarki Wodnej (NFOŚiGW). Lokalizacja bardzo dobrze skomunikowana z pozostałymi częściami miasta, blisko przystanki autobusowe i tramwajowe. Dobrze rozwinięta infrastruktura – w pobliżu markety, przedszkola, szkoły, liczne sklepiki, sieci usługowe, place targowe oraz markety, do Galerii Bonarka ok. 3,2 km. Inwestycja w budowie – termin oddania - czerwiec 2016 r. SZCZEGÓŁOWE INFORMACJE O WSZYSTKICH INWESTYCJACH DEWELOPERSKICH Z KRAKOWA I OKOLIC (ok. 1500 mieszkań/ 49 Inwestycji ) ORAZ POMOC W UZYSKANIU KREDYTU - prosimy o kontakt telefoniczny. USŁUGI BIURA NIERUCHOMOŚCI ORAZ DORADZTWO KREDYTOWE - BEZPŁATNIE! Serdecznie zapraszamy!
Nota prawna
Opis oferty zawarty na stronie internetowej sporządzany jest na podstawie oględzin nieruchomości oraz informacji uzyskanych od właściciela, może podlegać aktualizacji i nie stanowi oferty określonej w art. 66 i następnych K.C.
Kalkulator kredytowy
Formularz kontaktowy