Mieszkanie na sprzedaż
552 700 zł
38 m2


1 / 2
Szczegóły ogłoszenia
- Symbol oferty WSCH-MS-7024
- Typ oferty mieszkanie na sprzedaż
- Cena 552 700 zł
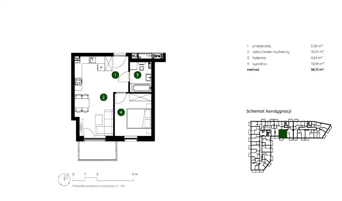
- Charakterystyka mieszkania 38.11 m2, 2 pokoje
- Budynek blok; rok budowy: 2027
- Rozkład mieszkania 1p piętro
- Media Ogrzewanie: C.O. miejskie; Gaz: brak
- Balkon średni
- Garaż garaż pod budynkiem
- Okna PCV
- Stan lokalu deweloperski
- Technologia budowlana mieszana
- Winda Tak
Lokalizacja
- Adres małopolskie, Kraków, Bieżanów-Prokocim
Opis nieruchomości
Wszystkie mieszkania dostępne bez prowizji dla Klienta Kupującego
Promocja do 31.10
W cenie mieszkania miejsce postojowe w hali garażowej oraz system smart home
2 pokojowe mieszkanie o pow. 38m2 położone na 1 piętrze 4 piętrowego bloku z windą.
Mieszkanie składające się z salonu z aneksem kuchennym, sypialni, przedpokoju, łazienki oraz ogródka
Agnieszka Nowak tel. 666 312 237
Promocja do 31.10
W cenie mieszkania miejsce postojowe w hali garażowej oraz system smart home
2 pokojowe mieszkanie o pow. 38m2 położone na 1 piętrze 4 piętrowego bloku z windą.
Mieszkanie składające się z salonu z aneksem kuchennym, sypialni, przedpokoju, łazienki oraz ogródka
- Mieszkania oddawane w stanie deweloperskim
- Ogrzewanie oraz ciepła woda MPEC
- Miejsca garażowe: 30.000zł miejsca naziemne 20.000zł
- Komórki lokatorskie: 7000zł /m2
- Ekspozycja okien: południowy wschód
- Bardzo dobra lokalizacja: w sąsiedztwie szkoła podstawowa, przystanek autobusowy, market ATUT, Szybka Kolej SKA
- Termin oddania inwestycji : II kwartał 2027r
Agnieszka Nowak tel. 666 312 237
- Kupując mieszkanie za naszym pośrednictwem nie płacisz prowizji , wszystkie ceny mieszkań są cenami Dewelopera wraz z aktualnymi promocjami
- Otrzymujesz karty rabatowe -15% do sklepów Bel - Pol oraz kupon rabatowy -10% do sklepów Leroy Merlin
- Dodatkowo możesz skorzystać z darmowej obsługi Doradcy Kredytowego firmy Notus oraz oferty firmy wykończeniowej Excellent
Nota prawna
Opis oferty zawarty na stronie internetowej sporządzany jest na podstawie oględzin nieruchomości oraz informacji uzyskanych od właściciela, może podlegać aktualizacji i nie stanowi oferty określonej w art. 66 i następnych K.C.
Kalkulator kredytowy
Formularz kontaktowy