Mieszkanie na sprzedaż
565 000 zł
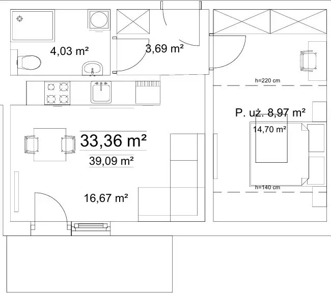
39 m2








1 / 8
Szczegóły ogłoszenia
- Symbol oferty MAKK-MS-717
- Typ oferty mieszkanie na sprzedaż
- Cena 565 000 zł
- Charakterystyka mieszkania 39 m2, 2 pokoje
- Budynek blok; rok budowy: 2025
- Rozkład mieszkania 2p piętro
- Media Ogrzewanie: centralne; Woda: ciepła - miejska; Gaz: tak - miejski
- Dojazd ASFALTOWA
- Garaż garaż pod budynkiem
- Ilość sypialni 1
- Instalacje TELEWIZJA KABLOWA, INTERNETOWA, TELEFONICZNA
- Okna PCV 3 szyby, ciepły montaż
- Otoczenie osiedle
- Stan lokalu deweloperski
- Technologia budowlana beton, gazobeton
- Winda Tak
Lokalizacja
- Adres małopolskie, Kraków, Dębniki
Opis nieruchomości
Przedstawiam Państwu na sprzedaż ustawne mieszkanie 2 pokojowe z dużym balkonem o powierzchni 39 m2 ( po podłodze ) znajdujące się w fajnej lokalizacji z bardzo dobrą komunikacją w Ruczaju - niedaleko pętli Czerwone Maki.
INWESTYCJA NIEMALŻE GOTOWA - ZAPRASZAM NA PREZENTACJE MIESZKAŃ NA MIEJSCU !!!
Mieszkanie jest w podwyższonym standardzie deweloperskim obejmującym ogrzewanie podłogowe, drzwi wejściowe antywłamaniowe, okna trzyszybowe z nawiewnikami wyposażonymi w filtry antysmogowe oraz klimatyzację (instalacja i jednostki).
Mieszkanie składa się z:
- pokoju z aneksem kuchennym,
- sypialni
- przedpokoju
- łazienki z ubikacją,
- balkonu
Mieszkanie w stanie deweloperskim. W budynku znajduje się domofon, drzwi antywłamaniowe, tv kablowa, internet. Mieszkanie posiada balkon, możliwe także komórki lokatorskie. Dostępne miejsca postojowe znajdują się w podziemnym garażu oraz na parkingach zewnętrznych tuż przy budynku.
Przyjazna przestrzeń mieszkalna w bliskim sąsiedztwie Uniwersytetu Jagiellońskiego. Inwestycja świetnie skomunikowana jest z centrum Krakowa linią szybkiego tramwaju, a w kierunku południu - wschodnim zapewnia szybki dojazd do obwodnicy Krakowa i autostrady A4.
W bliskiej odległości znajdują się centra biurowe m.in.: Shell Business Operations Kraków, Nokia Solutions and Networks, nowo budowany Motorola Solutions Systems, Jagiellońskie Centrum Innowacji, Dot Office, Centrum Medicover Czerwone Maki, Netia Data Center SOUL, UBS, Krakowski Park Technologiczny KPT, Leroy Merlin oraz wiele innych.
POLECAM dla osób, które poszukują prywatności i komfortu. Miejsce, w którym przestrzeń i natura idą w parze z wygodną komunikacją i bliskością centrum miasta.
BEZ PROWIZJI !!! BEZ PODATKU PCC !!! BEZ PROBLEMU !!! BEZ RYZYKA !!! BEZ PROWIZJI !!!
SUPER OSIEDLE !!! REWELACYJNA LOKALIZACJA !!! GOTOWE DO ODBIORU !!!
Oferujemy również bezpłatną usługę DORADZTWA KREDYTOWEGO pozwalającą na uzyskanie kredytu hipotecznego na preferencyjnych warunkach.
Zapraszamy także do zakupu mieszkania "POD KLUCZ" - nasz dział obsługi inwestycji w indywidualny i profesjonalny sposób świadczy kompleksową usługę wykończenia lokalu mieszkaniowego z wizualizacją , projektem i możliwością obejrzenia materiałów z wybranego programu wykończeniowego.
Specjalizujemy się w ZARZĄDZANIU NIERUCHOMOŚCIAMI - minimum ryzyka i maximum bezpieczeństwa wraz z wszystkimi możliwymi ubezpieczeniami !!!
INWESTYCJA NIEMALŻE GOTOWA - ZAPRASZAM NA PREZENTACJE MIESZKAŃ NA MIEJSCU !!!
Mieszkanie jest w podwyższonym standardzie deweloperskim obejmującym ogrz
Mieszkanie składa się z:
- pokoju z aneksem kuchennym,
- sypialni
- przedpokoju
- łazienki z ubikacją,
- balkonu
Mieszkanie w stanie deweloperskim. W budynku znajduje się domofon, drzwi antywłamaniowe, tv kablowa, internet. Mieszkanie posiada balkon, możliwe także komórki lokatorskie. Dostępne miejsca postojowe znajdują się w podziemnym garażu oraz na parkingach zewnętrznych tuż przy budynku.
Przyjazna przestrzeń mieszkalna w bliskim sąsiedztwie Uniwersytetu Jagiellońskiego. Inwestycja świetnie skomunikowana jest z centrum Krakowa linią szybkiego tramwaju, a w kierunku południu - wschodnim zapewnia szybki dojazd do obwodnicy Krakowa i autostrady A4.
W bliskiej odległości znajdują się centra biurowe m.in.: Shell Business Operations Kraków, Nokia Solutions and Networks, nowo budowany Motorola Solutions Systems, Jagiellońskie Centrum Innowacji, Dot Office, Centrum Medicover Czerwone Maki, Netia Data Center SOUL, UBS, Krakowski Park Technologiczny KPT, Leroy Merlin oraz wiele innych.
POLECAM dla osób, które poszukują prywatności i komfortu. Miejsce, w którym przestrzeń i natura idą w parze z wygodną komunikacją i bliskością centrum miasta.
BEZ PROWIZJI !!! BEZ PODATKU PCC !!! BEZ PROBLEMU !!! BEZ RYZYKA !!! BEZ PROWIZJI !!!
SUPER OSIEDLE !!! REWELACYJNA LOKALIZACJA !!! GOTOWE DO ODBIORU !!!
Zapraszam na prezentacje
Oferujemy również bezpłatną usługę DORADZTWA KREDYTOWEGO pozwalającą na uzyskanie kredytu hipotecznego na preferencyjnych warunkach.
Zapraszamy także do zakupu mieszkania "POD KLUCZ" - nasz dział obsługi inwestycji w indywidualny i profesjonalny sposób świadczy kompleksową usługę wykończenia lokalu mieszkaniowego z wizualizacją , projektem i możliwością obejrzenia materiałów z wybranego programu wykończeniowego.
Specjalizujemy się w ZARZĄDZANIU NIERUCHOMOŚCIAMI - minimum ryzyka i maximum bezpieczeństwa wraz z wszystkimi możliwymi ubezpieczeniami !!!
Przedstawiona oferta cenowa ma charakter informacyjny i nie stanowi oferty handlowej w rozumieniu Art. 66 par. 1 Kodeksu Cywilnego. Zamieszczone zdjęcia wnętrz są wizualizacjami. Rzut ma charakter poglądowy.
Nota prawna
Opis oferty zawarty na stronie internetowej sporządzany jest na podstawie oględzin nieruchomości oraz informacji uzyskanych od właściciela, może podlegać aktualizacji i nie stanowi oferty określonej w art. 66 i następnych K.C.
Kalkulator kredytowy
Formularz kontaktowy