Mieszkanie na sprzedaż
630 000 zł
42 m2






1 / 6
Szczegóły ogłoszenia
- Symbol oferty WSCH-MS-7626
- Typ oferty mieszkanie na sprzedaż
- Cena 630 000 zł
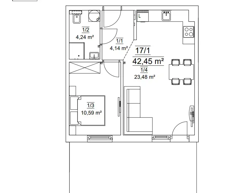
- Charakterystyka mieszkania 42.45 m2, 2 pokoje
- Budynek blok; rok budowy: 2025
- Rozkład mieszkania parter piętro
- Media Ogrzewanie: C.O. Z SIECI MIEJSKIEJ; Gaz: brak
- Dojazd kostka brukowa
- Garaż garaż pod budynkiem
- Okna PCV
- Stan lokalu deweloperski
- Technologia budowlana mieszana
- Winda Tak
Lokalizacja
- Adres małopolskie, Kraków, Dębniki
Opis nieruchomości
Ruczaj
Mieszkanie dostępne bez prowizji oraz 2%PCC
Do sprzedania ustawne2 pokojowe mieszkanie o powierzchni 43m2 położone na parterze 4 piętrowego bloku.
Mieszkanie składające się z salonu z aneksem kuchennym , sypialni, przedpokoju, łazienki oraz dużego ogródka o pow. 60m2
Agnieszka Nowak tel. 666 312 237
Wschód nieruchomości
Mieszkanie dostępne bez prowizji oraz 2%PCC
Do sprzedania ustawne2 pokojowe mieszkanie o powierzchni 43m2 położone na parterze 4 piętrowego bloku.
Mieszkanie składające się z salonu z aneksem kuchennym , sypialni, przedpokoju, łazienki oraz dużego ogródka o pow. 60m2
- Mieszkanie w stanie deweloperskim: ogrzewanie podłogowe, klimatyzacja wraz z jednostkami, płytki na balkonie, okna PCV
- Kameralna niska zabudowa
- Miejsce postojowe w hali garażowej: od 36.000zł (zakup obowiązkowy)
- Miejsca postojowe zewnętrzne: 30.000zł
- Termin odbioru mieszkania: I kwartał 2026r
- Ekspozycja okien: wschód
Agnieszka Nowak tel. 666 312 237
Wschód nieruchomości
- Kupując mieszkanie za naszym pośrednictwem nie płacisz prowizji , wszystkie ceny mieszkań są cenami Dewelopera wraz z aktualnymi promocjami
- Otrzymujesz karty rabatowe -15% do sklepów Bel - Pol oraz kupon rabatowy -10% do sklepów Leroy Merlin
- Dodatkowo możesz skorzystać z darmowej obsługi Doradcy Kredytowego firmy Notus oraz oferty firmy wykończeniowej Excellent
Nota prawna
Opis oferty zawarty na stronie internetowej sporządzany jest na podstawie oględzin nieruchomości oraz informacji uzyskanych od właściciela, może podlegać aktualizacji i nie stanowi oferty określonej w art. 66 i następnych K.C.
Kalkulator kredytowy
Formularz kontaktowy