Mieszkanie na sprzedaż
678 294 zł
43 m2












1 / 12
Szczegóły ogłoszenia
- Symbol oferty EMME-MS-59850
- Typ oferty mieszkanie na sprzedaż
- Cena 678 294 zł
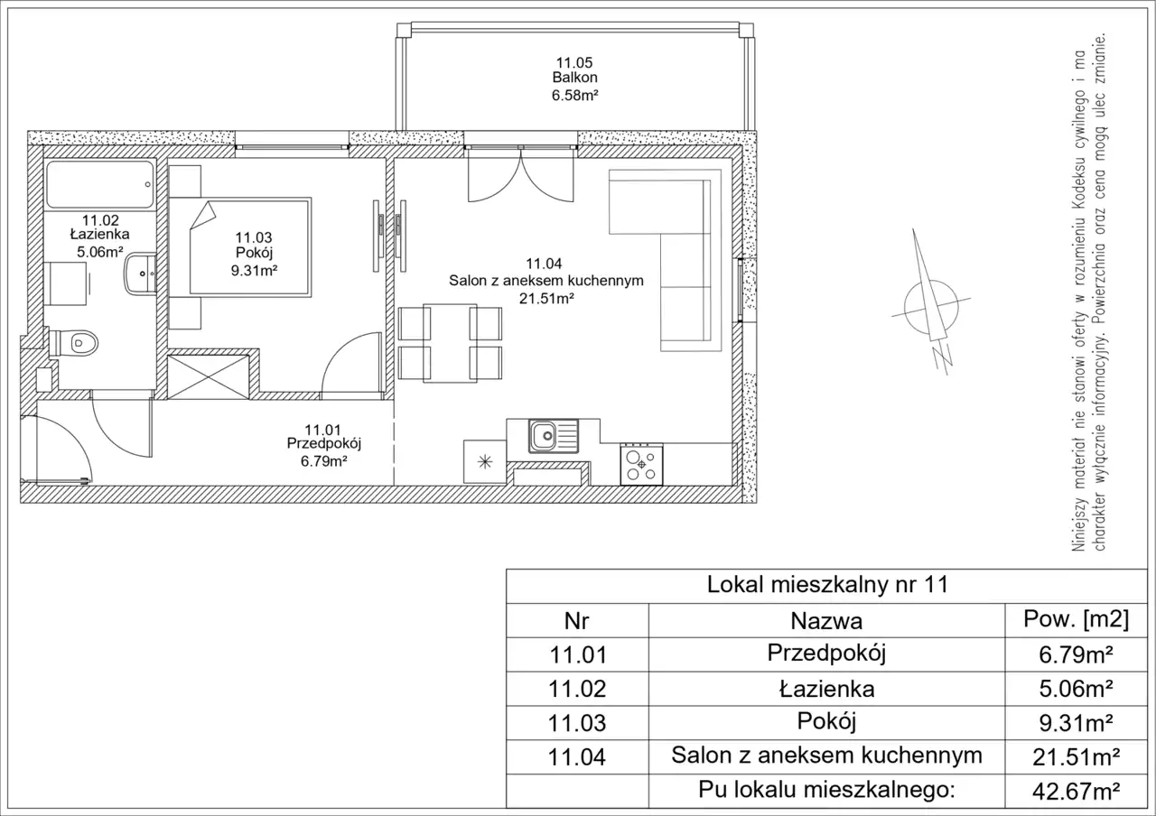
- Charakterystyka mieszkania 42.66 m2, 2 pokoje
- Budynek niski budynek; rok budowy: 2025
- Material konstrukcyjny mieszany
- Stan lokalu deweloperski
- Winda Tak
Lokalizacja
- Adres małopolskie, Kraków, Bieżanów-Prokocim
Opis nieruchomości
OBEJRZYJ GOTOWE MIESZKANIE!
Nowa inwestycja mieszkaniowa w Prokocimiu.
Kameralny trzypiętrowy budynek z windą, zaledwie 13 mieszkań. Realizacja prac budowlanych w IV kw 2025, odbiór II kw 2026 roku.
Mieszkanie z przestronnym salonem, wyodrębnioną sypialnią i dużym balkonem. Ekspozycja wschód i północ.
Ogrzewanie i ciepła woda centralne z kotłowni gazowej. Mieszkanie w stanie deweloperskim rozszerzonym o klimatyzację wraz z urządzeniami w standardzie, w całym mieszkaniu ogrzewanie podłogowe. Obligatoryjny zakup miejsca postojowego w garażu podziemnym od 45.000 do 55.000.
Świetnie skomunikowana okolica, 200 metrów do przystanku autobusowego przy Bieżanowskiej, 600 metrów do tramwaju przy Wielickiej, 700 metrów do stacji kolei aglomeracyjnej Kraków-Prokocim. Kompletna infrastruktura handlowa i usługowa w zasięgu spaceru, również liczne tereny zielone. Park Jerzmanowskich 400 metrów, Park Lilli Wenedy 600 metrów, kąpielisko Bagry 1100 metrów.
Zapraszam na prezentację.
Zapraszam do zapoznania się z naszą ofertą kredytową oraz wykończenia wnętrz.
Opiekun oferty: Michał Malina
______________
Powyższa oferta ma charakter informacyjny i nie stanowi oferty handlowej w rozumieniu art. 66 par. 1 Kodeksu Cywilnego oraz innych właściwych przepisów prawnych.
Nowa inwestycja mieszkaniowa w Prokocimiu.
Kameralny trzypiętrowy budynek z windą, zaledwie 13 mieszkań. Realizacja prac budowlanych w IV kw 2025, odbiór II kw 2026 roku.
Mieszkanie z przestronnym salonem, wyodrębnioną sypialnią i dużym balkonem. Ekspozycja wschód i północ.
Ogrzewanie i ciepła woda centralne z kotłowni gazowej. Mieszkanie w stanie deweloperskim rozszerzonym o klimatyzację wraz z urządzeniami w standardzie, w całym mieszkaniu ogrzewanie podłogowe. Obligatoryjny zakup miejsca postojowego w garażu podziemnym od 45.000 do 55.000.
Świetnie skomunikowana okolica, 200 metrów do przystanku autobusowego przy Bieżanowskiej, 600 metrów do tramwaju przy Wielickiej, 700 metrów do stacji kolei aglomeracyjnej Kraków-Prokocim. Kompletna infrastruktura handlowa i usługowa w zasięgu spaceru, również liczne tereny zielone. Park Jerzmanowskich 400 metrów, Park Lilli Wenedy 600 metrów, kąpielisko Bagry 1100 metrów.
Zapraszam na prezentację.
Zapraszam do zapoznania się z naszą ofertą kredytową oraz wykończenia wnętrz.
Opiekun oferty: Michał Malina
______________
Powyższa oferta ma charakter informacyjny i nie stanowi oferty handlowej w rozumieniu art. 66 par. 1 Kodeksu Cywilnego oraz innych właściwych przepisów prawnych.
Nota prawna
Opis oferty zawarty na stronie internetowej sporządzany jest na podstawie oględzin nieruchomości oraz informacji uzyskanych od właściciela, może podlegać aktualizacji i nie stanowi oferty określonej w art. 66 i następnych K.C.
Kalkulator kredytowy
Formularz kontaktowy