Mieszkanie na sprzedaż
686 633 zł
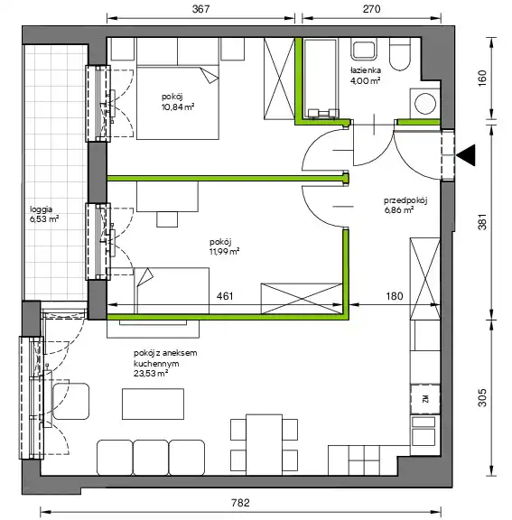
57 m2







1 / 7
Szczegóły ogłoszenia
- Symbol oferty FML-MS-29
- Typ oferty mieszkanie na sprzedaż
- Cena 686 633 zł
- Charakterystyka mieszkania 57.22 m2, 3 pokoje
- Rozkład mieszkania 1p piętro
- Media Ogrzewanie: c.o.; Woda: ciepła - miejska
- Stan lokalu deweloperski
- Winda Tak
Lokalizacja
- Adres małopolskie, Kraków
Opis nieruchomości
Osiedle Słoneczne Miasteczko położone jest w cichej i zielonej części Krakowa – w dzielnicy Bieżanów-Prokocim, przy ulicy Henryka i Karola Czeczów. Nowy etap inwestycji obejmuje budowę trzech kameralnych, czteropiętrowych budynków, w których znajdzie się 186 mieszkań o powierzchni od 32 do 86 m². To idealna propozycja dla osób ceniących spokój, bliskość natury oraz komfort życia z dala od miejskiego zgiełku.
Nota prawna
Opis oferty zawarty na stronie internetowej sporządzany jest na podstawie oględzin nieruchomości oraz informacji uzyskanych od właściciela, może podlegać aktualizacji i nie stanowi oferty określonej w art. 66 i następnych K.C.
Kalkulator kredytowy
Formularz kontaktowy