Mieszkanie na sprzedaż








Szczegóły ogłoszenia
- Symbol oferty KKA-MS-4228
- Typ oferty mieszkanie na sprzedaż
- Cena 731 760 zł
- Charakterystyka mieszkania 30.49 m2, 1 pokój
- Budynek kamienica
- Rozkład mieszkania 1p piętro
- Media Woda: ciepła - miejska
- Dojazd asfaltowa/kostka
- Garaż brak
- Ilość sypialni 1
- Instalacje TELEFON, INTERNETOWA, WINDA OSOBOWA
- Okna PCV 3 szyby, ciepły montaż
- Otoczenie centrum miasta
- Stan lokalu do wykończenia
- Technologia budowlana beton, cegła
- Winda Tak
Lokalizacja
- Adres małopolskie, Kraków, Stare Miasto
Opis nieruchomości
WWW.KRAKOWSKAKAMIENICA.PL
WYJĄTKOWA OFERTA - NIERUCHOMOŚĆ W CENTRUM
NAJLEPSZĄ CENĘ ORAZ WSZYSTKIE NIEZBĘDNE INFORMACJE WRAZ Z WYLICZENIAMI KOSZTÓW UZYSKASZ WYŁĄCZNIE Z NASZĄ FIRMĄ - ZAPRASZAMY
KAWALERKA W DZIELNICY STARE MIASTO - UL.KROWODERSKA - METRAŻ 30,49 M2
Zapraszamy do zapoznania się z ofertą sprzedaży lokalu mieszkalnego, zlokalizowanego przy ul. Krowoderskiej w Krakowie. Ten urokliwy budynek o klasycznej architekturze, położony w zwartej zabudowie wielorodzinnej, oferuje komfortowe mieszkania w doskonałej lokalizacji.
Opis budynku:
Elegancki budynek o sześciu kondygnacjach nadziemnych oraz jednej podziemnej (piwnice), wyposażony we wszelkie niezbędne instalacje: wodociągową, kanalizacyjną, centralnego ogrzewania, ciepłej wody użytkowej oraz elektryczną i teletechniczną. Komfort mieszkańców zapewnia wentylacja grawitacyjna oraz mechaniczna, a także nowoczesna wymiennikownia MPEC.
Solidna konstrukcja:
Budynek został wzniesiony w tradycyjnej technologii, z solidnymi fundamentami betonowymi i murowanymi ścianami z cegły. Wnętrza charakteryzują się wysoką jakością wykończenia, a drewniane okna oraz stolarka drzwiowa nadają całości wyjątkowy klimat. Dach kryty blachą stalową w technologii „rąbek stojący” zapewnia długowieczność i estetykę.
Lokalizacja i atuty:
Lokal mieszkalny zlokalizowany przy ul. Krowoderskiej w Krakowie to wyjątkowa propozycja dla osób ceniących sobie wygodę życia w ścisłym centrum miasta, a jednocześnie szukających spokoju i kameralnej atmosfery. Nieruchomość znajduje się w jednej z najbardziej prestiżowych dzielnic, skąd zaledwie kilka minut spacerem dzieli mieszkańców od krakowskiego Rynku Głównego. Bliskość kluczowych punktów komunikacyjnych, takich jak przystanki tramwajowe i autobusowe, ułatwia szybki dostęp do wszystkich części miasta. W okolicy znajdują się również liczne sklepy, restauracje, kawiarnie, a także instytucje kulturalne, szkoły i przedszkola, co czyni tę lokalizację doskonałym wyborem zarówno dla rodzin, jak i osób prowadzących aktywny tryb życia. Dodatkowym atutem jest obecność terenów zielonych, takich jak Planty czy Park Krakowski, które oferują możliwość odpoczynku i rekreacji na świeżym powietrzu.
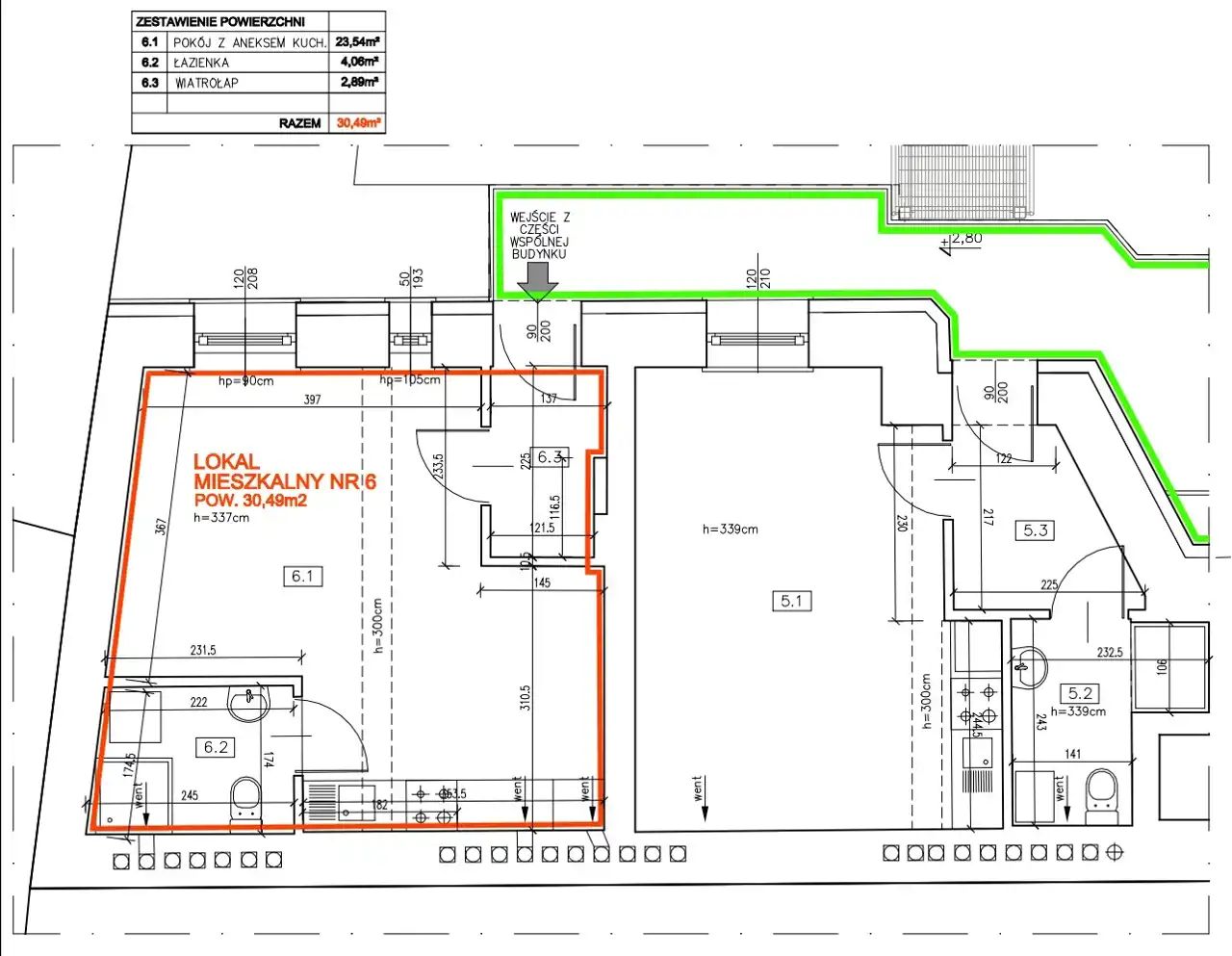
Opis lokalu nr 6:
Lokal o powierzchni 30,49 m² znajduje się na I piętrze, oferując funkcjonalny układ pomieszczeń. Składa się z przestronnego pokoju z aneksem kuchennym (23,54 m²), łazienki (4,06 m²) oraz wiatrołapu (2,89 m²). Mieszkanie jest w pełni wyposażone w instalację elektryczną, wodno-kanalizacyjną, centralne ogrzewanie oraz instalację teletechniczną.
Możliwość wykończenia pod klucz:
Dla wygody przyszłych właścicieli, lokal można wykończyć pod klucz, zgodnie z indywidualnymi preferencjami, w cenie 4000 zł/m². To doskonała propozycja dla osób ceniących sobie komfort oraz oszczędność czasu.
Zamieszkaj w jednym z najbardziej prestiżowych adresów w Krakowie – idealne miejsce zarówno dla inwestorów, jak i osób szukających swojego wymarzonego mieszkania!
PROSIMY O KONTAKT TELEFONICZNY DZIĘKI KTÓREMU UZYSKACIE PAŃSTWO WSZYSTKIE NIEZBĘDNE INFORMACJE PRZED PREZENTACJĄ NIERUCHOMOŚCI
Cena: 731 760 zł
Nr oferty w biurze: MS 4228
798 280 189 (tel. kontaktowy)
mail: krakowskakamienica@gmail.com
SKUTECZNIE POMAGAMY W ZDOBYCIU
KREDYTU NA ZAKUP WYBRANEJ NIERUCHOMOŚCI
--------------------------------------------------------------------------------------
Zamieszczone na naszych stronach oferty nie stanowią oferty w rozumieniu Kodeksu Cywilnego, a dane w nich zawarte mają jedynie charakter informacyjny.