Mieszkanie na sprzedaż
738 500 zł
44 m2


















1 / 18
Szczegóły ogłoszenia
- Symbol oferty DNX-MS-30766
- Typ oferty mieszkanie na sprzedaż
- Cena 738 500 zł
- Charakterystyka mieszkania 43.7 m2, 3 pokoje
- Budynek blok
- Rozkład mieszkania 3p piętro
- Czynsz Czynsz letni: 500 zł
- Stan lokalu bardzo dobry
Lokalizacja
- Adres małopolskie, Kraków, Prądnik Czerwony
Opis nieruchomości
MIESZKANIE DO WEJŚCIA, UMEBLOWANE, PEŁNA WŁASNOŚĆ Z KW
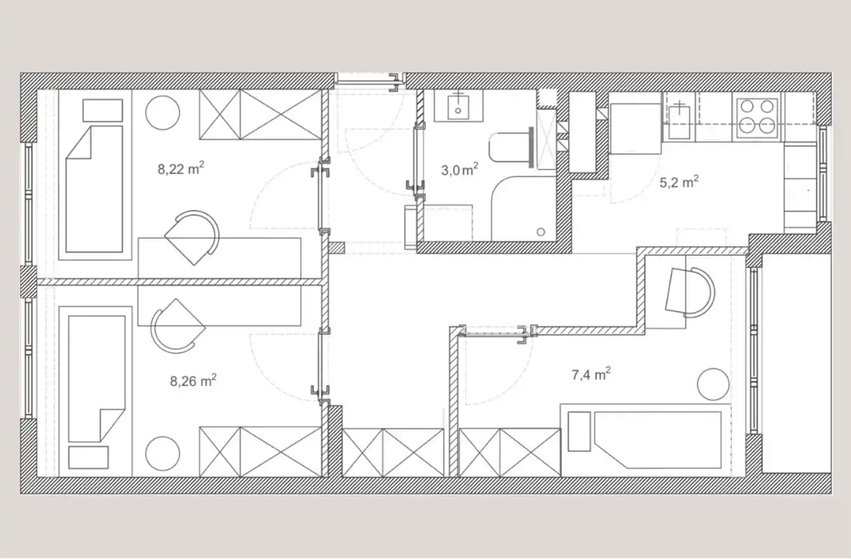
Powierzchnia mieszkania w księdze wieczystej: 43,7 m² (mieszkanie 41,0 m², piwnica: 2,7 m²),
Na powierzchnię mieszkania składają się: 3 niezależne pokoje (8,3 m²; 8,2 m²; 7,4 m²), osobna jasna kuchnia, łazienka z WC (3 m2) oraz przedpokój. Mieszkanie posiada balkon
W pełni umeblowane i wyposażone w sprzęty AGD, niezbędne do najmu detale oraz dodatki.
Funkcjonalne wnętrze zostało zaprojektowane przez architekta i wykończone przy użyciu odpowiedniej jakości materiałów.
Mieszkanie zaprojektowane z myślą o komforcie najemcy i ponadprzeciętnym przychodzie z najmu dla właściciela.
Powierzchnia mieszkania w księdze wieczystej: 43,7 m² (mieszkanie 41,0 m², piwnica: 2,7 m²),
Na powierzchnię mieszkania składają się: 3 niezależne pokoje (8,3 m²; 8,2 m²; 7,4 m²), osobna jasna kuchnia, łazienka z WC (3 m2) oraz przedpokój. Mieszkanie posiada balkon
W pełni umeblowane i wyposażone w sprzęty AGD, niezbędne do najmu detale oraz dodatki.
Funkcjonalne wnętrze zostało zaprojektowane przez architekta i wykończone przy użyciu odpowiedniej jakości materiałów.
Mieszkanie zaprojektowane z myślą o komforcie najemcy i ponadprzeciętnym przychodzie z najmu dla właściciela.
Lokalizacja idealna dla młodych osób pracujących i studentów. Bezpośredni i szybki dojazd tramwajem (700 m) lub autobusem (750 m) na wszystkie krakowskie uczelnie.
W bezpośrednim sąsiedztwie centra biurowe: Pilot Tower, Quattro Business Park, Tertrium Business Park oraz Astris.
W obrębie osiedla znajduje się bogata infrastruktura usługowa, CH Serenada, CH Krokus, Multikino oraz Park Wodny.
Fanów sportu i rekreacji ucieszy bliskość Tauron Areny oraz Parku Lotników Polskich.
Cena
- Mieszkanie i wyposażenie: 738 500 zł
Nota prawna
Opis oferty zawarty na stronie internetowej sporządzany jest na podstawie oględzin nieruchomości oraz informacji uzyskanych od właściciela, może podlegać aktualizacji i nie stanowi oferty określonej w art. 66 i następnych K.C.
Kalkulator kredytowy
Formularz kontaktowy