Mieszkanie na sprzedaż

















Szczegóły ogłoszenia
- Symbol oferty DNX-MS-30701
- Typ oferty mieszkanie na sprzedaż
- Cena 760 000 zł
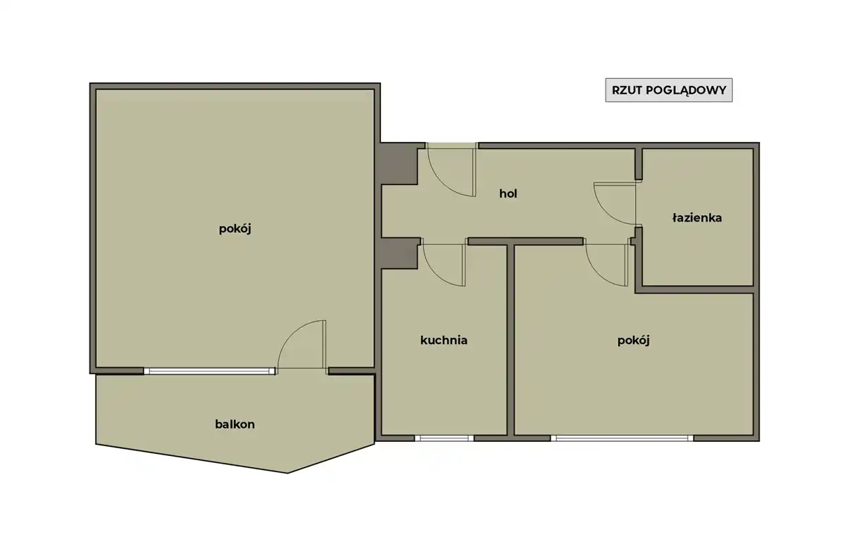
- Charakterystyka mieszkania 46.01 m2, 2 pokoje
- Budynek blok; rok budowy: 1981
- Rozkład mieszkania 10p piętro
- Media Ogrzewanie: C.O. miejskie; Woda: ciepła - miejska
- Balkon loggia
- Czynsz Czynsz letni: 600 zł
- Dojazd asfalt
- Instalacje wymienione
- Okna PCV
- Otoczenie zabudowa wielorodzinna
- Stan lokalu bardzo dobry
- Technologia budowlana wielka płyta
- Winda Tak
Lokalizacja
- Adres małopolskie, Kraków, Prądnik Czerwony
Opis nieruchomości
OFERTA WYŁĄCZNIE W BIURZE DANAX
Na sprzedaż funkcjonalne mieszkanie dwupokojowe o powierzchni 46,1 m², położone na 10. piętrze budynku z lat 80. Nieruchomość wyróżnia się pięknym, panoramicznym widokiem na stronę południowo-wschodnią oraz doskonałym doświetleniem wnętrz.
Układ mieszkania:
-
przestronny salon z wyjściem na dużą loggię,
-
ustawna sypialnia,
-
oddzielna, jasna kuchnia,
-
łazienka,
-
przedpokój.
Do mieszkania przynależy piwnica o powierzchni 1,46 m².
Najważniejsze atuty:
-
mieszkanie po kapitalnym remoncie,
-
duża loggia z panoramicznym widokiem,
-
funkcjonalny, niezależny układ pomieszczeń,
-
przynależna piwnica,
-
szybki i wygodny wyjazd na północną obwodnicę Krakowa.
Lokal jest świeżo po generalnym remoncie – gotowy do zamieszkania. Wystarczy umeblować i wyposażyć wnętrze według własnych potrzeb i gustu.
Lokalizacja:
Mieszkanie znajduje się w cichej i spokojnej okolicy, z dobrze rozwiniętą infrastrukturą handlowo-usługową oraz komunikacyjną. W pobliżu znajduje się pętla autobusowa, co zapewnia wygodne połączenie z innymi częściami miasta. Dodatkowym atutem jest szybki wyjazd na obwodnicę północną Krakowa.
Zapraszamy do kontaktu oraz na prezentację nieruchomości.