Mieszkanie na sprzedaż















Szczegóły ogłoszenia
- Symbol oferty AP7-MS-14263
- Typ oferty mieszkanie na sprzedaż
- Cena 799 000 zł
- Charakterystyka mieszkania 47.61 m2, 2 pokoje
- Budynek kamienica; rok budowy: 1910
- Rozkład mieszkania parter piętro
- Media Ogrzewanie: centralne; Woda: ciepła - miejska; Gaz: jest
- Dojazd ASFALTOWA
- Garaż przy budynku
- Ilość sypialni 1
- Instalacje ELEKTRYCZNA, GAZOWA, TELEFONICZNA, INTERNETOWA
- Okna PCV
- Otoczenie centrum miasta
- Stan lokalu do remontu
- Technologia budowlana beton, cegła
- Umeblowanie umeblowane
Lokalizacja
- Adres małopolskie, Kraków m., Kraków
Opis nieruchomości
Lokal użytkowy 47,61 m² z piwnicą | Stare Miasto, ul. Kątowa 11 | możliwość przekształcenia na mieszkanie
Na sprzedaż lokal użytkowy o powierzchni 47,61 m² położony na parterze kamienicy przy ul. Kątowej w Krakowie — w samym sercu Starego Miasta, zaledwie kilka minut pieszo od Dworca Głównego i Galerii Krakowskiej.
Lokal znajduje się w budynku z 1910 roku, który przeszedł generalny remont elewacji, dachu oraz klatki schodowej.
Kamienica wyposażona jest w ogrzewanie i ciepłą wodę z MPEC, co zapewnia komfort i niskie koszty eksploatacyjne.
Szczegóły lokalu:
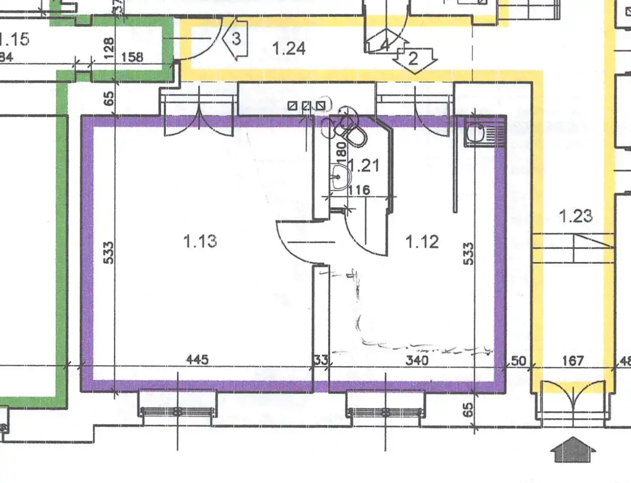
- Powierzchnia użytkowa: 41,97 m²
– pomieszczenie użytkowe 2: 23,85 m²
– WC: 2,02 m²
- Powierzchnia przynależnej piwnicy: 5,64 m²
- Łączna powierzchnia: 47,61 m²
Budynek i udogodnienia:
- Kamienica po generalnym remoncie elewacji i dachu
- Klatka schodowa po remoncie w 2025 roku – czysta i zadbana
- Dostępne media: MPEC, gaz, światłowód, domofon
- Na dziedzińcu znajduje się wiata rowerowa dla mieszkańców
- Dostęp do ogródka
- Parking dla mieszkańców znajdujący się na ulicy
Informacje dodatkowe:
Lokal sprzedawany jest jako lokal użytkowy z możliwością przekształcenia na lokal mieszkalny (po spełnieniu warunków formalnych).
Dzięki układowi pomieszczeń idealnie nadaje się zarówno pod biuro, gabinet, pracownię, jak i mieszkanie.
Do lokalu przynależy piwnica o powierzchni 5,64 m², a mieszkańcy i najemcy mogą korzystać z wiaty rowerowej na dziedzińcu.
Lokalizacja – Stare Miasto, ul. Kątowa:
✔️ 5 minut pieszo do Dworca Głównego PKP i PKS
✔️ 7 minut pieszo do Galerii Krakowskiej i przystanków tramwajowych
✔️ 15 minut spacerem na Rynek Główny
✔️ W pobliżu liczne uczelnie: UEK, Politechnika Krakowska, UR, ASP, UJ
✔️ Świetny dojazd w kierunku Warszawy i obwodnicy Krakowa
Dodatkowe możliwości:
Istnieje możliwość zakupu sąsiedniego lokalu (ok. 38 m² + piwnica) oraz
zamknięcia wspólnego korytarza, co pozwoli stworzyć prywatną przestrzeń dwóch lokali — idealne rozwiązanie dla inwestora.
Dlaczego warto:
- Lokalizacja w ścisłym centrum Krakowa
- Możliwość przekształcenia na mieszkanie
- Atrakcyjna cena za m²
- Blisko uczelni, biur i Starego Miasta
- Idealna inwestycja pod wynajem lub działalność
Potencjał inwestycyjny:
Lokal położony w ścisłym centrum miasta, blisko dworca i Rynku Głównego – to pewna inwestycja pod wynajem dla studentów, turystów lub pracujących w okolicy.
Gwarancja stabilnego i regularnego dochodu lub bezpiecznej lokaty kapitału.
Zapraszamy do kontaktu i na prezentację!
We speak: ukr / ru / eng / pl
Więcej ofert: www.ap7.pl
Nasze usługi świadczymy zgodnie z Ustawą z dnia 21 sierpnia 1997 r. o gospodarce nieruchomościami (Dz. U. z 2024 r. poz. 1145 z późn. zm.), w oparciu o umowę pośrednictwa, która gwarantuje bezpieczeństwo transakcji i pełną opiekę doradcy przez cały okres współpracy.
Zgodnie z art. 179b wspomnianej ustawy, wynagrodzenie za usługę określane jest indywidualnie w podpisanej umowie.