Mieszkanie na sprzedaż
885 000 zł
53 m2

1 / 1
Szczegóły ogłoszenia
- Symbol oferty WSCH-MS-7231
- Typ oferty mieszkanie na sprzedaż
- Cena 885 000 zł
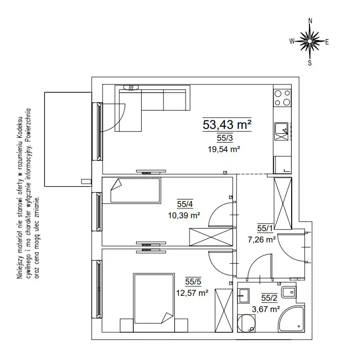
- Charakterystyka mieszkania 53.43 m2, 3 pokoje
- Budynek blok; rok budowy: 2024
- Rozkład mieszkania 4p piętro
- Media Ogrzewanie: C.O. miejskie; Woda: ciepła - miejska; Gaz: brak
- Balkon duży
- Dojazd asfalt
- Garaż garaż pod budynkiem
- Instalacje nowe
- Okna PCV
- Stan lokalu deweloperski
- Technologia budowlana pustak ceramiczny
- Winda Tak
Lokalizacja
- Adres małopolskie, Kraków, Krowodrza
Opis nieruchomości
Wszystkie mieszkania dostępne bez prowizji oraz 2%PCC
Mieszkanie gotowe do odbioru
Do sprzedania komfortowe 3 mieszkanie o pow. 55m2 położone na 4 piętrze piętrze 7 piętrowego bloku.
Mieszkanie składające się z salonu z aneksem kuchennym, dwóch sypialni , przedpokoju, łazienki oraz balkonu
Zapraszam na prezentację
Agnieszka Nowak tel. 666 312 237
Wschód nieruchomości
Mieszkanie gotowe do odbioru
Do sprzedania komfortowe 3 mieszkanie o pow. 55m2 położone na 4 piętrze piętrze 7 piętrowego bloku.
Mieszkanie składające się z salonu z aneksem kuchennym, dwóch sypialni , przedpokoju, łazienki oraz balkonu
- Mieszkania oddawane w stanie deweloperskim obejmującym m.in. okna trzyszybowe z nawiewnikami wyposażone w filtry antysmogowe, biały montaż, instalacja klimatyzacji w salonie, drzwi wejściowe antywłamaniowe, ogrzewanie podłogowe
- Ekspozycja okien: zachód
- Ogrzewanie oraz ciepła woda z sieci MPEC
- Grunt: własność
- Miejsca postojowe w hali garażowej od 51.000zł zakup obowiązkowy
- Bardzo dobra lokalizacja - w sąsiedztwie niezbędna infrastruktura handlowo - usługowa, w odległości 500m przystanek tramwajowy, 200m przystanek autobusowy
Zapraszam na prezentację
Agnieszka Nowak tel. 666 312 237
Wschód nieruchomości
Nota prawna
Opis oferty zawarty na stronie internetowej sporządzany jest na podstawie oględzin nieruchomości oraz informacji uzyskanych od właściciela, może podlegać aktualizacji i nie stanowi oferty określonej w art. 66 i następnych K.C.
Kalkulator kredytowy
Formularz kontaktowy