Mieszkanie na sprzedaż
910 000 zł
54 m2







1 / 7
Szczegóły ogłoszenia
- Symbol oferty WSCH-MS-7624
- Typ oferty mieszkanie na sprzedaż
- Cena 910 000 zł
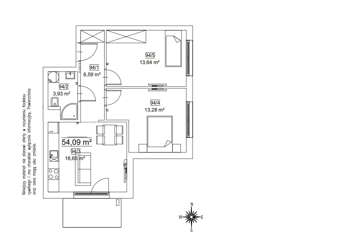
- Charakterystyka mieszkania 54.09 m2, 3 pokoje
- Budynek blok; rok budowy: 2024
- Rozkład mieszkania 7p piętro
- Media Ogrzewanie: C.O. miejskie; Woda: ciepła - miejska; Gaz: brak
- Balkon średni
- Dojazd asfalt
- Garaż garaż pod budynkiem
- Instalacje nowe
- Okna PCV
- Stan lokalu deweloperski
- Technologia budowlana pustak ceramiczny
- Winda Tak
Lokalizacja
- Adres małopolskie, Kraków, Krowodrza
Opis nieruchomości
Mieszkania gotowe do odbioru, bez prowizji oraz 2% PCC
Do sprzedania komfortowe 3 mieszkanie o pow. 54m2 położone na ostatnim 7 piętrowego bloku.
Mieszkanie składające się z salonu z aneksem kuchennym, dwóch sypialni , przedpokoju, łazienki oraz balkonu
Zapraszam na prezentację
Agnieszka Nowak tel. 666 312 237
Wschód nieruchomości
Do sprzedania komfortowe 3 mieszkanie o pow. 54m2 położone na ostatnim 7 piętrowego bloku.
Mieszkanie składające się z salonu z aneksem kuchennym, dwóch sypialni , przedpokoju, łazienki oraz balkonu
- Mieszkania oddawane w stanie deweloperskim obejmującym m.in. okna trzyszybowe z nawiewnikami wyposażone w filtry antysmogowe, biały montaż, instalacja klimatyzacji w salonie, drzwi wejściowe antywłamaniowe, ogrzewanie podłogowe
- Ekspozycja okien: południowy wschód
- Ogrzewanie oraz ciepła woda z sieci MPEC
- Grunt: własność
- Miejsca postojowe w hali garażowej od 51.000zł
- Bardzo dobra lokalizacja - w sąsiedztwie niezbędna infrastruktura handlowo - usługowa, w odległości 500m przystanek tramwajowy, 200m przystanek autobusowy
Zapraszam na prezentację
Agnieszka Nowak tel. 666 312 237
Wschód nieruchomości
Nota prawna
Opis oferty zawarty na stronie internetowej sporządzany jest na podstawie oględzin nieruchomości oraz informacji uzyskanych od właściciela, może podlegać aktualizacji i nie stanowi oferty określonej w art. 66 i następnych K.C.
Kalkulator kredytowy
Formularz kontaktowy