Mieszkanie na sprzedaż









Szczegóły ogłoszenia
- Symbol oferty KKA-MS-4224
- Typ oferty mieszkanie na sprzedaż
- Cena 927 000 zł
- Charakterystyka mieszkania 41.7 m2, 2 pokoje
- Budynek kamienica
- Rozkład mieszkania 5p piętro
- Media Ogrzewanie: C.O. miejskie; Woda: ciepła - miejska; Gaz: brak
- Dojazd asfaltowa/kostka
- Garaż brak
- Ilość sypialni 1
- Instalacje nowe
- Okna PCV
- Otoczenie centrum miasta
- Stan lokalu do generalnego remontu
- Technologia budowlana beton, cegła
Lokalizacja
- Adres małopolskie, Kraków, Stare Miasto
Opis nieruchomości
WWW.KRAKOWSKAKAMIENICA.PL
WYJĄTKOWA OFERTA - NIERUCHOMOŚĆ NA KRAKOWSKIM KAZIMIERZU
NAJLEPSZĄ CENĘ ORAZ WSZYSTKIE NIEZBĘDNE INFORMACJE WRAZ Z WYLICZENIAMI KOSZTÓW UZYSKASZ WYŁĄCZNIE Z NASZĄ FIRMĄ - ZAPRASZAMY
DWUPOKOJOWE W DZIELNICY KAZIMIERZ - UL.SKAŁECZNA - METRAŻ 37,35M2
Oferujemy Państwu dwupokojowe mieszkanie w zabytkowej kamienicy, położonej przy ul. Skałeczna, w sercu Kazimierza – jednej z najbardziej klimatycznych i prestiżowych dzielnic Krakowa. Mieszkanie zapewnia doskonałą lokalizację w otoczeniu zabytków, klimatycznych kawiarni oraz kulturalnych atrakcji.
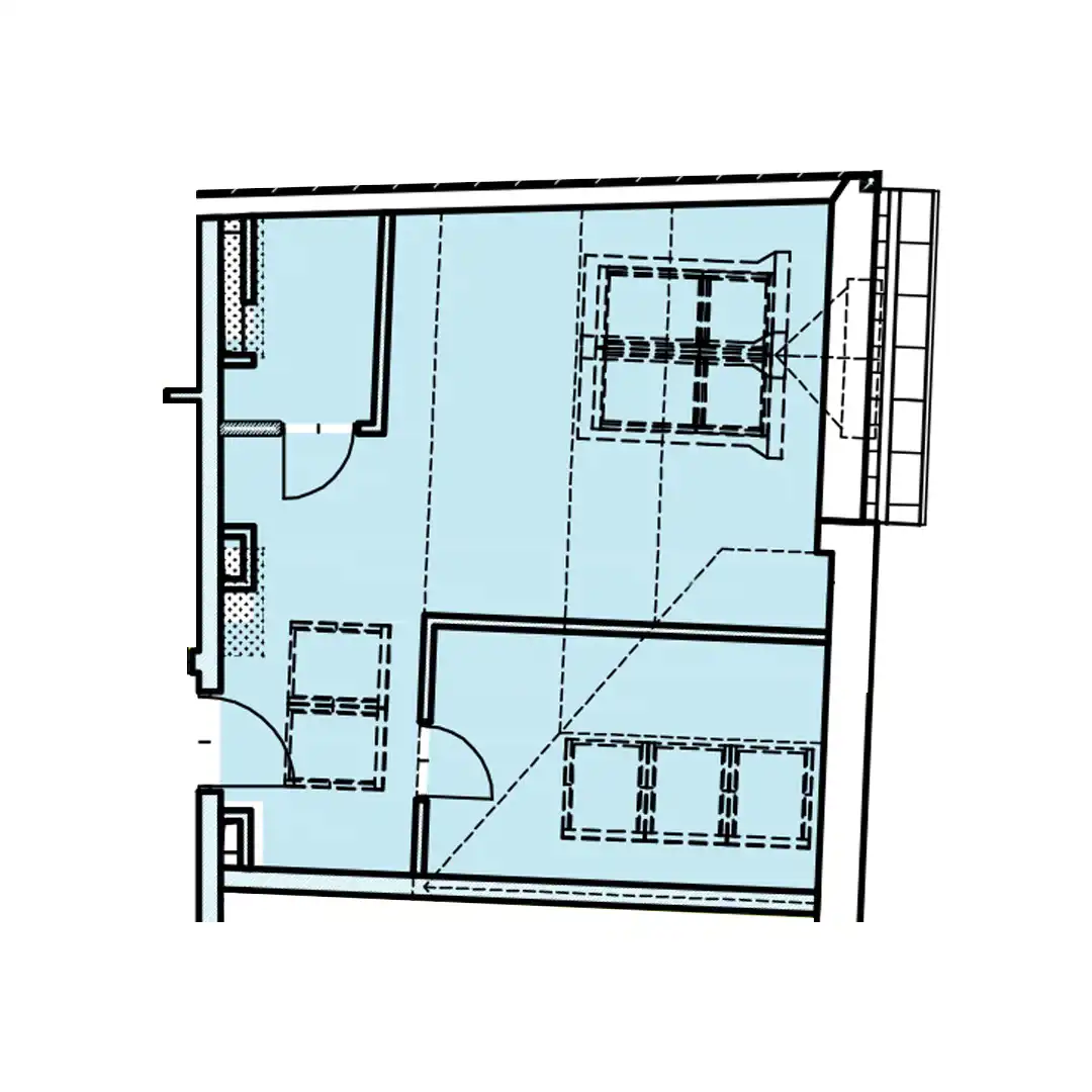
Układ mieszkania
Nieruchomość składa się z:
- pokoju dziennego połączonego z aneksem kuchennym oraz jadalnią,
- sypialni,
- łazienki z WC,
- funkcjonalnego przedpokoju.
Dodatkowo do mieszkania przynależy piwnica o powierzchni 4,35 m², zapewniająca dodatkowe miejsce do przechowywania. Powierzchnia mieszkania liczona po podłodze - 54,62 m2.
Stan kamienicy
Kamienica, w której mieści się mieszkanie, przechodzi obecnie gruntowną modernizację finansowaną przez Wspólnotę Mieszkaniową. Zakres prac obejmuje:
- podłączenie budynku do miejskiej sieci ciepłowniczej (c.o. i c.w.u. – MPEC),
- modernizację instalacji wodno-kanalizacyjnej,
- wymianę okien,
- remont dachu oraz elewacji frontowej.
Dzięki planowanym modernizacjom budynek zyska na wartości i zapewni przyszłym mieszkańcom komfortowe warunki, łącząc klimat historycznej kamienicy z nowoczesnymi rozwiązaniami technicznymi.
Idealna inwestycja
Mieszkanie przy ul. Skałeczna to doskonała inwestycja – Kazimierz, będący centrum kulturalnym Krakowa, nieustannie przyciąga zarówno mieszkańców, jak i turystów z całego świata. Zakup tej nieruchomości stanowi bezpieczną lokatę kapitału oraz szansę na zamieszkanie w jednej z najbardziej wyjątkowych dzielnic miasta.
Komunikacja
Ulica Skałeczna, położona w sercu Kazimierza, oferuje doskonałe połączenia komunikacyjne z pozostałymi częściami Krakowa. Dzięki bliskości kluczowych arterii i dogodnemu dostępowi do przystanków komunikacji miejskiej, mieszkańcy mogą łatwo przemieszczać się po mieście zarówno tramwajami, jak i autobusami.
Przystanki w pobliżu:
- Przystanek Stradom: w odległości krótkiego spaceru od ul. Skałecznej, oferujący połączenia tramwajowe w kierunku Rynku Głównego, Dworca Głównego oraz dzielnicy Podgórze.
- Przystanek Krakowska i Dietla: z regularnymi liniami autobusowymi i tramwajowymi, zapewniającymi szybki dojazd do różnych dzielnic Krakowa, takich jak Nowa Huta, Bronowice czy Łagiewniki.
Dojazd do kluczowych miejsc w Krakowie:
- Rynek Główny – 10 minut komunikacją miejską lub około 15 minut spacerem,
- Dworzec Główny PKP – około 15 minut tramwajem,
- Galeria Krakowska – 15 minut komunikacją miejską,
- Bulwary Wiślane i Wawel – kilka minut pieszo.
Bliskość ulicy Dietla, jednej z głównych arterii Krakowa, dodatkowo ułatwia zarówno korzystanie z komunikacji miejskiej, jak i poruszanie się samochodem. Mieszkańcy ul. Skałecznej mogą więc cieszyć się wygodnym dostępem do transportu publicznego oraz komfortem spacerów po historycznym centrum.
Lokalizacja
Kazimierz to jedna z najbardziej wyjątkowych dzielnic Krakowa, znana z niepowtarzalnego klimatu, bogatej historii i licznych zabytków. Położona na południe od Starego Miasta, przez wieki funkcjonowała jako samodzielne miasto i centrum życia krakowskich Żydów. Dziś jest miejscem pełnym kontrastów, gdzie tradycja spotyka się z nowoczesnością, a historia przenika się z tętniącym życiem kulturalnym.
W Kazimierzu znajdziemy urokliwe, brukowane uliczki, zabytkowe synagogi, kościoły oraz malownicze kamienice. Dzielnica słynie z takich miejsc jak Synagoga Stara, Plac Nowy z kultowymi straganami oraz licznymi barami i kawiarniami, czy Kładka Bernatka, która łączy Kazimierz z Podgórzem, oferując malownicze widoki na Wisłę.
PROSIMY O KONTAKT TELEFONICZNY DZIĘKI KTÓREMU UZYSKACIE PAŃSTWO WSZYSTKIE NIEZBĘDNE INFORMACJE PRZED PREZENTACJĄ NIERUCHOMOŚCI
Cena: 927 000zł
Nr oferty w biurze: MS 4224
798 280 189 (tel. kontaktowy)
mail: krakowskakamienica@gmail.com
SKUTECZNIE POMAGAMY W ZDOBYCIU
KREDYTU NA ZAKUP WYBRANEJ NIERUCHOMOŚCI
--------------------------------------------------------------------------------------
Zamieszczone na naszych stronach oferty nie stanowią oferty w rozumieniu Kodeksu Cywilnego, a dane w nich zawarte mają jedynie charakter informacyjny.