Mieszkanie na sprzedaż












Szczegóły ogłoszenia
- Symbol oferty SPEK-MS-6200
- Typ oferty mieszkanie na sprzedaż
- Cena 948 000 zł
- Charakterystyka mieszkania 63 m2, 3 pokoje
- Budynek blok; rok budowy: 2023
- Rozkład mieszkania 1p piętro
- Media Ogrzewanie: C.O. miejskie; Woda: ciepła - miejska; Gaz: brak
- Balkon jest
- Czynsz Czynsz letni: 700 zł
- Garaż garaż pod budynkiem
- Instalacje nowe
- Okna PCV
- Stan lokalu wysoki standard
- Technologia budowlana tradycyjna
- Winda Tak
Lokalizacja
- Adres małopolskie, Kraków, Bieżanów-Prokocim
Opis nieruchomości
POLECAMY !!! MIESZKANIE 3POKOJOWE DO WEJŚCIA! ZŁOCIEŃ!
Mam przyjemność przedstawić mieszkanie znajdujące się na ul. Henryka i Karola Czeczów -Złocień.
Nieruchomość położona na 1 piętrze w 3 piętrowym budynku z 2023r.
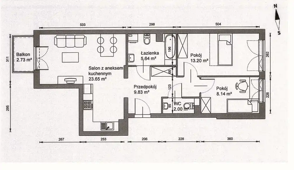
Metraż nieruchomości 62,62m2 na które składa się:
-Salon z Aneksem Kuchennym 23,65m2
-Sypialnia I 13,2m2
-Sypialnia II 8,14m2
-Łazienka 5,64m2
-Pomieszczenie Gospodarcze (doprowadzona instalacja wod-kan) 2m2
-Przedpokój z dużą szafą w zabudowie 9,83m2
* do mieszkania przynależy balkon 2,73m2
Miejsce Postojowe w hali garażowej dodatkowo płatne 50.000zł
Ciepła woda oraz ogrzewanie miejskie.
Czynsz 700zł
Mieszkanie bardzo ciepłe i jasne, dwustronna ekspozycja (wschodnia i zachodnia) wykończone w wysokim standardzie, klimatyzacja, zabudowa kuchenna i szafy wykonane przez stolarza, gotowe do zamieszkania od zaraz.
Świetna lokalizacja - spacerem kilka minut do przystanku MPK z którego można dotrzeć w każdą część Krakowa. W pobliżu liczna infrastruktura handlowo-usługowa - Żabka. Rossman, Pepco, Biedronka, apteka, cukiernia, fryzjer, kwiaciarnia, salon kosmetyczny, bankomat, nowoczesna szkoła podstawowa, biblioteka, przedszkola.
Zapraszam na prezentacje!
Przed prezentacją obowiązuje podpisanie standardowej umowy pośrednictwa.
Spektrum Estate Wioletta Grubarek
ul. Kazimierza Wielkiego 58/3 30-082 Kraków
Pośrednik odpowiedzialny zawodowo za wykonanie umowy pośrednictwa
Nr Licencji 5989.
Oferuje skuteczną i bezpłatną pomoc w uzyskaniu kredytu.
Przedstawione powyżej informacje nie stanowią oferty handlowej w rozumieniu przepisów prawa, lecz stanowią zaproszenie do zapoznania się nią. Wszelkie dane dotyczące nieruchomości uzyskano na podstawie oświadczeń właściciela.