Mieszkanie na sprzedaż








































Szczegóły ogłoszenia
- Symbol oferty BS4-MS-313468
- Typ oferty mieszkanie na sprzedaż
- Cena 949 000 zł
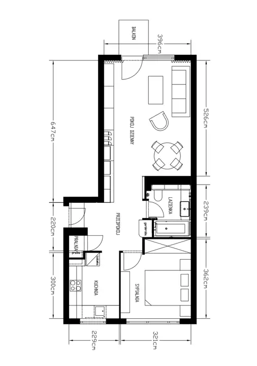
- Charakterystyka mieszkania 51.17 m2, 2 pokoje
- Budynek blok; rok budowy: 1956
- Rozkład mieszkania 3p piętro
- Media Ogrzewanie: C.O. miejskie; Gaz: brak
- Balkon jest
- Czynsz Czynsz letni: 661 zł
- Garaż garaż murowany
- Ilość sypialni 1
- Instalacje nowe
- Okna PCV
- Otoczenie osiedle
- Stan lokalu idealny
- Technologia budowlana -
Lokalizacja
- Adres małopolskie, Kraków, Podgórze
Opis nieruchomości
w centrum Starego Podgórza
Z prawdziwą przyjemnością prezentuję nowoczesny, rozsądnie rozplanowany przez architektów, z dbałością o wszelkie szczegóły apartament w centrum Starego Podgórza o powierzchni 51,17 mkw, z piwnicą, balkonem, na 3-cim pietrze na ulicy Śliskiej, z możliwością dokupienia murowanego garażu obok bloku. Mieszkanie posiada dużo ciepłego światła, zostało wykończone w stonowanych, pastelowych kolorach.
Znajduje się na 3-cim pietrze z 5-u, posiada dwustronną ekspozycję wschód -zachód, blok jest z lat 50-ych, z cegły, ocieplony.
Wyjątkowe cechy tej nieruchomości to:
- piękny pokój dzienny, w pastelowych tonacjach, z wyjściem na balkon
- odrębna, jasna sypialnia
- kuchnia z dużym, panoramicznym oknem
- łazienka z wanną/prysznicem
- osobno zaaranżowana garderoba i pralnia - niezwykle sprawnie wygospodarowany element mieszkania
- na podłogach piękny dębowy parkiet, idealnie pasujący do charakteru nieruchomości
- łatwość wydzielenia kolejnego (3-ciego pokoju)
- w kuchni i łazience wysokiej klasy płytki ceramiczne
- na ścianach farba zmywalna, dzięki której bardzo łatwo utrzymać apartament w czystości
- okna nowe, plastikowe
- w pokoju dziennym indywidualnie projektowana zabudowa z dużą ilością miejsc do przechowywania, dodatkowo ciekawie zaprojektowane oświetlenie
- w łazience zabudowa meblowa na wymiar, blaty z konglomeratu, armatura Grohe/Esprit, ceramika Roca/Duravit
- w osobnym pomieszczeniu jest pralnia, wyposażona w pralkę oraz szafki na chemię i detergenty a także miejsce na odkurzacz i akcesoria do sprzątania
- od 2012 r nowa instalacja elektryczna, wodno-kanalizacyjna, podwieszane sufity, gładzie gipsowe
- bliskość komunikacji miejskiej (tramwaj, autobus, około 250 m jednak w mieszkaniu jest to absolutnie niesłyszalne)
- drzwi wewnętrzne na wymiar, aż do sufitu, powyżej 254 cm
- możliwość zakupu garażu murowanego (nie jest obligatoryjny) w cenie 110 000 zł.
Zapraszam, przyjdź i sprawdź dlaczego warto,
1. nietuzinkowe, wspaniałe mieszkanie, otoczone zielenią przede wszystkim dla mieszkańców, z niewielką ilością turystów
2. Stare Podgórze - jedna z najbardziej klimatycznych, cenionych dzielnic Krakowa, miejsce o historycznym charakterze, z bliskością terenów zielonych, Bulwarów Wiślanych, lokalnych kawiarnii, restauracji oraz bezpośrednią bliskością centrum Krakowa - co podnosi komfort codziennego życia oraz zwiększa wartość nieruchomości w czasie
3. bardzo dobra płynność rynku i potencjał wzrostu nieruchomości, ceny mieszkań przy ulicy Śliskiej są zwykle wyższe od średniej ceny za mkw w Krakowie, co oznacza atrakcyjność lokalizacji i potencjał dalszego wzrostu wartości inwestycji z czasem (zysk przy sprzedaży). Stare Podgórze historycznie utrzymuje silną pozycję na rynku wtórnym, co ułatwia sprzedaż
4. bliskość komunikacji miejskiej, usług, udogodnień, centrów usługowych, szkół, przedszkoli, aptek, przychodni.
Kupując mieszkanie w Starym Podgórzu inwestujesz w lokalizację łączącą prestiż, stały popyt na mieszkania i bardzo dobrą komunikację - to przekłada się na jakość życia i potencjał zakupu tego mieszkania.
Ja serdecznie zapraszam, na rynku niewiele jest takich pięknych mieszkań w tak dobrej lokalizacji.
Zapraszam do współpracy pośredników.
Zapraszam na bezpłatną prezentację tego wyjątkowego mieszkania, chętnie odpowiem na Państwa pytania. Prezentacja jest całkowicie bezpłatna po podpisaniu umowy pośrednictwa.
Możemy również zaproponować bardzo dobrą ofertę współpracy dla Klientów potrzebujących wsparcia kredytowego.
Anna Patócs
tel. 537 193 763
E: ania3@sadurscy.pl
Biuro Bracia Sadurscy