Mieszkanie na sprzedaż

967 608
54 m2
1 / 18
Oddział BS2, Rynek Pierwotny

Szczegóły ogłoszenia

  • Symbol oferty BS2-MS-305672
  • Typ oferty mieszkanie na sprzedaż
  • Cena 967 608 zł
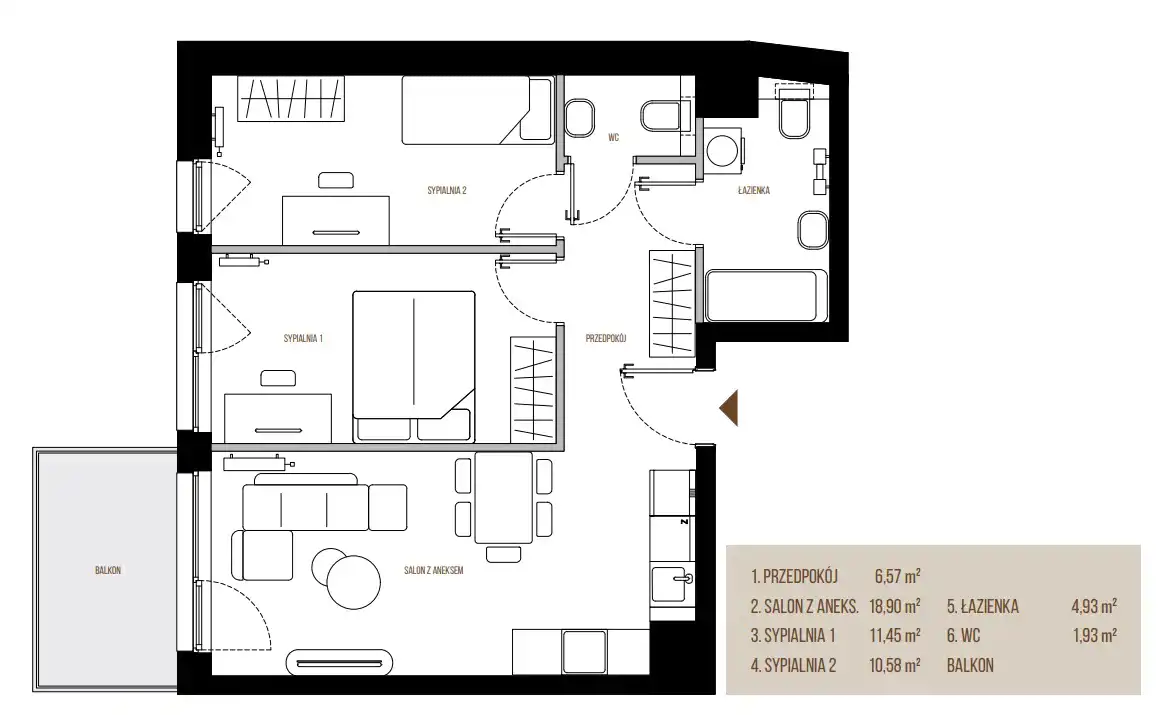
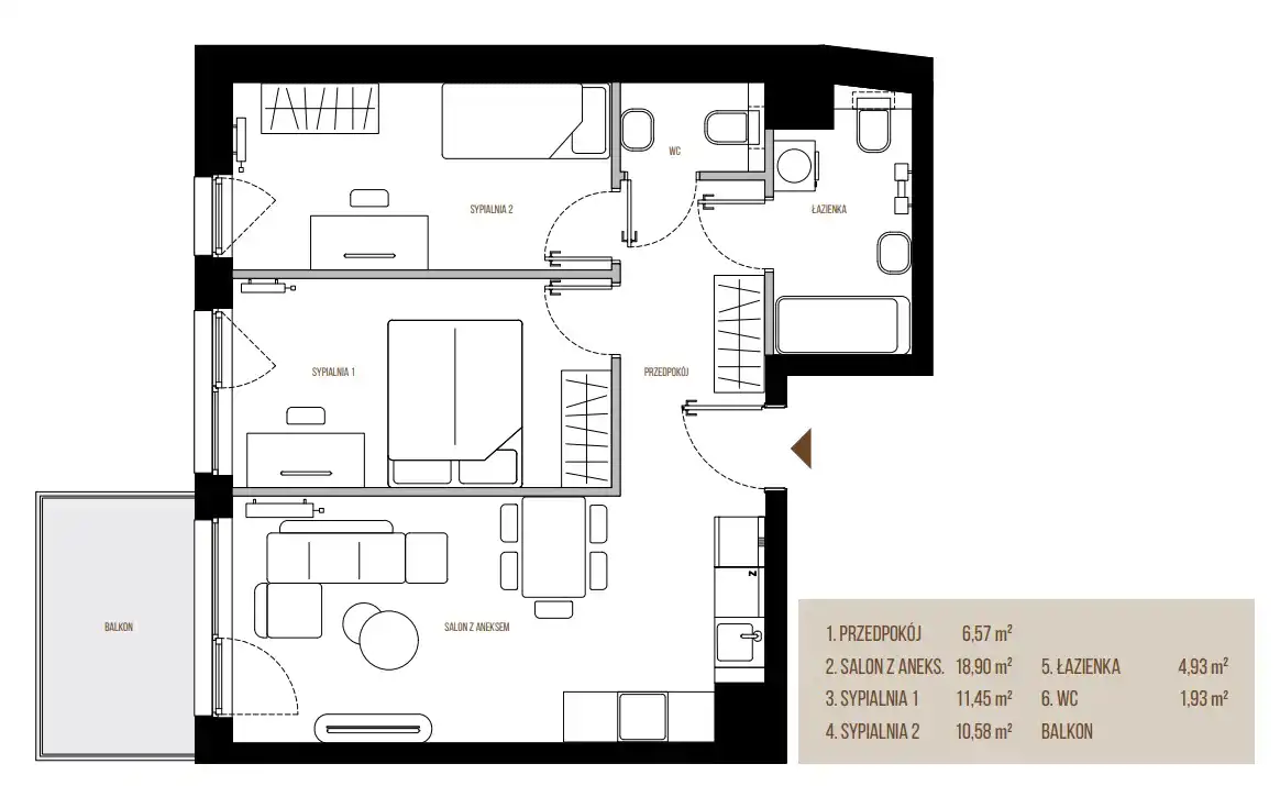
  • Charakterystyka mieszkania 54.36 m2, 3 pokoje
  • Budynek apartamentowiec; rok budowy: 2026
  • Rozkład mieszkania 2p piętro
  • Media Ogrzewanie: C.O. miejskie; Woda: ciepła - miejska; Gaz: brak
  • Balkon jest
  • Dojazd asfalt
  • Garaż garaż podziemny
  • Ilość sypialni 2
  • Instalacje ELEKTRYCZNA
  • Okna PCV
  • Otoczenie centrum miasta
  • Stan lokalu bardzo dobry
  • Technologia budowlana beton, cegła
  • Winda Tak

Lokalizacja

  • Adres małopolskie, Kraków, Łagiewniki-Borek Fałęcki

Opis nieruchomości

Bracia Sadurscy mają przyjemność zaprezentować na sprzedaż inwestycję . Położenie między centrum handlowym Bonarka a strategicznym rondem Matecznego zapewnia bliskość malowniczego Podgórza. Łatwy dostęp do głównych arterii komunikacyjnych – od Trasy Łagiewnickiej po szybki zjazd na autostradę. Inwestycja idealnie wpisując się w tętniący rytm miejskiego życia.

Charakterystyka inwestycji:

  • Mieszkania o powierzchni od 39 m² do 114 m²
  • 6 pięter
  • 2 lokale usługowo-handlowe
  • 249 miejsc parkingowych w garażu podziemnym
  • Komórki lokatorskie dostępne w hali garażowej oraz na piętrach
  • 10 miejsc postojowych na zewnątrz

Centrum inwestycji stanowi wyjątkowy dziedziniec – przestrzeń pełna życia, gdzie architektura harmonijnie współgra z naturą.

Termin realizacji: zakończenie budowy przewidziane na lipiec 2026 roku, z finalizacją umów końcowych najpóźniej w kwietniu 2027 roku.

Zapraszamy do kontaktu!

W celu uzyskania dodatkowych informacji zapraszam do kontaktu: Arkadiusz Zemła, Doradca ds. Nieruchomości
Telefon: +48 518 706 552
E-mail: arek@sadurscy.pl

Bracia Sadurscy are pleased to present for sale. . Situated between the Bonarka shopping center and the strategic Matecznego roundabout, this location offers proximity to the picturesque Podgórze district. It provides convenient access to main transportation routes – from the Łagiewnicka Route to quick access to the motorway, perfectly integrating with the vibrant rhythm of city life.

Investment highlights:

  • Apartments ranging from 39 m² to 114 m²
  • 6 floors
  • 2 commercial and service premises
  • 249 parking spaces in the underground garage
  • Storage rooms available in the garage hall and on the residential floors
  • 10 outdoor parking spaces

The centerpiece of the development is an extraordinary courtyard – a lively space where architecture harmoniously interacts with nature.

Completion timeline: construction is scheduled to be completed in July 2026, with final agreements to be concluded by April 2027 at the latest.

Arkadiusz Zemła
Telefon: +48 518 706 552
E-mail: arek@sadurscy.pl

Nota prawna

Opis oferty zawarty na stronie internetowej sporządzany jest na podstawie oględzin nieruchomości oraz informacji uzyskanych od właściciela, może podlegać aktualizacji i nie stanowi oferty określonej w art. 66 i następnych K.C.

Kalkulator kredytowy

PLN
%
Wysokość raty 5103.31 PLN
Formularz kontaktowy