Mieszkanie na sprzedaż






Szczegóły ogłoszenia
- Symbol oferty SPEK-MS-5944
- Typ oferty mieszkanie na sprzedaż
- Cena 980 000 zł
- Charakterystyka mieszkania 75.52 m2, 3 pokoje
- Budynek budynek wolnostojący; rok budowy: 2025
- Rozkład mieszkania parter piętro
- Media Ogrzewanie: podłogowe; Woda: tak; Gaz: brak
- Dojazd asfalt
- Instalacje dobre
- Okna PCV
- Otoczenie zabudowa jednorodzinna
- Stan lokalu wysoki standard
- Technologia budowlana -
Lokalizacja
- Adres małopolskie, Kraków, Prądnik Biały
Opis nieruchomości
MIESZKANIE W WYSOKIM STANDARDZIE, Z OGRODEM
LOKALIZACJA:
Nieruchomość zlokalizowana na nowoczesnej inwestycji os. Dvorskie Residence (oddanie sierpień 2025), dzielnica Prądnik Biały. Cała okolica bardzo cicha posiada doskonale rozwiniętą infrastrukturę: sklepy, szkoły, place zabaw, ośrodki kultury oraz inne punkty usługowe. Dodatkowo w niedalekiej odległości Trasa Wolbromska - szybki dojazd do centrum Krakowa oraz okolicznych większych sklepów dyskontowych.
W pobliżu tereny zielone, przy rzece Sudół
Przystanki komunikacji miejskiej (tramwaj, autobus) zapewniają połączenie z każdą częścią Krakowa. Dojazd do miasta - niecałe 20 minut.
NIERUCHOMOŚĆ:
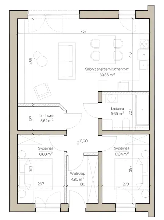
Nieruchomość o powierzchni 75,52 m², na parterze 2-piętrowego budynku, rozkłada się następująco:
Salon z aneksem kuchennym: 39,86 m²
Pokój 1: 10.60 m²
Pokój 2: 10.84 m²
Łazienka: 5,65 m²
Przedpokój: 4.95 m²
Kotłownia: 3,62 m²
Ogród (ogrodzony): 105,71 m²
Mieszkanie wyposażone w nowoczesne technologię i rozwiązania ekologiczne!
Dodatkowo, w cenie:
Miejsca postojowe: 2 +
Dodatkowe informacje:
-ogrzewanie podłogowe na całości mieszkania - sterowane indywidualnie
-pompy ciepła DAIKIN 4 kW Rekuperacja wentylacja mechaniczna z odzyskiem ciepła Instalacja TV/SAT i internetowa
-instalacja - fotowoltaika
-instalacja - ładowarka do samochodów elektrycznych
-okna trzyszybowe z dodatkową izolacją akustyczną i termiczną
(ZDJĘCIA Z MAJA 2025)
KONTAKT: 536-850-730
Pośrednik odpowiedzialny zawodowo za wykonanie umowy pośrednictwa Wioletta Grubarek - Spektrum Estate 30-074 Kraków , ul. Kazimierza Wielkiego 58/3 Nr Licencji 5989.
Przed prezentacją obowiązuje podpisanie standardowej umowy pośrednictwa.
Oferty zamieszczone na naszych stronach internetowych nie stanowią oferty w rozumieniu kodeksu cywilnego.
ZAPRASZAMY