Obiekt na sprzedaż






Szczegóły ogłoszenia
- Symbol oferty APRS-BS-384
- Typ oferty obiekt na sprzedaż
- Cena 1 700 000 zł
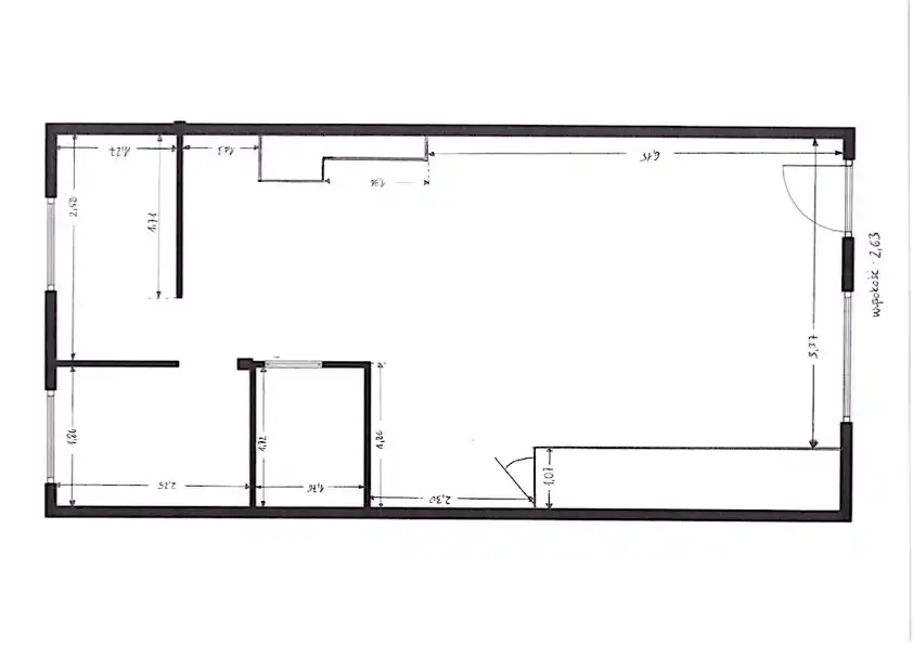
- Charakterystyka mieszkania 240 m2, do zamieszkania
- Budynek dom; rok budowy: 2004
- Media Ogrzewanie: elektryczne; Woda: ciepła - terma; Gaz: brak
- Instalacje dobre
- Okna PCV
- Stan lokalu do wprowadzenia
Lokalizacja
- Adres małopolskie, Kraków, Podgórze Duchackie
Opis nieruchomości
Biuro Nieruchomości APREST prezentuje na sprzedaż budynek usługowy z częścią mieszkalną w Krakowie – Podgórze Duchackie.
STOPA ZWROTU 6,7% lub CAŁY BUDYNEK POD SIEDZIBĘ FIRMY
Nieruchomość o całkowitej powierzchni 240 m² składa się z dwóch niezależnych lokali:
Parter:
-
Lokal handlowo-usługowy z dużymi witrynami i bezpośrednim wejściem od ulicy.
-
Lokal jest obecnie wynajęty stabilnym najemcom na długoletnie umowy waloryzowane, generując atrakcyjną stopę zwrotu na poziomie 6,7%
-
Istnieje możliwość wypowiedzenia umów najmu i wykorzystania lokali na własne potrzeby, np. jako siedzibę firmy, biuro lub działalność usługową.
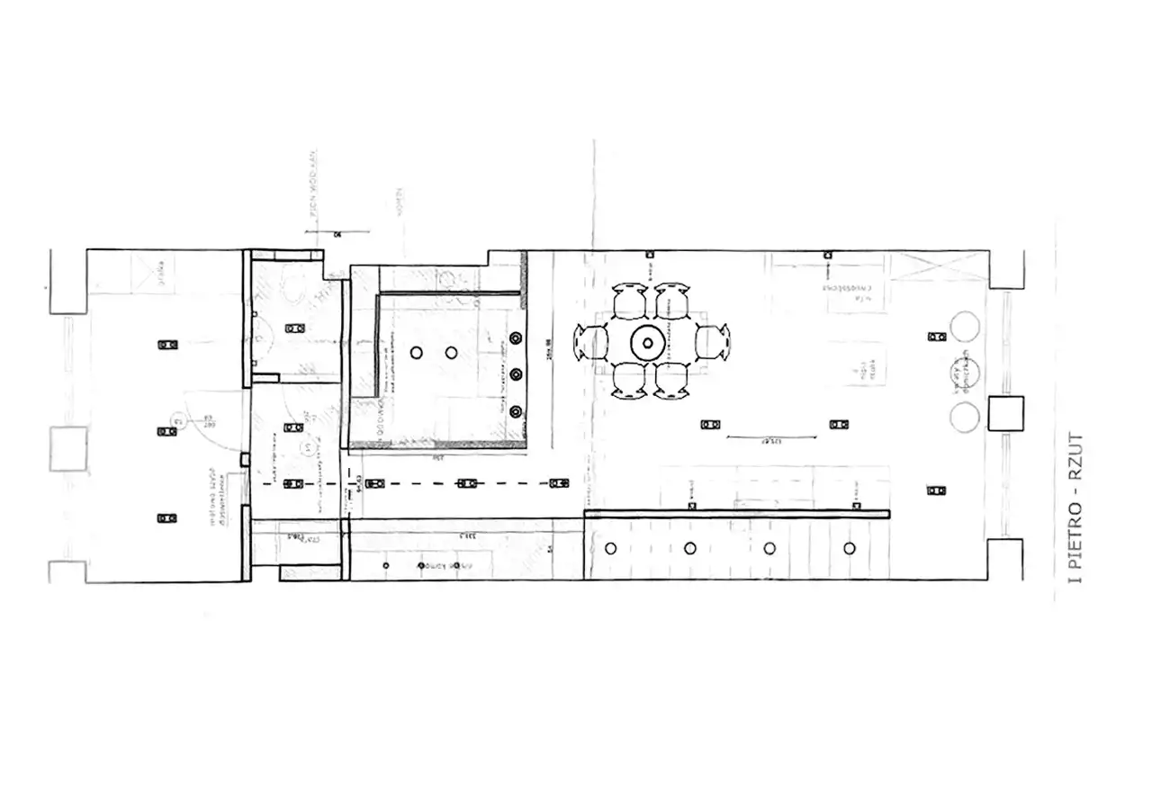
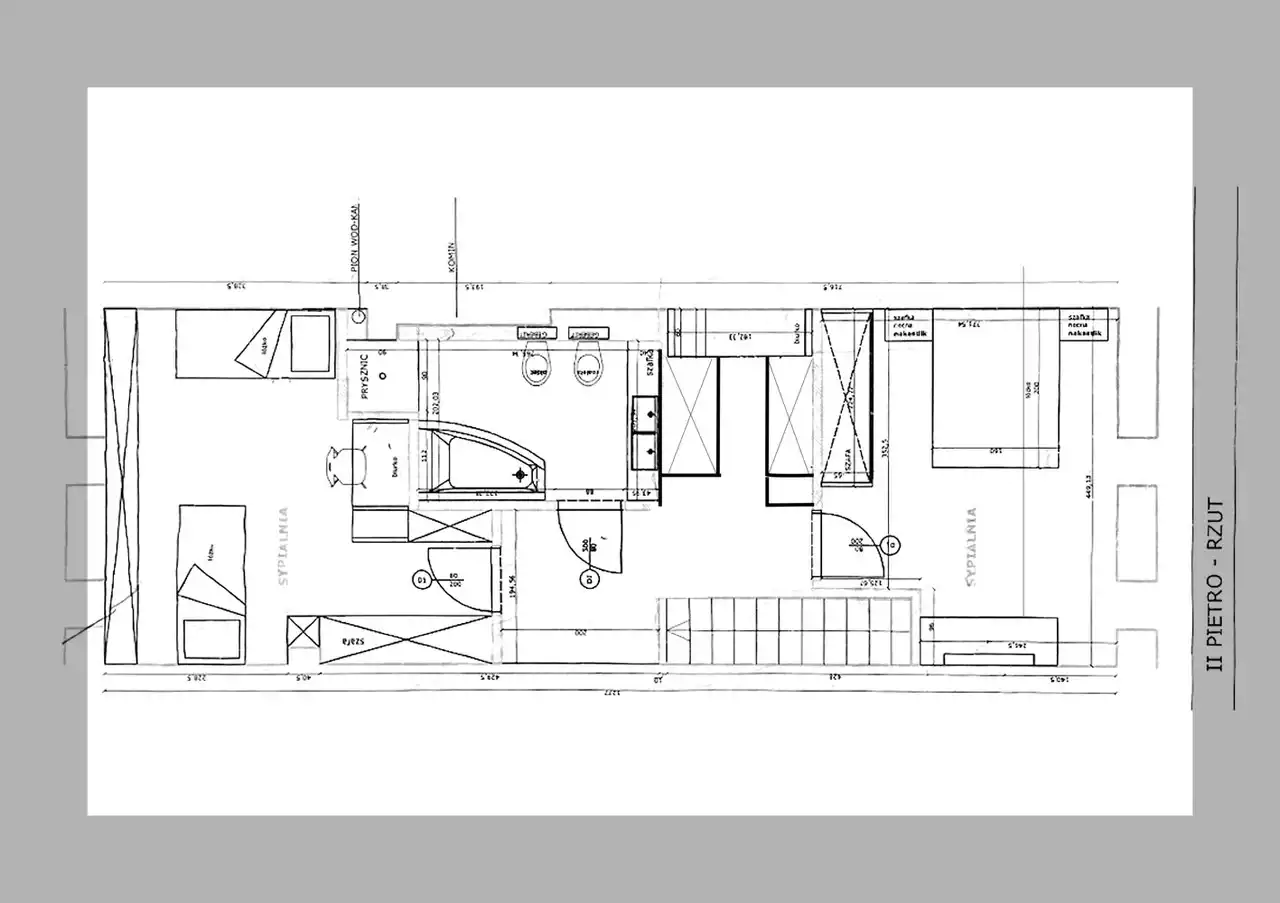
Pierwsze i drugie piętro:
-
Dwupoziomowy lokal o powierzchni 120 m², pełniący obecnie funkcję mieszkalną.
-
W aranżacji mieszkalnej znajduje się: salon z jadalnią i kuchnią, dwie sypialnie, łazienka i osobna toaleta, garderoba, dodatkowe pomieszczenie (np. pralnia/gabinet), przedpokój oraz klatka schodowa.
-
Lokal może być użytkowany jako mieszkanie, jednak z uwagi na aranżację typu „open space” istnieje możliwość łatwego przekształcenia części mieszkalnej na funkcję biurową lub usługową.
Ogrzewanie elektryczne z możliwością przerobienia na gazowe.
Możliwości wykorzystania nieruchomości:
-
Siedziba firmy w całym budynku: prowadzenie działalności biurowo-usługowej we wszystkich lokalach (możliwość wypowiedzenia umów najmu)
-
Budynek w pełni wynajęty: wszystkie lokale – usługowe i mieszkalny – mogą generować stabilny dochód z najmu
-
Mieszkanie z dodatkowym dochodem: lokal dwupoziomowy pozostaje mieszkaniem dla właściciela, a lokale usługowe zapewniają rentowny najem.
-
Adaptacja całego budynku pod własne potrzeby: możliwość przekształcenia wszystkich lokali na funkcje mieszkalne, biurowe lub usługowe
Dodatkowe atuty:
-
Możliwość parkowania 4 samochodów
-
Brak opłat czynszowych – jedynie media i użytkowanie wieczyste gruntu.
-
Elewacja budynku odnowiona we wrześniu 2024 roku.
-
Doskonała ekspozycja przy ulicy o dużym natężeniu ruchu, zwiększająca potencjał komercyjny.
Lokalizacja:
-
Ul. Nowosądecka – trasa Łagiewnicka, druga obwodnica miasta, zapewniająca świetną komunikację i widoczność lokali.
-
W pobliżu: park, place zabaw, restauracje, sklepy osiedlowe, dyskonty, supermarkety, przedszkola, szkoły, kościół, stacja paliw oraz Centrum Handlowe Bonarka.
-
Przystanki autobusowe i tramwajowe (w tym szybki tramwaj) w odległości ok. 300 m.
Nieruchomość łączy funkcje mieszkalne i komercyjne, oferując wiele scenariuszy wykorzystania: jako siedziba firmy, mieszkanie z dodatkowym dochodem z najmu, pełna inwestycja generująca stabilny przychód, lub możliwość przekształcenia budynku na własne potrzeby.
Cena:
Cena sprzedaży nieruchomości wraz z udziałem w drodze oraz miejscami parkingowymi : 1 700 000 PLN brutto
Anna Piwowarska
Doradca ds. Nieruchomości
Tel. 501 858 805
Ogłoszenie ma charakter informacyjny i nie stanowi oferty w rozumieniu art. 66 §1 Kodeksu Cywilnego.
STOPA ZWROTU 6,7%.
Nieruchomość o powierzchni całkowitej 240 m2 składa się z:
W poziomie parteru:
oraz
Na pierwszym i drugim piętrze budynku:
Dwupoziomowego lokalu pełniącego obecnie funkcję mieszkalną, z możliwością adaptacji na cele biurowo-usługowe o całkowitej powierzchni 120 m².
W aktualnej aranżacji funkcji mieszkalnej, lokal ma następującą adaptację:
-
salon z jadalnią i kuchnią,
-
dwie sypialnie,
-
łazienka i osobna toaleta,
-
garderoba,
-
dodatkowe pomieszczenie (np. pralnia/gabinet),
-
przedpokój,
-
klatka schodowa
Dodatkowo do nieruchomości przynależą cztery zewnętrzne miejsca parkingowe.
Nieruchomość doskonale sprawdzi się zarówno jako siedziba firmy, biuro, lokal usługowy, jak i inwestycja przynosząca stały dochód.
Lokale usługowe generują atrakcyjną stopę zwrotu.
Część mieszkalna na piętrze może pełnić funkcję biura, mieszkania dla właściciela lub zostać przeznaczona na wynajem, zwiększając tym samym potencjał inwestycyjny nieruchomości.
Obiekt daje możliwość połączenia funkcji mieszkalnej i komercyjnej, co czyni go propozycją zarówno dla inwestora, jak i dla przedsiębiorstwa poszukującego reprezentacyjnej siedziby.
Dzięki dogodnej lokalizacji oraz doskonałej ekspozycji przy ulicy o dużym natężeniu ruchu, nieruchomość stanowi atrakcyjną ofertę na rynku komercyjnym.
Elewacja została odnowiona we wrześniu 2024 roku.
Brak opłat czynszowych – dodatkowe koszty tylko za media oraz użytkowanie wieczyste gruntu.
Lokalizacja:
Nieruchomość znajduje się przy ul. Nowosądeckiej – trasa Łagiewnicka, stanowiąca drugą obwodnicę miasta, zapewnia doskonałą komunikację i widoczność lokali.
W bezpośrednim sąsiedztwie: park, place zabaw, restauracje, sklepy osiedlowe, dyskonty, supermarkety, przedszkola, szkoły, kościół, stacja paliw oraz Centrum Handlowe Bonarka.
W odległości ok. 300 metrów znajdują się przystanki autobusowe i tramwajowe (w tym szybki tramwaj).
Cena:
Cena sprzedaży nieruchomości: 1 550 000 PLN
Obligatoryjny zakup udziału w drodze i 4 miejscach parkingowych: 150 000 PLN
Zapraszamy do kontaktu oraz na prezentację nieruchomości.
Opiekun oferty:
Anna Piwowarska
Doradca ds. Nieruchomości
Tel. 501 858 805
Ogłoszenie ma charakter informacyjny i nie stanowi oferty w rozumieniu art. 66 §1 Kodeksu Cywilnego.