Obiekt na wynajem








































Szczegóły ogłoszenia
- Symbol oferty LMN-BW-313653
- Typ oferty obiekt na wynajem
- Czynsz wynajmu 38 zł / miesiąc
- Charakterystyka mieszkania 240 m2
- Budynek rok budowy: 1960
- Media Ogrzewanie: C.O. GAZOWE; Woda: jest; Kanalizacja: tak; Prąd: jest; Gaz: jest
- Dojazd asfalt
- Kaucja dwumiesięczna
- Otoczenie działki zabudowane
Lokalizacja
- Adres małopolskie, Kraków, Łagiewniki-Borek Fałęcki
Opis nieruchomości
Do wynajęcia – budynek biurowy przy ul. Zakopiańskiej w Krakowie
Do wynajęcia funkcjonalny, trzykondygnacyjny budynek biurowy zlokalizowany przy ul. Zakopiańskiej w Krakowie – jednej z głównych, ruchliwych arterii miasta, gwarantującej doskonałą widoczność, stały przepływ klientów oraz świetną ekspozycję dla działalności biznesowej.
Nieruchomość idealnie sprawdzi się jako siedziba firmy, biuro, placówka usługowa, szkoleniowa lub handlowa.
Układ i funkcjonalność budynku:
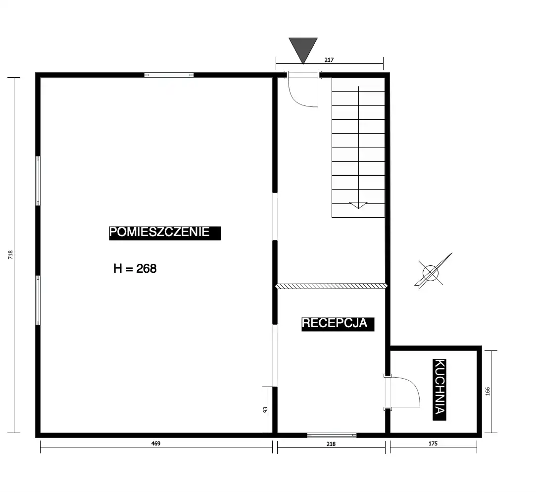
• Parter: reprezentacyjna recepcja, pomieszczenie biurowe oraz zaplecze socjalne
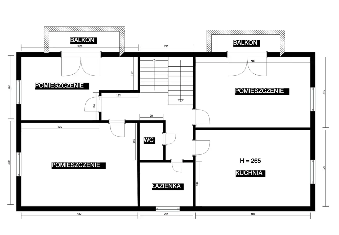
• I piętro: cztery pomieszczenia biurowe oraz toalety
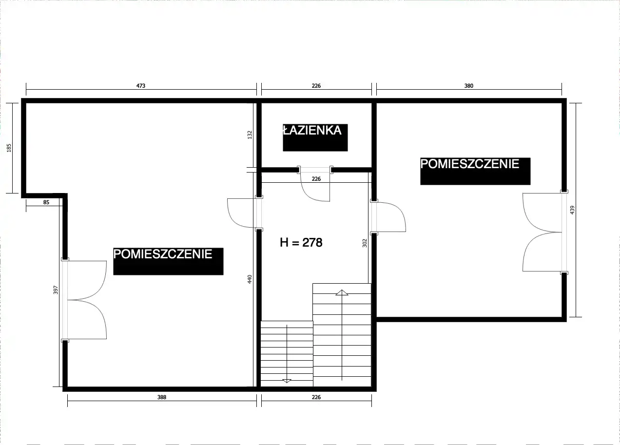
• II piętro: dwa pomieszczenia biurowe oraz toaleta
Budynek jest podpiwniczony – w piwnicy znajduje się kotłownia oraz dodatkowe pomieszczenia magazynowe, zwiększające funkcjonalność obiektu.
Standard i media:
• budynek wyposażony we wszystkie media
• ogrzewanie indywidualne – gazowe
• budynek wolnostojący
Dodatkowe atuty:
• min. 5 miejsc parkingowych na terenie nieruchomości
• bardzo dobra komunikacja z centrum Krakowa oraz południową częścią miasta
• szybki dojazd do obwodnicy i głównych tras wylotowych
• lokalizacja przy ulicy o wysokim natężeniu ruchu – idealna dla firm stawiających na rozpoznawalność i dostępność.
Czynsz najmu - 9200,00 zł netto/miesiąc
Zapraszam do kontaktu.
Magdalena Kempkowska
La Maison Nieruchomości
tel. 512-532-892
e-mail: magda@lamaison.net.pl
Prezentacja nieruchomości bezpłatna, po uprzednim podpisaniu umowy pośrednictwa.
Zapraszam do współpracy również inne biura nieruchomości.