Lokal na sprzedaż
1 300 000 zł
396 m2










1 / 10
Szczegóły ogłoszenia
- Symbol oferty ASN-LS-1315
- Typ oferty lokal na sprzedaż
- Cena 1 300 000 zł
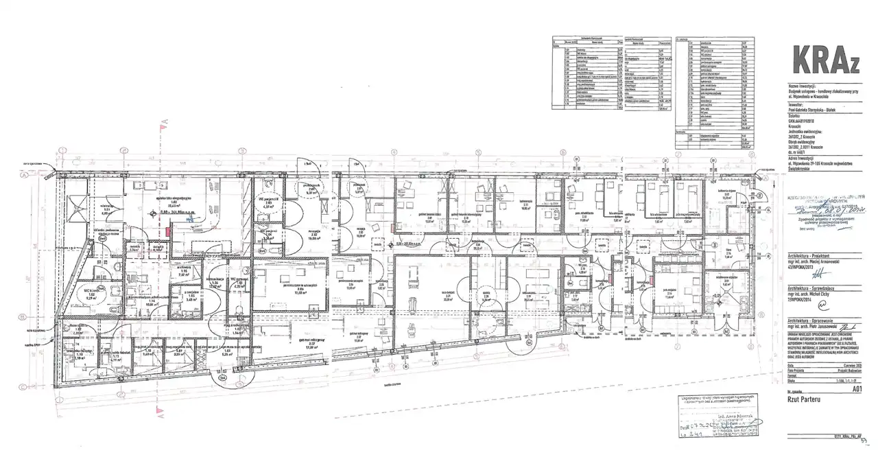
- Charakterystyka mieszkania 395.93 m2
- Budynek budynek wolnostojący; rok budowy: 2020
- Rozkład mieszkania parter piętro
- Media Ogrzewanie: centralne; Woda: jest; Gaz: brak
- Dojazd asfalt
- Otoczenie działki zabudowane
- Stan lokalu do adaptacji
Lokalizacja
- Adres świętokrzyskie, włoszczowski, Krasocin
Opis nieruchomości
Na sprzedaż obiekt handlowo-usługowy o powierzchni 395,93 m2 zlokalizowany na działce o powierzchni 900 m2 w centrum Krasocina. Obiekt w stanie surowym otwartym do wykończenia według potrzeb nabywcy. Działka o wymiarach około 20 m x 51 m x 13 m x 46 m. Dostępne media: woda w budynku, kanalizacja w ulicy, prąd w ulicy.
Budynek wybudowany z sylikatu, dach kryty blachą.
Budynek położony w centrum miejsowości zaraz na przeciwko Banku i obiektu handlowo usługowe. Idealny po każdy rodzaj działaności handlowo usługowej. Pierwotnie budowany pod działalność medyczną.
W razie dodatkowych pytań zapraszam do kontaktu telefonicznego 577 963 452.
Budynek wybudowany z sylikatu, dach kryty blachą.
Budynek położony w centrum miejsowości zaraz na przeciwko Banku i obiektu handlowo usługowe. Idealny po każdy rodzaj działaności handlowo usługowej. Pierwotnie budowany pod działalność medyczną.
W razie dodatkowych pytań zapraszam do kontaktu telefonicznego 577 963 452.
Nota prawna
Opis oferty zawarty na stronie internetowej sporządzany jest na podstawie oględzin nieruchomości oraz informacji uzyskanych od właściciela, może podlegać aktualizacji i nie stanowi oferty określonej w art. 66 i następnych K.C.
Kalkulator kredytowy
Formularz kontaktowy