Mieszkanie na sprzedaż









Szczegóły ogłoszenia
- Symbol oferty PFT-MS-4312
- Typ oferty mieszkanie na sprzedaż
- Cena 125 000 zł
- Charakterystyka mieszkania 42.8 m2, 1 pokój, do remontu
- Budynek szeregowiec; rok budowy: 1923
- Rozkład mieszkania parter piętro
- Media Woda: tak
- Dojazd asfalt
- Działka Niezagospodarowana
- Okna drewniane
- Technologia budowlana cegła
Lokalizacja
- Adres łódzkie, kutnowski, Kutno
Opis nieruchomości
Nietypowa nieruchomość czyli połączenie mieszkania i domu w jednym. Jest to mieszkanie w zabudowie segmentowej z działką o powierzchni 970m2 zlokalizowana na obrzeżach miasta. W sąsiedztwie są nowe domy jednorodzinne. Jest również przystanek autobusowy i sklep.
Nieruchomość znajduje się w budynku wybudowanym w 1923roku z cegły czerwonej. Znajduje się ona na przedmieściach Kutna - we wsi Bielawki, 5 km od centrum Kutna, 8 km do wjazdu na A1.
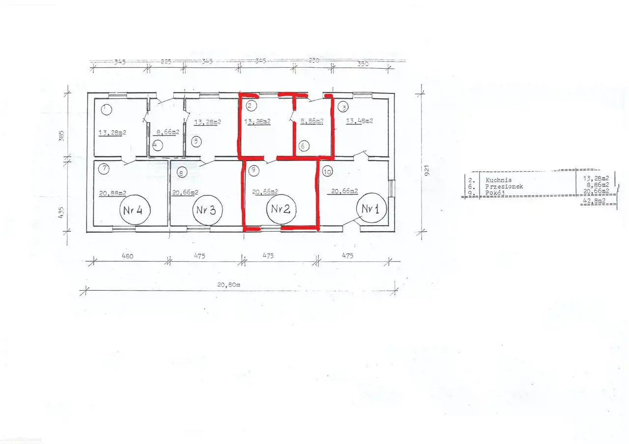
Mieszkanie posiada ogromny potencjał aranżacyjny. Na powierzchni 43m2 można utworzyć pokój dzienny z aneksem kuchennym, sypialnię, przedpokój i łazienkę z toaletą. Nad całością mieszkania jest strych.
Obecnie jest korytarz 8,86m2, pokój 20,66m2 i kuchnia 13,28m2. Z korytarza mamy wejście na poddasze - obecnie nieużytkowe.
Media: w lokalu jest elektryczność i woda, kanalizacja miejska w działce (zgoda na przyłącze jest wydana).
Stan prawny: uregulowany. Jest założona księga wieczysta.
Dojazd: ulica o nawierzchni asfaltowej
Drogi Kliencie -za usługę pośrednictwa pobieramy wynagrodzenie.
Jeżeli zdecydujesz się na zakup nieruchomości w naszym biurze to min pomożemy w uzyskaniu kredytu na zakup wybranej przez Ciebie nieruchomości i zorganizujemy obsługę notarialną.
Uwaga! Dane w ofercie mogą odbiegać od stanu faktycznego, mają jedynie charakter informacyjny, oparte są na informacjach uzyskanych od klientów zgłaszających. Oferta nie stanowi oferty w rozumieniu kodeksu cywilnego. Oferta może być w danym momencie nieaktualna. Prosimy o kontakt telefoniczny lub e-mailowy. Więcej ofert na naszej stronie internetowej