Mieszkanie na sprzedaż































Szczegóły ogłoszenia
- Symbol oferty LID-MS-10518
- Typ oferty mieszkanie na sprzedaż
- Cena 349 900 zł
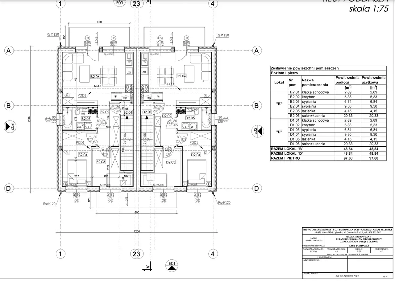
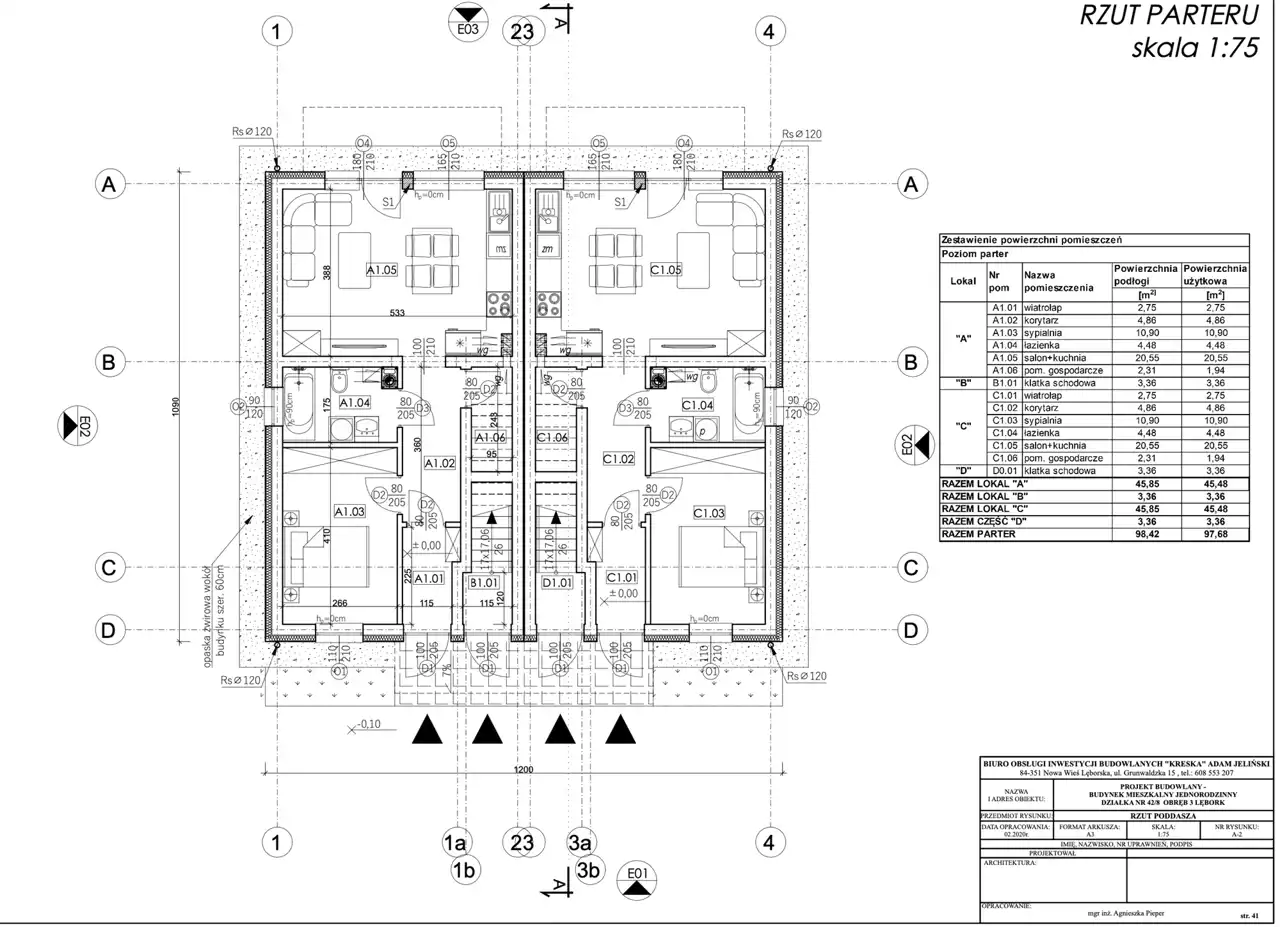
- Charakterystyka mieszkania 48.84 m2, 2 pokoje
- Budynek budynek wielorodzinny; rok budowy: 2025
- Rozkład mieszkania parter piętro
- Media Ogrzewanie: gazowe; Woda: przepływowy piec gazowy; Gaz: jest
- Balkon jest
- Dojazd asfalt
- Ilość sypialni 1
- Instalacje nowe
- Okna PCV 3 szyby, ciepły montaż
- Otoczenie działki zabudowane
- Stan lokalu deweloperski
- Technologia budowlana ceramiczny porotherm
Lokalizacja
- Adres pomorskie, Lębork
Opis nieruchomości
Nowa inwestycja mieszkaniowa w Lęborku – ul. Wrocławska
Przestrzeń do życia, która oddycha spokojem
W zielonej, spokojnej części Lęborka, zaledwie 1,5 km od ścisłego centrum miasta, powstaje nowoczesne, kameralne osiedle mieszkaniowe. Inwestycja przy ul. Wrocławskiej to połączenie funkcjonalnej architektury, wysokiej jakości wykonania oraz przemyślanej lokalizacji, która gwarantuje komfort codziennego życia i sprawną komunikację zarówno z centrum miasta, jak i z aglomeracją Trójmiejską.
Dzięki bliskości nowo budowanego węzła trasy S6, szybko i wygodnie dotrzesz do Gdyni, Sopotu i Gdańska. To idealna propozycja dla osób, które cenią sobie ciszę i prywatność, a jednocześnie chcą mieć w zasięgu ręki wszystkie atrakcje i udogodnienia miejskiego życia.
Inwestycja – szczegóły
Inwestycja składa się z 6 budynków czterolokalowych, co łącznie daje 24 niezależne mieszkania – każde z oddzielnym wejściem, miejscem postojowym oraz – w przypadku lokali parterowych – prywatnym ogródkiem.
Termin oddania I etapu inwestycji: przełom października i listopada 2025 r.
Dostępne układy mieszkań
Mieszkania na parterze – 45,84 m²
-
Salon z aneksem kuchennym
-
Sypialnia
-
Łazienka z WC
-
Korytarz
-
Pomieszczenie gospodarcze
-
Ogródek do wyłącznego użytku
Mieszkania na piętrze – 49,84 m² + strych
-
Salon z aneksem kuchennym
-
Dwa pokoje
-
Łazienka z WC
-
Korytarz
-
Przynależny strych – dodatkowa przestrzeń z ogromnym potencjałem adaptacyjnym (gabinet, sypialnia, pokój hobby)
Standard wykończenia – solidna baza dla Twoich pomysłów
Każde mieszkanie zostanie oddane w stanie deweloperskim, obejmującym:
-
Tynki cementowo-wapienne
-
Wylewki betonowe
-
Instalację elektryczną z białym montażem
-
Instalacje hydrauliczne i wentylacyjne
-
Ogrzewanie podłogowe zasilane gazowym piecem dwufunkcyjnym
-
Starannie wykonane budynki z wysokiej klasy materiałów, o nowoczesnej strukturze i modnej kolorystyce
Pomoc finansowa – doświadczenie, które działa
Zakup nieruchomości to decyzja, przy której warto mieć po swojej stronie profesjonalne wsparcie.
Dlatego w LIDER Nieruchomości i Finanse oferujemy kompleksowe doradztwo finansowe, prowadzone przez ekspertów z ponad 24-letnim doświadczeniem.
Nasi doradcy:
-
porównują oferty kilkunastu banków w Polsce,
-
dobierają rozwiązania indywidualnie do Twoich możliwości,
-
przejmują całość formalności – Ty wybierasz ofertę, my zajmujemy się resztą.
Wypełnij formularz, a skontaktuje się z Tobą nasz doradca finansowy:
Finansowanie nieruchomości
Masz nieruchomość na sprzedaż? Zgłoś ją nam
Jesteś właścicielem mieszkania, domu lub działki i chcesz sprzedać swoją nieruchomość?
Zapraszamy do współpracy z LIDER Nieruchomości i Finanse – biurem z wieloletnim doświadczeniem, skutecznymi strategiami marketingowymi i jedną z największych baz klientów poszukujących nieruchomości w regionie.
-
Prowadzimy przemyślane, profesjonalne kampanie reklamowe
-
Znamy lokalny rynek od podszewki
-
Działamy szybko, skutecznie i z pełnym zaangażowaniem
Zgłoś swoją nieruchomość, a nasz doradca skontaktuje się z propozycją współpracy:
Zgłoś ofertę nieruchomości
Nie znalazłeś tego, czego szukasz?
Sprawdź inne aktualne oferty mieszkań na sprzedaż w Lęborku i okolicy – regularnie aktualizujemy naszą bazę o nowe lokale i inwestycje.
Zobacz wszystkie mieszkania
Bądź na bieżąco – obserwuj nas w social media
Chcesz być zawsze pierwszy, gdy pojawi się nowa oferta?
Polub nasz profil na Facebooku i poleć go znajomym – to najprostszy sposób, by nie przegapić żadnej okazji!
Facebook – LIDER Nieruchomości i Finanse
Skontaktuj się z nami
Masz pytania? Potrzebujesz dodatkowych informacji?
Jesteśmy do Twojej dyspozycji – napisz, zadzwoń lub odwiedź nasze biuro.
84-300 Lębork ul Staromiejska 40/2 ( obok optyka Ciszewski )
biuro@nieruchomosci-lider.pl
513 136 636
LIDER Nieruchomości i Finanse – tu zaczyna się Twoja przestrzeń do życia.
Zaufaj doświadczeniu, które przynosi rezultaty.