Mieszkanie na sprzedaż
























Szczegóły ogłoszenia
- Symbol oferty PFN-MS-1706
- Typ oferty mieszkanie na sprzedaż
- Cena 430 000 zł
- Charakterystyka mieszkania 63.73 m2, 3 pokoje
- Budynek apartamentowiec; rok budowy: 2024
- Rozkład mieszkania parter piętro
- Media Ogrzewanie: miejskie; Woda: ciepła - miejska; Gaz: brak
- Balkon jest
- Dojazd asfalt
- Garaż możliwość kupna
- Instalacje nowe
- Okna PCV 3 szyby, ciepły montaż
- Otoczenie działki zabudowane
- Stan lokalu deweloperski
- Technologia budowlana murowana
Lokalizacja
- Adres pomorskie, Lębork
Opis nieruchomości
O% - NABYWCA NIE PŁACI PROWIZJI, PROWIZJĘ BIURA POKRYWA SPRZEDAJĄCY!
Uwaga! Mieszkanie A8 jest w cenie promocyjnej - 430.000zł, natomiast inne mieszkania są objęte ceną regularną - 447.000zł.Nowopowstały, nowoczesny budynek deweloperski w Lęborku (opodal straży pożarnej i ogródków działkowych) przy ul. Orlińskiego to przykład współczesnej architektury, która łączy funkcjonalność z estetyką. Ten elegancki, dwupiętrowy obiekt składa się z 24 apartamentów, zaprojektowanych z myślą o najwyższym komforcie mieszkańców. Każdy apartament cechuje się przestronnością i nowoczesnym wykończeniem, wykorzystującym wysokiej jakości materiały. Jasne, dobrze doświetlone wnętrza, przemyślany układ pomieszczeń oraz nowoczesne rozwiązania technologiczne sprawiają, że mieszkania są idealnym miejscem do codziennego życia. Mieszkanie o powierzchni 63,73m2, usytuowane jest na parterze, składa się z przedpokoju, przestronnego, słonecznego pokoju dziennego połączonego z aneksem kuchennym, z którego prowadzi wyjście na balkon, stanowiący dodatkową strefę relaksu na świeżym powietrzu i pozwalający cieszyć się pięknem otaczającej przyrody, dwóch sypialni oraz łazienki. Ponadto istnieje możliwość wykupienia piwnicy o powierzchni od 3,84 m² do 5,19 m² w cenie 2500 zł/m², miejsca parkingowego w cenie 12 000 zł oraz garażu o powierzchni około 20 m² w cenie 55 000 zł netto. Mieszkanie znajduje się w spokojnej i dobrze skomunikowanej części Lęborka co czyni tę lokalizację idealną dla osób ceniących sobie zarówno wygodę miejskiego życia, jak i bliskość natury. W pobliżu nieruchomości znajduje się cała infrastruktura - budynki użyteczności publicznej i instytucje usługowo-handlowe, szkoły, przedszkola oraz place zabaw.
Wykaz mieszkań dostępnych do sprzedaży, usytuowanych w w/w obiekcie:
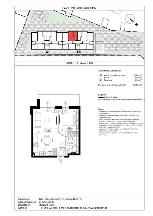
- mieszkanie o pow. 63,73 m2 - parter z balkonem, w cenie 447.000 zł + miejsce parkingowe 12.000zł
- mieszkanie o pow. 63,67 m2 - I piętro z balkonem, w cenie 447.000 zł + miejsce parkingowe 12.000zł
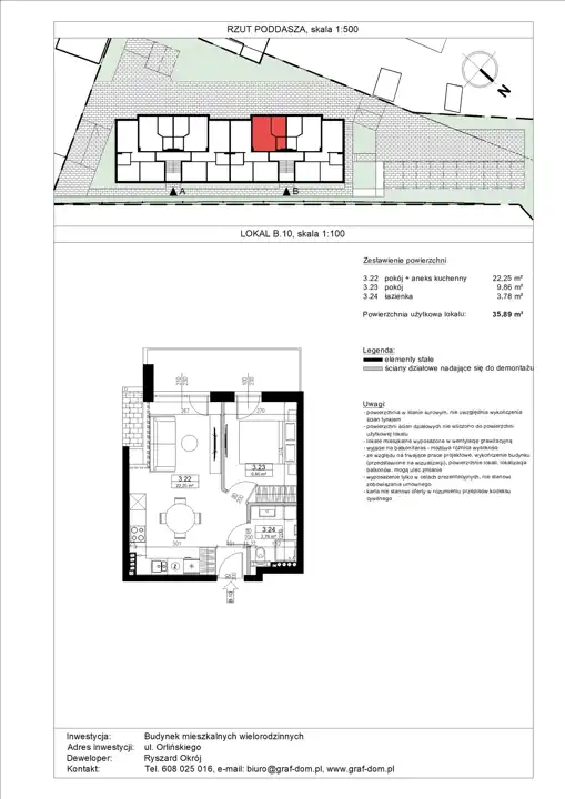
- mieszkanie o pow. 35,89 m2 - II piętro z balkonem cena 289.000 zł + miejsce parkingowe 12.000zł
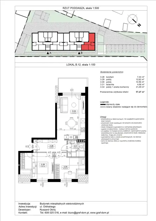
- mieszkanie o pow. 57,27 m2 - II piętro z balkonem w cenie 447.000 zł + miejsce parkingowe 12.000zł
Ze względu na wspomniane atuty, położenie oraz możliwość zakupu lokalu od razu, jak również stosunkowo niskie opłaty czynszowe, oferta jest godna polecenia.
Osoba kupująca w/w lokal nie płaci podatku PCC w wysokości 2%, co powoduje oszczędność niemałej kwoty pieniędzy.
Uwaga!!! Zdjęcia nie odzwierciedlają całego uroku nieruchomości!!!
Zapraszamy na bezpłatną prezentację oferty. Szczegółowych informacji, więcej ofert i zdjęć uzyskacie Państwo w biurze lub na stronie internetowej.
Korzystając z naszych usług zapewniamy:
-
przygotowanie niezbędnych dokumentów potrzebnych do finalizacji transakcji,
-
otrzymanie 10% rabatu na materiały budowlane do wykończenia nieruchomości,
-
usługi sprawdzonych prawników, projektantów oraz ekip budowlanych.
ZACHĘCAMY RÓWNIEŻ DO SKORZYSTANIA Z NASZEGO DORADZTWA KREDYTOWEGO.
W jednym miejscu, bezpłatnie porównamy i dobierzemy najbardziej korzystną ofertę kredytu hipotecznego spośród kilkunastu banków.
Dzięki długoletniemu doświadczeniu i ważnej polisy OC, gwarantujemy bezpieczeństwo transakcji oraz że do podanej ceny nie zostanie doliczony żaden koszt.
Oferta ma charakter informacyjny i nie stanowi oferty handlowej w rozumieniu przepisów Kodeksu Cywilnego. Dane zawarte w ofercie zostały opracowane w oparciu o informacje właściciela i mogą ulec nowelizacji.
Wszelkie prawa zastrzeżone. Kopiowanie i publikacja treści i zdjęć bez zgody autora zabronione.