Mieszkanie na sprzedaż
500 000 zł
101 m2









1 / 9
Szczegóły ogłoszenia
- Symbol oferty DYK-MS-1098
- Typ oferty mieszkanie na sprzedaż
- Cena 500 000 zł
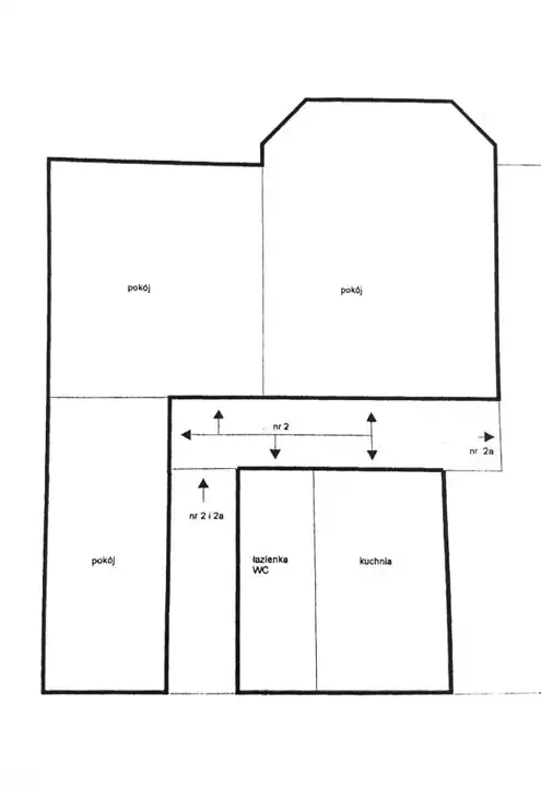
- Charakterystyka mieszkania 101.03 m2, 3 pokoje
- Budynek kamienica
- Rozkład mieszkania 1p piętro
- Media Ogrzewanie: C.O. GAZOWE; Woda: ciepła - piecyk gazowy; Gaz: tak - miejski
- Czynsz Czynsz letni: 200 zł
- Dojazd ASFALTOWA
- Garaż brak
- Instalacje dobre
- Okna PCV
- Otoczenie centrum miasta
- Stan lokalu do odświeżenia
- Technologia budowlana cegła
Lokalizacja
- Adres pomorskie, Lębork
Opis nieruchomości
Oferujemy do sprzedaży mieszkanie z możliwością przeznaczenia na cele usługowe, gabinet o powierzchni użytkowej 101,03 m2. Lokal znajduje się na pierwszym piętrze kamienicy, położonej przy ul. Aleja Wolności w Lęborku. Mieszkanie składa się z trzech przestronnych pokoi, kuchni, łazienki z WC oraz wspólnego przedpokoju (holu, poczekalni). Na podłogach w pokojach położono parkiet i panele. W łazience wykończonej glazurą i terakotą, znajduje się kabina prysznicowa wraz z armaturą, umywalka z szafką i lustro. Estetycznie wykończona klatka schodowa zamykana domofonem. Przed lokalem znajdują się miejsca postojowe. Do mieszkania przynależy duża piwnica Centralne ogrzewanie i ciepła woda zasilana gazowym, piecem dwufunkcyjnym.
Lokal stanowi odrębną nieruchomość z prowadzoną dla niego księgą wieczystą.
Zapraszamy na bezpłatną prezentację nieruchomości, podczas której odpowiemy na pytania dotyczące prezentowanej nieruchomości.
Oferujemy profesjonalne usługi w oparciu o indywidualne podejście do klienta, doświadczenie i etykę zawodową.
Bezpłatnie porównamy i dobierzemy najlepszą ofertę kredytu hipotecznego spośród wiodących banków.
Lokal stanowi odrębną nieruchomość z prowadzoną dla niego księgą wieczystą.
Zapraszamy na bezpłatną prezentację nieruchomości, podczas której odpowiemy na pytania dotyczące prezentowanej nieruchomości.
Oferujemy profesjonalne usługi w oparciu o indywidualne podejście do klienta, doświadczenie i etykę zawodową.
Bezpłatnie porównamy i dobierzemy najlepszą ofertę kredytu hipotecznego spośród wiodących banków.
Nota prawna
Opis oferty zawarty na stronie internetowej sporządzany jest na podstawie oględzin nieruchomości oraz informacji uzyskanych od właściciela, może podlegać aktualizacji i nie stanowi oferty określonej w art. 66 i następnych K.C.
Kalkulator kredytowy
Formularz kontaktowy