Dom na sprzedaż
569 000 zł
98 m2








1 / 8
Szczegóły ogłoszenia
- Symbol oferty LAV-DS-2907
- Typ oferty dom na sprzedaż
- Cena 569 000 zł
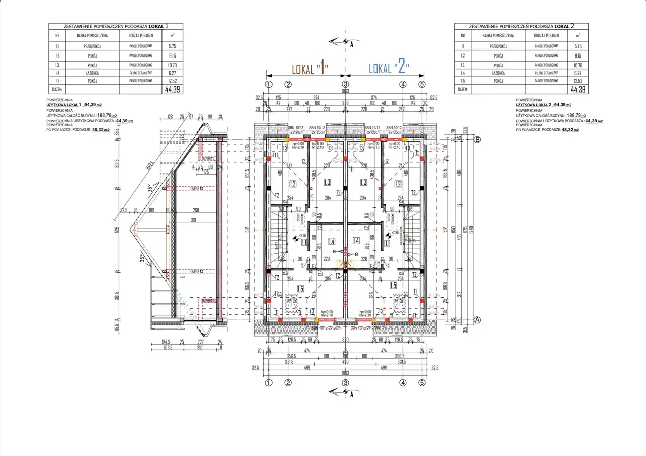
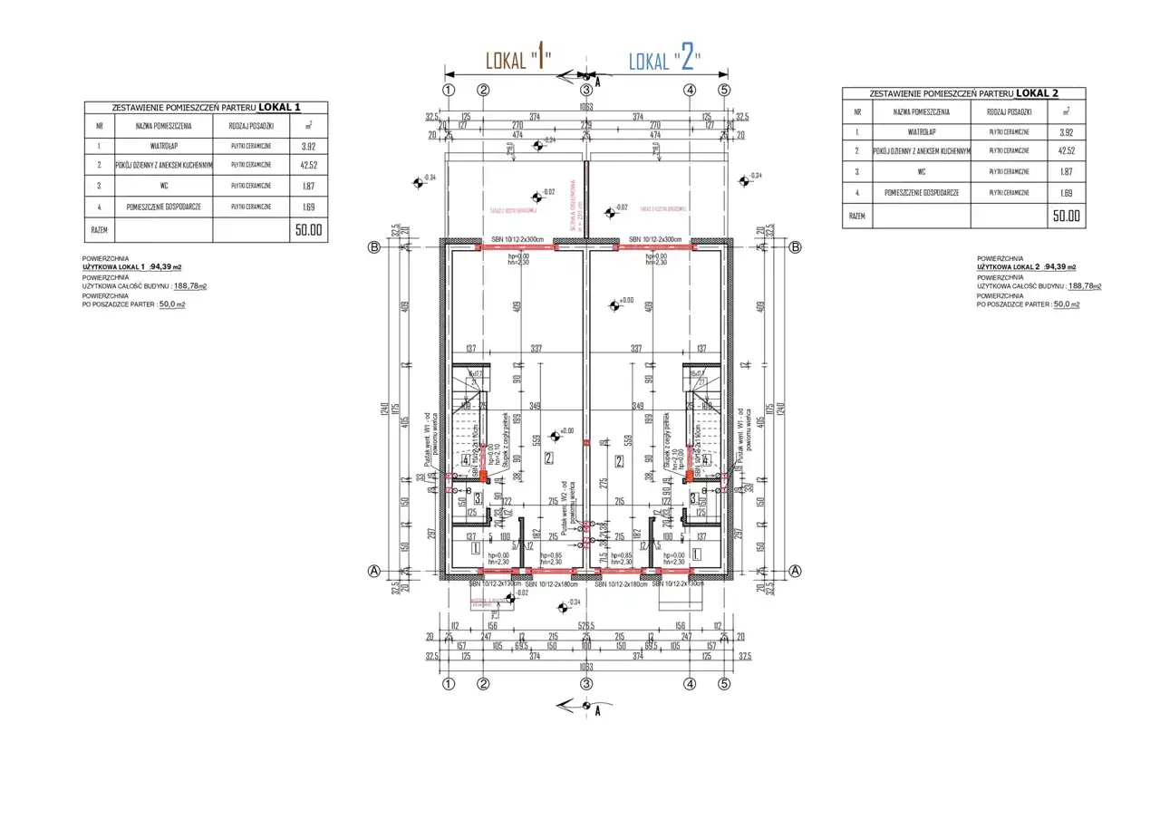
- Charakterystyka mieszkania 98.32 m2, do wykończenia
- Działka Niezagospodarowana
- Material konstrukcyjny porotherm
- Okna PCV
- Pokrycie dachu dachówka ceramiczna
- Rodzaj domu dwurodzinny
Lokalizacja
- Adres wielkopolskie, Leszno, Gronowo
Opis nieruchomości
Lokale mieszkalne z działką w domu jednorodzinnym dwulokalowym.
Powierzchnia całkowita lokalu 98,32m2, działka-ok 280m2
Standard wykończenia:
Ściany: zagruntowane, gładź gipsowa
Podłogi: wylewka
Okna: PCV
Ogrzewanie: gazowe — w łazience ogrzewanie podłogowe, w pozostałych pomieszczeniach grzejniki
Zabezpieczenia:
• roleta zewnętrzna tarasowa elektryczna
• pozostałe rolety zewnętrzne z mechanizmem ręcznym
• drzwi zewnętrzne z dwoma zamkami
Instalacje:
• instalacja elektryczna rozprowadzona po całym mieszkaniu wraz z kompletnymi gniazdkami
• dostępne media: woda zimna, woda ciepła, kanalizacja, prąd, gaz
Elementy zewnętrzne:
• podest przed budynkiem oraz taras wyłożony kostką
• elewacja zewnętrzna kompletna, w kolorze biało-szarym
Materiały budowlane:
• ściany z ceramiki (Porotherm)
• docieplenie ścian: styropian 20 cm
• docieplenie poddasza: wełna mineralna 30 cm
• dachówka ceramiczna Tondach
• schody: betonowe
Termin oddania do użytku: Sierpień 2026 r.
Powierzchnia całkowita lokalu 98,32m2, działka-ok 280m2
Standard wykończenia:
Ściany: zagruntowane, gładź gipsowa
Podłogi: wylewka
Okna: PCV
Ogrzewanie: gazowe — w łazience ogrzewanie podłogowe, w pozostałych pomieszczeniach grzejniki
Zabezpieczenia:
• roleta zewnętrzna tarasowa elektryczna
• pozostałe rolety zewnętrzne z mechanizmem ręcznym
• drzwi zewnętrzne z dwoma zamkami
Instalacje:
• instalacja elektryczna rozprowadzona po całym mieszkaniu wraz z kompletnymi gniazdkami
• dostępne media: woda zimna, woda ciepła, kanalizacja, prąd, gaz
Elementy zewnętrzne:
• podest przed budynkiem oraz taras wyłożony kostką
• elewacja zewnętrzna kompletna, w kolorze biało-szarym
Materiały budowlane:
• ściany z ceramiki (Porotherm)
• docieplenie ścian: styropian 20 cm
• docieplenie poddasza: wełna mineralna 30 cm
• dachówka ceramiczna Tondach
• schody: betonowe
Termin oddania do użytku: Sierpień 2026 r.
Nota prawna
Opis oferty zawarty na stronie internetowej sporządzany jest na podstawie oględzin nieruchomości oraz informacji uzyskanych od właściciela, może podlegać aktualizacji i nie stanowi oferty określonej w art. 66 i następnych K.C.
Kalkulator kredytowy
Formularz kontaktowy