Lokal na wynajem
5 000 zł
120 m2






1 / 6
Szczegóły ogłoszenia
- Symbol oferty LAV-LW-2909
- Typ oferty lokal na wynajem
- Czynsz wynajmu 5 000 zł / miesiąc
- Charakterystyka mieszkania 120 m2
- Budynek wolnostojący
- Rozkład mieszkania parter piętro
- Kaucja do uzgodnienia
- Stan lokalu do wprowadzenia
Lokalizacja
- Adres wielkopolskie, Leszno m., Leszno
Opis nieruchomości
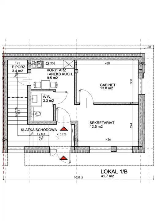
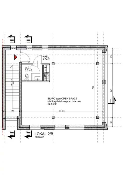
Oferujemy do wynajęcia segment dwupoziomowy o powierzchni 120m2.Nowo powstały budynek znajdujący się na terenie kompleksu biurowo magazynowego. Idealny lokal pod działalność usługową lub biurową. Bardzo dogodny dojazd oraz prywatny parking dla 6 samochodów. Jasne i przestronne pomieszczenia.Budynek zbudowany w/g najwyższych standardów z najlepszych materiałów, podobnie wnętrze wykończone z najlepszych materiałów. Szczegóły można uzyskać podczas prezentacji nieruchomości
Ogrzewanie podłogowe
Pomieszczenia wyposażone w rekuperatory,
Powierzchnia 120m2, na którą składają się
PARTER
Prosty i dogodny dojazd do budynku, wokół którego znajdują się bezpłatne miejsca postojowe oraz zamykana brama wjazdowa
Ogrzewanie podłogowe
Pomieszczenia wyposażone w rekuperatory,
Powierzchnia 120m2, na którą składają się
PARTER
- dwa pomieszczenia biurowe z wyjściem na taras
- pomieszczenie socjalne
- wc dla niepełnosprawnych wraz z prysznicem
- poczekalnia/recepcja/hall
- pomieszczenie biurowe
- woda
- prąd
- gaz
Prosty i dogodny dojazd do budynku, wokół którego znajdują się bezpłatne miejsca postojowe oraz zamykana brama wjazdowa
Nota prawna
Opis oferty zawarty na stronie internetowej sporządzany jest na podstawie oględzin nieruchomości oraz informacji uzyskanych od właściciela, może podlegać aktualizacji i nie stanowi oferty określonej w art. 66 i następnych K.C.
Formularz kontaktowy