Lokal na wynajem







Szczegóły ogłoszenia
- Symbol oferty LUX-LW-2378
- Typ oferty lokal na wynajem
- Czynsz wynajmu 5 277 zł / miesiąc
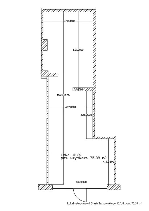
- Charakterystyka mieszkania 75.39 m2
- Budynek blok
- Rozkład mieszkania parter piętro
- Instalacje nowe
- Okna PCV
Lokalizacja
- Adres wielkopolskie, Leszno, Gronowo
Opis nieruchomości
Biuro nieruchomości "Luxus Home" Leszno, oferuje do wynajęcia lokal handlowo - usługowy, zlokalizowany w Lesznie - Gronowie, przy ul. Władysława Jagiełły, na inwestycji "CITY ROYAL".
Powierzchnia: 75,39 m2.
Piętro: PARTER.
Rodzaj budynku: blok mieszkalny - wejście do lokalu bezpośrednio z ulicy.
Media: prąd, woda, kanalizacja, centralne ogrzewanie, internet.
Miejsce na reklamę: szyby wystawowe.
Parking: bezpłatny, bezpośrednio przed budynkiem.
ROZKŁAD POMIESZCZEŃ:
- sala sprzedaży,
- pomieszczenie socjalne,
- pomieszczenie sanitarne.
Istnieje możliwość własnej aranżacji - podziału pomieszczeń.
Standard wykończenia - deweloperski, z możliwością wykończenia lokalu "pod klucz" pod daną branżę.
Lokal idealny pod sklep, restaurację, kawiarnię, branżę beauty, itp.
CZYNSZ NAJMU: 5.277,30 zł netto + czynsz do Wspólnoty Mieszkaniowej.
OPŁATA DODATKOWA: prąd, według wskazań licznika.
KAUCJA: do uzgodnienia!
Lokalizacja: komfortowa dzielnica Leszna, w sąsiedztwie licznych zabudowań mieszkaniowych, szkoły, przedszkola, sieci handlowych, lokalnych punktów handlowo - usługowych.