Mieszkanie na sprzedaż























Szczegóły ogłoszenia
- Symbol oferty DNX-MS-29948
- Typ oferty mieszkanie na sprzedaż
- Cena 540 000 zł
- Charakterystyka mieszkania 60.24 m2, 3 pokoje
- Budynek bliźniak; rok budowy: 2025
- Rozkład mieszkania parter piętro
- Media Ogrzewanie: C.O. GAZOWE; Woda: jest; Gaz: jest
- Dojazd asfalt
- Garaż miejsce postojowe
- Ilość sypialni 2
- Instalacje nowe
- Okna PCV
- Otoczenie zabudowa jednorodzinna
- Stan lokalu deweloperski
- Technologia budowlana beton komórkowy
Lokalizacja
- Adres małopolskie, Limanowa
Opis nieruchomości
OFERTA BEZ PROWIZJI OD STRONY KUPUJĄCEJ
Zapraszamy do zapoznania z się z inwestycją na osiedlu Vidok - ostoja spokoju i nowoczesności. To nie tylko ekologiczne osiedle, lecz harmonijne połączenie natury z najnowszymi technologiami.
W ofercie mamy dla Ciebie bezczynszowe mieszkania w zabudowie bliźniaczej z wydzielonymi miejscami parkingowymi.
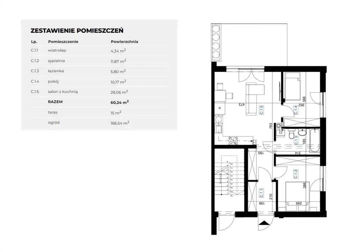
Rozkład pomieszczeń
-
Wiatrołap – 4,34 m²
-
Sypialnia – 11,87 m²
-
Łazienka – 5,80 m²
-
Pokój – 10,17 m²
-
Salon z kuchnią – 28,06 m²
Łączna powierzchnia użytkowa: 60,24 m²
Taras: 15 m²
Ogród: 166,54 m²
Mieszkania o powierzchni 60,27 m2 na parterze z przydomowym ogrodem, mieszkania o powierzchni 67,42 m2 na piętrze, z balkonem i poddaszem nieużytkowym oraz mieszkania dwupoziomowe o powierzchni 101 m2 z obszernym ogrodem oraz dodatkowym poddaszem nieużytkowym.
Na osiedlu Vidok nie inwestujesz tylko w nieruchomość, ale w styl życia. Ciesz się przestrzenią, zielonym otoczeniem i nowoczesnymi udogodnieniami. To więcej niż mieszkanie – to miejsce, które możesz nazwać domem.
INFORMACJE:
- miejsce parkingowe przypisane do lokalu płatne dodatkowo 10.000 zł,
- termin zakończenia budowy: 07.2026r.,
- inwestycja realizowana w oparciu o ustawę deweloperską - wpłaty dokonywane są na otwarty mieszkaniowy rachunek powierniczy zgodnie z postępem prac budowy,
- ogrzewanie gazowe z pieca dwufunkcyjnego - w lokalach zostanie zastosowane ogrzewanie podłogowe.
- mieszkania na parterze z ogródkiem
- mieszkania na piętrze z poddaszem
LOKALIZACJA:
Inwestycja położona w spokojnej i cichej dzielnicy, zaledwie 1,5 km od Centrum Miasta. W otoczeniu osiedla znajdują się szkoły, przedszkola, sklepy oraz szpital i przychodnie lekarskie, co sprawia, że codzienne życie staje się wyjątkowo wygodne i komfortowe dla przyszłych mieszkańców.
STANDARD WYKOŃCZENIA:
KONSTRUKCJA, ŚCIANY, ELEWACJE
• ława fundamentowa 40cm wylana na chudym betonie 10cm,
• ustrój nośny kondygnacji parteru - ściany murowane z betonu komórkowego klasy min. 500 kg/m3, płyta stropowa nad kondygnacją parteru żelbetowa monolityczna zbrojona dwukierunkowo zbrojeniem dolnym i górnym,
• ustrój nośny kondygnacji nad parterem - ściany murowane z betonu komórkowego klasy min. 500 kg/m3, trzpienie oraz wieńce żelbetowe,
• Dach dwuspadowy w postaci więźby dachowej klasy C24, pokryty blachą na rąbek stojący,
• ściany działowe z bloczków betonu komórkowego 12 cm,
• schody żelbetowe,
• tynki wewnętrzne - gipsowe, wzmacniane na ścianach, tynki gipsowe na sufitach, tynki gipsowe hybrydowe w łazienkach,
• wylewki,
• elewacja - styropian 15 cm ( λ 0,038), tynk biały silikonowy Caparol, ściany szczytowe okute blachą na rąbek stojący,
• parapety zewnętrzne - obróbka blacharska parapetów,
• obróbka balkonów - obróbka blacharska.
UDOGODNIENIA ZEWNĘTRZNE
• zjazd bezpośrednio z drogi wewnętrznej utwardzonej. Droga wewnętrzna z bezpośrednim dostępem do drogi miejskiej asfaltowej,
• podjazd oraz wejście do budynku z kostki brukowej, podbudowa z zagęszczonego kruszywa,
• videodomofon,
• zagospodarowany ogród – trawnik oraz drobne nasadzenia roślin,
• taras z kostki brukowej,
• oświetlenie zewnętrzne LED - oświetlenie wejścia, oraz oświetlenie przy drzwiach wejściowych do lokalu, oświetlenie tarasu/balkonu.
UDOGODNIENIA WEWNĘTRZNE
• instalacja elektryczna - zgodnie z projektem, dodatkowo gniazdo siłowe w kuchni, przygotowanie pod kuchenkę indukcyjną,
• okna plastikowe (trzyszybowe), termika konstrukcji min. U=0,9W/m2K, w przypadku drzwi tarasowych min. U=1,0W/m2K
• drzwi wejściowe aluminiowe,
• instalacje niskoprądowe (telewizja, internet),
• instalacja wod-kan (woda – studnia głębinowa i kanalizacja – sieć gminna),
• piec gazowy - 2 funkcyjny,
• wentylacja grawitacyjna,
• ogrzewanie podłogowe w całym lokalu.
Wizualizacje prezentowane są wyłącznie w celach poglądowych
ZAPRASZAMY NA PREZENTACJĘ!