Dom na sprzedaż
















































Szczegóły ogłoszenia
- Symbol oferty LMN-DS-312547
- Typ oferty dom na sprzedaż
- Cena 1 680 000 zł
- Charakterystyka mieszkania 214 m2, 6 pokoi, do zamieszkania
- Budynek rok budowy: 2000
- Media Ogrzewanie: C.O. GAZOWE; Woda: tak - miejska; Kanalizacja: własna oczyszczalnia; Prąd: jest; Gaz: jest
- Bezpieczeństwo ogrodzenie działki: mieszane
- Balkon jest
- Dojazd asfalt
- Działka Zagospodarowana, płaska, prostokąt
- Garaż wolnostojący
- Ilość sypialni 4
- Instalacje dobre
- Material konstrukcyjny pustak max
- Okna DREWNIANE NOWY TYP
- Otoczenie zabudowa jednorodzinna
- Pokrycie dachu dachówka ceramiczna
- Rodzaj domu wolnostojący
- Stan prawny Własność
- Taras taras duży
Lokalizacja
- Adres małopolskie, Liszki, Rączna
Opis nieruchomości
Twój dom z widokiem na góry - przestrzeń, spokój i komfort.
Marzysz o własnym domu z ogrodem, z dala od zgiełku, a jednocześnie szybkim dojazdem do Krakowa? Ten przestronny dom w Rącznej spełni Twoje oczekiwania. To idealne miejsce dla rodziny, która ceni przestrzeń, spokój i jakość życia.
Najważniejsze informacje:
• Lokalizacja: Rączna, gmina Liszki, powiat krakowski
• Powierzchnia domu: całkowita ok. 214 m² (użytkowa 134.7 m²)
• Działka: 19 arów, płaska, zadbana, z pięknie zagospodarowanym ogrodem
• Rok budowy: 2000
• Typ domu: wolnostojący, parterowy, z poddaszem użytkowym, w pełni wykończony i umeblowany
Dom gotowy do zamieszkania.
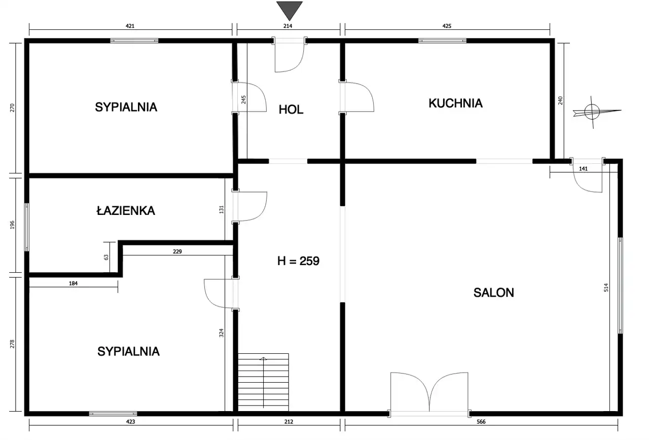
Układ domu:
• Parter: przestronna kuchnia z pełnym wyposażeniem, duży salon z wyjściem na taras, sypialnia, łazienka z wanną narożną i WC, garderoba, pomieszczenie gospodarcze (kotłownia), korytarz z klatką schodową.
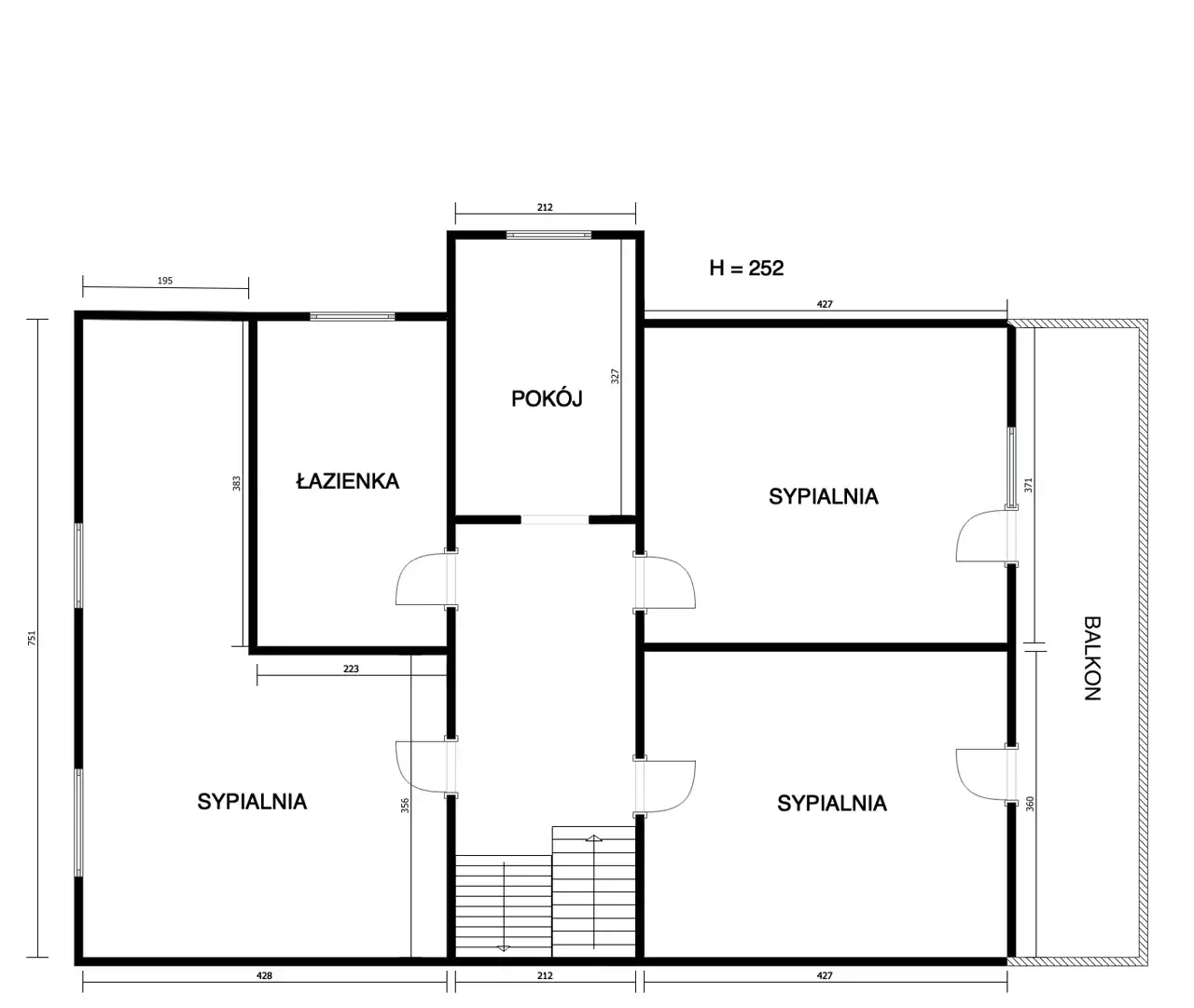
• Piętro: 3 sypialnie (dwie z balkonem, jedna z garderobą), pokój, łazienka z prysznicem i WC,
• dostęp do strychu przez schody opuszczane.
Wykończenie i wyposażenie:
• Materiały najwyższej jakości: pustak ceramiczny MAX, dodatkowo ocieplony 10 cm warstwą styropianu (i jeszcze połową pustaka od zewnątrz), co zapewnia doskonałą izolację termiczną;
• Dachówka ceramiczna;
• Stolarka drewniana - solidna, o wysokiej jakości wykonania
• Podłogi: parkiet w pokojach, ceramika w kuchni i łazienkach
• Ogrzewanie: CO gazowe, piec dwufunkcyjny + bojler 150 l
Nowoczesne udogodnienia:
• Fotowoltaika o dużej wydajności – pozwala nie tylko zasilać dom w energię, ale także ogrzewać go dzięki zapasom prądu;
• Ogrzewanie gazowe – piec dwufunkcyjny + bojler 150 l;
• System alarmowy, garaż wolnostojący z pomieszczeniem gospodarczym;
• Brak kanalizacji – przydomowa oczyszczalnia ścieków, ekonomiczna i bezobsługowa.
Dodatkowy atut:
Wielkość działki pozwala na budowę drugiego domu (dojazd do ewentualnej drugiej nieruchomości drogą o szerokości 5 metrów, co daje realną możliwość podziału terenu i realizacji kolejnej inwestycji).
Okolica:
• Cicha i spokojna część Rącznej
• Blisko szkoła, przedszkole, kościół, sklepy
• Dogodne połączenia komunikacyjne (MPK i BUS do centrum Krakowa)
• Szybki dojazd do autostradowej obwodnicy Krakowa
To idealna propozycja dla rodzin z dziećmi, które szukają komfortowego domu z ogrodem, oraz dla osób młodych, które chcą cieszyć się spokojem poza miastem, nie rezygnując z wygodnego dojazdu do Krakowa.
W pogodny dzień widok na Babią Górę.
Zapraszam do kontaktu.
Magdalena Kempkowska
La Maison Nieruchomości
Tel. 512-532-892
e-mail: magda@lamaison.net.pl