Działka na sprzedaż
8 600 000 zł
20 395 m2











1 / 11
Szczegóły ogłoszenia
- Symbol oferty DNX-GS-30760
- Typ oferty działka na sprzedaż
- Cena 8 600 000 zł
- Charakterystyka mieszkania 20395 m2
- Media Woda: w ulicy; Kanalizacja: w ulicy; Prąd: w ulicy; Gaz: w ulicy
- Dojazd asfalt
- Działka płaska, prostokąt
Lokalizacja
- Adres małopolskie, Liszki, Kryspinów
Opis nieruchomości
UNIKALNA DZIAŁKA NA POGRANICZU KRYSPINOWA I PIEKAR
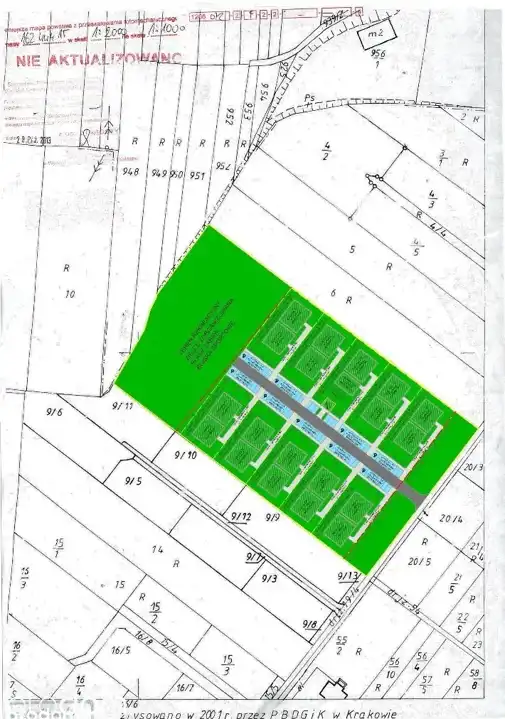
Działka o powierzchni dwóch hektarów - przeznaczona pod zabudowę mieszkaniową.
Działka płaska, regularna. Wokół nowa zabudowa jednorodzinna.
-
Na tym terenie jest uchwalony plan zagospodarowania przestrzennego.
Ustala się dopuszczalne przeznaczenie terenu pod:
1) lokalizację zabudowy jednorodzinnej,
2) lokalizację zabudowy bliżniaczej oraz wielorodzinnej do czterech mieszkań
3) lokalizację wolnostojących garaży i budynków gospodarczych w rozumieniu przepisów prawa budowlanego.
"MN5" - teren zabudowy mieszkaniowej jednorodzinnej (ok. 1,34 ha) oraz "R1" - tereny gruntów rolnych -
Media : gaz i prąd w granicy działki, woda i kanalizacja w drodze dotykającej działki.
Działka położona przy drodze asfaltowej.
Przybliżone wymiary działki: 105mx195mx105mx183m
Właściciel zrobił wstępny projekt na 40 budynków mieszkalnych dwu lokalowych w zabudowie bliźniaczej czyli 80 mieszkań wstępnie na ok. 6000 PUM
Cena przedmiotowej nieruchomości wraz z koncepcją wynosi ogółem 8 600 000 zł + VAT.
Działka o powierzchni dwóch hektarów - przeznaczona pod zabudowę mieszkaniową.
Działka płaska, regularna. Wokół nowa zabudowa jednorodzinna.
-
Na tym terenie jest uchwalony plan zagospodarowania przestrzennego.
Ustala się dopuszczalne przeznaczenie terenu pod:
1) lokalizację zabudowy jednorodzinnej,
2) lokalizację zabudowy bliżniaczej oraz wielorodzinnej do czterech mieszkań
3) lokalizację wolnostojących garaży i budynków gospodarczych w rozumieniu przepisów prawa budowlanego.
"MN5" - teren zabudowy mieszkaniowej jednorodzinnej (ok. 1,34 ha) oraz "R1" - tereny gruntów rolnych -
Media : gaz i prąd w granicy działki, woda i kanalizacja w drodze dotykającej działki.
Działka położona przy drodze asfaltowej.
Przybliżone wymiary działki: 105mx195mx105mx183m
Właściciel zrobił wstępny projekt na 40 budynków mieszkalnych dwu lokalowych w zabudowie bliźniaczej czyli 80 mieszkań wstępnie na ok. 6000 PUM
Cena przedmiotowej nieruchomości wraz z koncepcją wynosi ogółem 8 600 000 zł + VAT.
Nota prawna
Opis oferty zawarty na stronie internetowej sporządzany jest na podstawie oględzin nieruchomości oraz informacji uzyskanych od właściciela, może podlegać aktualizacji i nie stanowi oferty określonej w art. 66 i następnych K.C.
Kalkulator kredytowy
Formularz kontaktowy