Mieszkanie na sprzedaż














Szczegóły ogłoszenia
- Symbol oferty RLN-MS-9222
- Typ oferty mieszkanie na sprzedaż
- Cena 549 000 zł
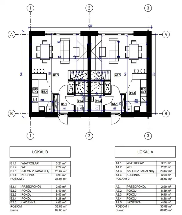
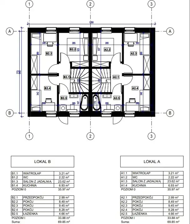
- Charakterystyka mieszkania 70.57 m2, 4 pokoje, do wykończenia
- Budynek szeregowiec; rok budowy: 2026
- Media Ogrzewanie: piec dwufunkcyjny; Woda: piec gazowy dwufunkcyjny; Kanalizacja: miejska; Prąd: jest; Gaz: jest
- Bezpieczeństwo ogrodzenie działki: siatka
- Dojazd asfalt
- Działka częściowo zagospodarowana, płaska
- Garaż miejsce postojowe
- Ilość sypialni 3
- Instalacje nowe
- Material konstrukcyjny beton komórkowy
- Okna PCV
- Otoczenie zabudowa jednorodzinna
- Rodzaj domu szeregowiec
- Stan lokalu deweloperski
- Taras taras duży
Lokalizacja
- Adres małopolskie, Liszki, Morawica
Opis nieruchomości
Domowy komfort w cenie mieszkania – segment 2-poziomowy z ogródkiem | Morawica k. Krakowa
Marzysz o własnym ogródku, przestrzeni i spokoju, ale nie chcesz rezygnować z szybkiego dojazdu do Krakowa? Ta oferta spełni Twoje oczekiwania.
Na sprzedaż funkcjonalny segment w zabudowie szeregowej, położony w Morawicy (gmina Liszki) — zaledwie kilka minut od Balic, Mnikowa, Modlniczki i centrum Krakowa. Kameralna inwestycja obejmuje tylko 8 lokali, każdy z prywatnym ogródkiem i miejscem postojowym.
Co zyskujesz? • 70,57 m² powierzchni użytkowej • Ogródek ok. 25 m² — idealny na poranną kawę, zabawy z dziećmi lub relaks po pracy • Wydzielone miejsce postojowe — w cenie • Zakup bez zezwolenia dla obcokrajowców
Przemyślany układ pomieszczeń: • Parter: wiatrołap, łazienka, jasny salon z aneksem kuchennym (kuchnia z oknem) • Piętro: trzy ustawne pokoje + duża łazienka • Dodatkowo: strych z wysokością ponad 2 m — świetny na przechowywanie
Standard, który robi różnicę: • Tynki gipsowe, wylewki, okna 3-szybowe • Ogrzewanie gazowe z piecem + podłogówka na całej powierzchni • Instalacja pod klimatyzację (bez urządzenia) • Ogrodzony ogródek, utwardzony parking • Duże okno 3-skrzydłowe w salonie — naturalne światło i wyjście na taras zielony • Woda i prąd dostępne również na zewnątrz
Dodatkowe plusy: • Brak czynszu — więcej środków w Twoim portfelu • Media z indywidualnymi licznikami • Kanalizacja miejska • Bezpłatna pomoc doradcy kredytowego — ocena zdolności w 1 dzień
Dostępność lokalu do potwierdzenia telefonicznie. Zapytaj również o segmenty narożne z większymi ogrodami!
Zadzwoń, napisz SMS lub wiadomość na WhatsApp: RealDom Nieruchomości 600 160 666