Mieszkanie na sprzedaż














Szczegóły ogłoszenia
- Symbol oferty RLN-MS-9224
- Typ oferty mieszkanie na sprzedaż
- Cena 799 000 zł
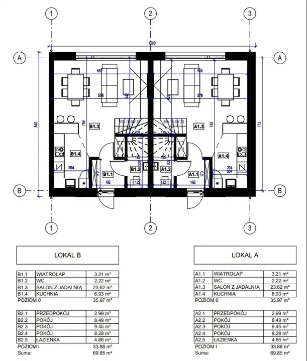
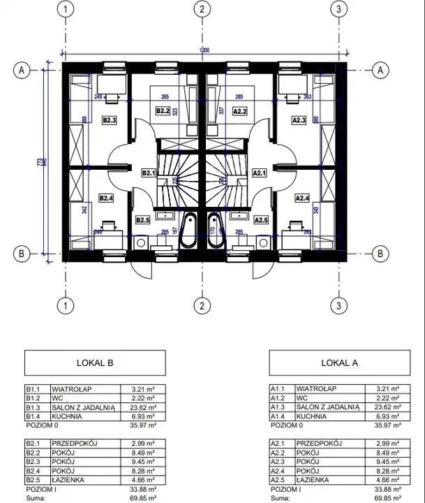
- Charakterystyka mieszkania 71.31 m2, 4 pokoje, do wykończenia
- Budynek szeregowiec; rok budowy: 2026
- Media Ogrzewanie: piec dwufunkcyjny; Woda: piec gazowy dwufunkcyjny; Gaz: jest
- Dojazd asfalt
- Działka częściowo zagospodarowana, płaska
- Garaż miejsce postojowe
- Ilość sypialni 3
- Instalacje nowe
- Okna PCV
- Otoczenie zabudowa jednorodzinna
- Stan lokalu deweloperski
- Taras taras duży
Lokalizacja
- Adres małopolskie, Liszki, Morawica
Opis nieruchomości
nr 04b Wyjątkowy segment z ogromnym ogrodem | Morawica k. Krakowa | 71,31 m² + ogród aż 430 m² | Bez zezwolenia dla obcokrajowców
Jeśli marzysz o przestrzeni, prywatności i własnym zielonym azylu — ten segment to prawdziwa perełka. Na sprzedaż dwupoziomowy lokal mieszkalny w zabudowie szeregowej, zlokalizowany w Morawicy (gmina Liszki), z szybkim dojazdem do Krakowa, Balic, Mnikowa i Modlniczki. Kameralna inwestycja obejmuje tylko 8 lokali — każdy z własnym ogródkiem i miejscem postojowym.
Powierzchnia użytkowa: 71,31 m² Ogród: imponujące 430 m² — idealny na taras, plac zabaw, warzywnik, strefę relaksu i więcej Miejsce postojowe — w cenie
Rozkład pomieszczeń: • Parter: wiatrołap, łazienka, salon z aneksem kuchennym (kuchnia z oknem) • Piętro: 3 ustawne pokoje, duża łazienka • Dodatkowo: strych do przechowywania (wysokość w najwyższym punkcie ponad 2 m)
Standard deweloperski obejmuje: • Tynki gipsowe, wylewki, okna 3-szybowe • Ogrzewanie gazowe z piecem + podłogówka na całej powierzchni • Instalacja pod klimatyzację (bez urządzenia) • Ogrodzony ogródek, utwardzony parking • Duże okno 3-skrzydłowe w salonie z wyjściem na ogród • Woda i prąd doprowadzone również na zewnątrz
Dodatkowe atuty: • Brak czynszu — realna oszczędność • Media z indywidualnymi licznikami • Kanalizacja miejska • Zakup bez zezwolenia dla obcokrajowców • Bezpłatna pomoc doradcy kredytowego — ocena zdolności w 1 dzień
Dostępność lokalu do potwierdzenia telefonicznie.
Kontakt:
RealDom Nieruchomości 600 160 666 (tel/sms/WhatsApp)