Hala na wynajem
5 900 zł
196 m2













1 / 13
Szczegóły ogłoszenia
- Symbol oferty LOK-HW-3871
- Typ oferty hala na wynajem
- Czynsz wynajmu 5 900 zł / miesiąc
- Charakterystyka mieszkania 196 m2
Lokalizacja
- Adres łódzkie, Łódź, Polesie
Opis nieruchomości
FERTA BEZ PROWIZJI DLA POSZUKUJĄCEGO. CAŁOŚĆ WYNAGRODZENIA DLA BIURA POKRYWA WŁAŚCICIEL NIERUCHOMOŚCI.
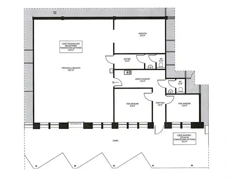
Przedmiotem wynajmu jest hala magazynowo-produkcyjna z zapleczem biurowo-socjalnym o powierzchni 196 m2 usytuowana na parterze budynku z dostępem z rampy rozładunkowej. Rozkład powierzchni:
- hala magazynowo-produkcyjna - 127 m2, dostęp przez bramę
- powierzchnia biurowo-socjalna - 69 m2 w tym 2 pomieszczenia biurowe, szatnia, kuchnia, 2xWC
Wysokość hali 3,20 m, dostęp z rampy przez bramę o wymiarach szer. 1,68 m, wys. 2,47 m. Budynek o konstrukcji murowanej. Powierzchnia ogrzewana (centralne ogrzewanie miejskie). Przed budynkiem dostępny jest parking. Jest możliwość podjazdu samochodów dostawczych oraz TIR-a pod rampę. Teren ogrodzony, chroniony.
MEDIA: woda i kanalizacja miejska, ogrzewanie miejskie, energia elektryczna.
CZYNSZ: 5900 zł netto + VAT + media
Oferta nie stanowi oferty określonej w art. 66 i następnych Kodeksu Cywilnego i może być w danym momencie nieaktualna. Prosimy o kontakt telefoniczny.
Przedmiotem wynajmu jest hala magazynowo-produkcyjna z zapleczem biurowo-socjalnym o powierzchni 196 m2 usytuowana na parterze budynku z dostępem z rampy rozładunkowej. Rozkład powierzchni:
- hala magazynowo-produkcyjna - 127 m2, dostęp przez bramę
- powierzchnia biurowo-socjalna - 69 m2 w tym 2 pomieszczenia biurowe, szatnia, kuchnia, 2xWC
Wysokość hali 3,20 m, dostęp z rampy przez bramę o wymiarach szer. 1,68 m, wys. 2,47 m. Budynek o konstrukcji murowanej. Powierzchnia ogrzewana (centralne ogrzewanie miejskie). Przed budynkiem dostępny jest parking. Jest możliwość podjazdu samochodów dostawczych oraz TIR-a pod rampę. Teren ogrodzony, chroniony.
MEDIA: woda i kanalizacja miejska, ogrzewanie miejskie, energia elektryczna.
CZYNSZ: 5900 zł netto + VAT + media
Oferta nie stanowi oferty określonej w art. 66 i następnych Kodeksu Cywilnego i może być w danym momencie nieaktualna. Prosimy o kontakt telefoniczny.
Nota prawna
Opis oferty zawarty na stronie internetowej sporządzany jest na podstawie oględzin nieruchomości oraz informacji uzyskanych od właściciela, może podlegać aktualizacji i nie stanowi oferty określonej w art. 66 i następnych K.C.
Formularz kontaktowy