Obiekt na sprzedaż










Szczegóły ogłoszenia
- Symbol oferty LHN-BS-11038
- Typ oferty obiekt na sprzedaż
- Cena 1 580 000 zł
- Charakterystyka mieszkania 1888 m2
- Budynek rok budowy: 1965
- Media Woda: jest; Kanalizacja: tak; Prąd: jest; Gaz: w ulicy
- Miejsce parkingowe Tak
- Dojazd asfalt
- Działka nieregularny
- Otoczenie działki zabudowane
Lokalizacja
- Adres łódzkie, Łódź m., Łódź
Opis nieruchomości
Nieruchomość na kompleks biurowo-usługowy.
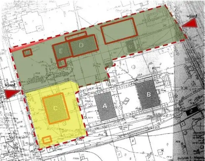
Na terenie nieruchomości usytuowany jest budynek biurowo-techniczny o powierzchni 1 306 m2, składający się z części A i B, połączonych ze sobą dawnym bunkrem.
Ponadto na działce znajdują się drobne zabudowania: 2 budynki techniczne z pomieszczeniami biurowymi o pow. 253,89 m2 i 92,07 m2, cztery garaże oraz magazyn paliw.
Istnieje możliwość rozbiórki tych obiektów. Grunt ma korzystny, regularny kształt, a jego powierzchnia wynosi 8 823 m2. Teren ogrodzony, częściowo porośnięty trawą. Na
dziedzińcu znajduje się utwardzony plac zagospodarowany na parking naziemny na 30 samochodów.
Teren nieruchomości przeciętnie zagospodarowany, oświetlony, ciągi piesze wyłożone płytami chodnikowymi, ciągi jezdne utwardzone asfaltem, powierzchnie biologicznie czynne obsadzone roślinnością trawiastą i drzewami.
Dojazd do działek z dwóch stron, bezpośrednio z ulic asfaltowych.
Nieruchomość położona w północnej części miasta, w dzielnicy Bałuty, w odległości ok. 7 km od centrum, bezpośrednio przy drodze krajowej nr 1 Gdańsk – Cieszyn.
Możliwe wykorzystanie nieruchomości
Na terenie nieruchomości możliwa jest budowa kompleksu biurowo-usługowego. Koncepcja zakłada powstanie 3 budynków: rozbudowę o jedną kondygnację
istniejącego budynku, składającego się z części A i B – budynek U3, budowę dwóch nowych obiektów – budynki U1 i U2.
Nowe budynki (U1, U2, U3) zaprojektowane zostały tak, by skalą i charakterem zabudowy tworzyć spójny zespół obiektów usługowych. Zaproponowano nowoczesne materiały do wykończenia elewacji jak płytki klinkierowe, miejscowo metal w odcieniach szarości i bieli oraz duże przeszklenia.
Budynki U1 i U2
Na terenie zaplanowano dwa nowe budynki usługowe wolnostojące: U1 i U2. Pierwszy z nich – U1 to czterokondygnacyjny obiekt z podziemną halą garażową oraz klatką schodową i wejściem bezpośrednio z ulicy. Drugi – U2 posiada trzy kondygnacje, z wejściem od strony północnej i południowej. Na parterze budynków mieszczą się lokale usługowe. Ponadto na piętrach lokale dostępne z przeszklonego korytarza wewnętrznego.
Budynki ze względu na bezpieczeństwo pożarowe posiadają dwie odrębne klatki schodowe. Dostawy do lokali odbywać się będą: w U1 od strony północnej, w U2 od ul. Kasztanowej. Obydwa budynki posiadają pomieszczenia na odpady, techniczne, porządkowe, sanitarne oraz windy osobowe i towarowe.
Budynek U3
Budynek usługowy wolnostojący U3 przewidziany jako rozbudowa i nadbudowa budynków istniejących A i B – bez zmian pozostają ich ściany zewnętrzne i nośne,
otwory okienne i drzwiowe w ścianach zewnętrznych oraz istniejące klatki schodowe w budynku B, które prowadzą do części podziemnej. Koncepcja zakłada nadbudowę dodatkowej kondygnacji naziemnej, której budowa wyczerpuje przewidzianą w MPZP intensywność zabudowy.
Budynek posiada wejścia od strony ulicy Kasztanowej i drogi wewnętrznej. Od strony południowej zaplanowano drogę dla dostaw do lokali oraz obsługi istniejącego podziemnego bunkra technicznego. Ze względu na bezpieczeństwo pożarowe budynek posiada dwie odrębne klatki schodowe, jedną istniejącą w budynku B oraz zewnętrzną. Wysokość budynku: 6,45 m. Budynek posiada pomieszczenie na odpady, techniczne, porządkowe, sanitarne oraz winda osobowa i towarowa.
Sprzedający zastrzega, że wskazane w niniejszej ofercie dane nieruchomości określające jej potencjał inwestycyjny, w szczególności w zakresie podanych wartości PUM/PUU stanowią estymację Sprzedającego i mogą różnić się od wartości rzeczywistych. Z uwagi na powyższe dane te nie stanowią wiążącego elementu oferty.
Uwarunkowania planistyczne
MPZP z dnia 25 stycznia 2018 r.
1. przeznaczenie podstawowe - zabudowa usługowa;
2. przeznaczenie uzupełniające - infrastruktura techniczna.
3. Teren oznaczony symbolem 3U znajduje się w strefie ochrony archeologicznej.
4. wskaźniki zagospodarowania terenu:
a) wskaźnik powierzchni zabudowy maksimum 35%,
b) intensywność zabudowy: minimum 0,1, maksimum 0,7,
c) wskaźnik powierzchni biologicznie czynnej: - minimum 20%,
d) wysokość zabudowy:
- obiektów budowlanych, z wyłączeniem budynków, w terenie oznaczonym symbolem 3U - maksimum 50,0 m,
- budynków usługowych - maksimum 10,5 m,
- budynków gospodarczych i garażowych - maksimum 5,0 m,
e) dachy o pochyleniu 30% lub dachy płaskie.
WARIANT I: MPZP z dnia 25 stycznia 2018 r. Plan pozwala zrealizować obiekty usługowe o wysokości 2,5 kondygnacji w tym użytkowe poddasze o całkowitej powierzchni PUU wynoszącej około 3700 m2.
WARIANT II: MPZP z dnia 25 stycznia 2018 r. Plan pozwala zrealizować obiekty usługowe o wysokości 3 kondygnacji o całkowitej powierzchni PUU wynoszącej około 3700 m2.
W obu Wariantach wzrost powierzchni PUU może wynieść około 3000 m2 .
Założenia sprzedaży
Ustanowienie na czas nieokreślony nieodpłatnej służebności przesyłu na rzecz Sprzedającego na następujących warunkach:
- zakres użytkowania w budynkach: 389,86 m2
- zakres służebności w gruncie : 665,44 m2
- zakres służebności na gruncie : 160,50 m2
- użytkowanie gruntu związane z dojściem i dojazdem do wieży : 256 m2
Ustanowienie na czas nieokreślony nieodpłatnego użytkowania powierzchni elewacji na rzecz Sprzedającego na następujących warunkach:
- zakres użytkowania: 26 m2
Koncepcja zakłada:
- pozostawienie dla celów powierzchni objętych ograniczonym prawom rzeczowym opisanym powyżej powierzchni w podziemnym bunkrze i masztu
- likwidację podziemnego zbiornika paliwa