Mieszkanie na sprzedaż

















Szczegóły ogłoszenia
- Symbol oferty CLV-MS-8219
- Typ oferty mieszkanie na sprzedaż
- Cena 615 000 zł
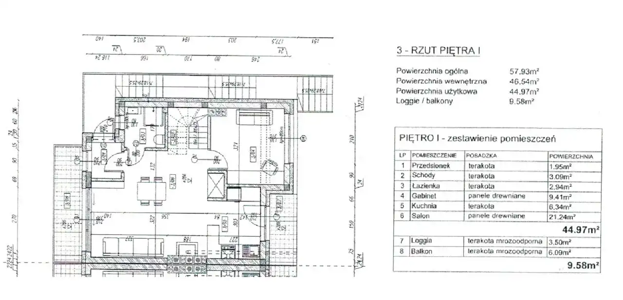
- Charakterystyka mieszkania 97.87 m2, 4 pokoje
- Budynek nowe budownictwo; rok budowy: 2020
- Rozkład mieszkania 1p piętro
- Media Ogrzewanie: C.O. GAZOWE; Woda: ciepła - piecyk gazowy; Gaz: jest
- Bezpieczeństwo Rolety antywłamaniowe
- Balkon duży
- Czynsz 1 zł
- Dojazd asfalt
- Garaż miejsce postojowe przed budynkiem
- Ilość sypialni 4
- Instalacje nowe
- Okna PCV
- Otoczenie centrum miasta
- Stan lokalu do wprowadzenia
- Technologia budowlana tradycyjna
Lokalizacja
- Adres lubelskie, Lubartów (gw)
Opis nieruchomości
Na sprzedaż: Nowoczesne, dwupoziomowe mieszkanie bezczynszowe – Lubartów
BEZ PROWIZJI !Lokalizacja: Lubartów, woj. lubelskie (ok. 20 min od Lublina) / po wybudowaniu nowej trasy jedynie 10 minut od Lublina.
Rok budowy: 2020
Powierzchnia: ok. 100 m²
Piętro: Piętro 1. i 2. poziom w kameralnym budynku 2-piętrowym
Status: Bezczynszowe
Stan: W pełni wyposażone, gotowe do zamieszkania – "do wejścia od zaraz"
Na sprzedaż oferujemy komfortowe, przestronne dwupoziomowe mieszkanie o powierzchni około 100 m², zlokalizowane w nowoczesnym budynku z 2020 roku, w spokojnej części Lubartowa, z bardzo dobrym dojazdem do Lublina.
Mieszkanie znajduje się na 1. piętrze i poddaszu użytkowym w kameralnym, 2-piętrowym budynku. Nieruchomość nie wymaga żadnych nakładów finansowych – jest w pełni umeblowana i wyposażona, gotowa do zamieszkania od zaraz.
Układ pomieszczeń:
Poziom 1:
-
Przestronny salon z aneksem kuchennym
-
Sypialnia/pokój gościnny/biuro
-
Łazienka z WC i prysznicem
spiżarka -
Przedpokój
Poziom 2 (poddasze użytkowe):
-
Dwie ustawne sypialnie
-
Garderoba lub schowek - wyjście na przestronny strych,
-
Druga łazienka z wanną
Dodatkowe atuty:
-
Bezczynszowe – brak comiesięcznych opłat administracyjnych
-
Nowoczesne wykończenie, wysokiej jakości materiały
-
Miejsce parkingowe przed budynkiem
-
Własne ogrzewanie
-
Blisko sklepy, szkoły, przedszkola i komunikacja
Cena i kontakt:
Szczegóły dotyczące ceny oraz możliwość umówienia się na prezentację – proszę o kontakt telefoniczny lub wiadomość prywatną.