Mieszkanie na wynajem
3 500 zł
128 m2





1 / 5
Szczegóły ogłoszenia
- Symbol oferty DME-MW-5339
- Typ oferty mieszkanie na wynajem
- Czynsz wynajmu 3 500 zł / miesiąc
- Charakterystyka mieszkania 127.68 m2, 4 pokoje
- Budynek szeregowiec
- Rozkład mieszkania 1p piętro
- Stan lokalu do wprowadzenia
Lokalizacja
- Adres dolnośląskie, Lubin, Świerczewskiego
Opis nieruchomości
Oferujemy do wynajęcie bezczynszowe mieszkanie w centrum miasta położone na pierwszym piętrze budynku w zabudowie szeregowej.
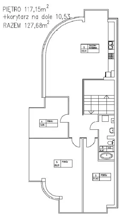
Łączna powierzchnia budynku wynosi 127,68m2 i składa się na nią:
- klatka schodowa o pow. 10, 53 m2
- część mieszkalna na pierwszym piętrze o pow. 117,15 m2, na którą składają się:
* salon z aneksem kuchennym,
* 3 sypialnie,
* łazienka z toaletą.
Lokal bezczynszowy z odrębnym wejściem z ulicy, a na opłaty składają się odstępne oraz media według zużycia.
Mieszkanie wyposażone jest w aneks kuchenny i wymaga doposażenia w meble.
Miel widziane firmy lub rodziny z dziećmi.
W przypadku rodzin wymagana umowa okazjonalna i wskazanie lokalu zastępczego.
Atutem nieruchomości jest świetna okolica - w pobliżu Przedszkole Miejskie nr 10, Zespół Szkół Sportowych,
placówki handlowe, Galeria Cuprum, sklepy, przystanki autobusowe, lubińska kładka.
Cena wynajmu: 3500zł + media do negocjacji
Polecam serdecznie i zapraszam na prezentację,
Ewa Majcher - Turała, tel. 532 325 999
*** Świadczymy Państwu usługi pośrednictwa na podstawie umowy, która zapewnia bezpieczeństwo transakcji i pełne wsparcie naszych doradców. Każda nasza transakcja objęta jest ochroną ubezpieczeniową PZU S.A. Do ceny transakcyjnej nieruchomości należy doliczyć koszt notarialny i koszt obsługi biura nieruchomości. Ze względów bezpieczeństwa prezentacja nieruchomości wiąże się z obowiązkiem podania swoich danych: imienia, nazwiska a także złożenia podpisu na wskazaniu adresowym i dokumentów dot. RODO.***
Łączna powierzchnia budynku wynosi 127,68m2 i składa się na nią:
- klatka schodowa o pow. 10, 53 m2
- część mieszkalna na pierwszym piętrze o pow. 117,15 m2, na którą składają się:
* salon z aneksem kuchennym,
* 3 sypialnie,
* łazienka z toaletą.
Lokal bezczynszowy z odrębnym wejściem z ulicy, a na opłaty składają się odstępne oraz media według zużycia.
Mieszkanie wyposażone jest w aneks kuchenny i wymaga doposażenia w meble.
Miel widziane firmy lub rodziny z dziećmi.
W przypadku rodzin wymagana umowa okazjonalna i wskazanie lokalu zastępczego.
Atutem nieruchomości jest świetna okolica - w pobliżu Przedszkole Miejskie nr 10, Zespół Szkół Sportowych,
placówki handlowe, Galeria Cuprum, sklepy, przystanki autobusowe, lubińska kładka.
Cena wynajmu: 3500zł + media do negocjacji
Polecam serdecznie i zapraszam na prezentację,
Ewa Majcher - Turała, tel. 532 325 999
*** Świadczymy Państwu usługi pośrednictwa na podstawie umowy, która zapewnia bezpieczeństwo transakcji i pełne wsparcie naszych doradców. Każda nasza transakcja objęta jest ochroną ubezpieczeniową PZU S.A. Do ceny transakcyjnej nieruchomości należy doliczyć koszt notarialny i koszt obsługi biura nieruchomości. Ze względów bezpieczeństwa prezentacja nieruchomości wiąże się z obowiązkiem podania swoich danych: imienia, nazwiska a także złożenia podpisu na wskazaniu adresowym i dokumentów dot. RODO.***
Nota prawna
Opis oferty zawarty na stronie internetowej sporządzany jest na podstawie oględzin nieruchomości oraz informacji uzyskanych od właściciela, może podlegać aktualizacji i nie stanowi oferty określonej w art. 66 i następnych K.C.
Formularz kontaktowy