Działka na sprzedaż
1 395 000 zł
2 662 m2









1 / 9
Szczegóły ogłoszenia
- Symbol oferty LND-GS-6011
- Typ oferty działka na sprzedaż
- Cena 1 395 000 zł
- Charakterystyka mieszkania 2662 m2
- Media Woda: ciepła - miejska; Kanalizacja: brak; Prąd: na działce; Gaz: w drodze dojazdowej
- Bezpieczeństwo ogrodzenie działki: siatka w ramach
- Dojazd asfalt
- Działka częściowo zagospodarowana, trapez
Lokalizacja
- Adres lubelskie, Lublin, Szerokie
Opis nieruchomości
Na sprzedaż działka o powierzchni 2662m2 z projektem pod budynek biurowo-usługowy - okolice ul. Nałęczowskiej.
Kształt działki - Trapez, wymiary około 54m X 76m (licząc po dłuższych krawędziach działki)
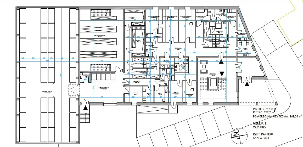
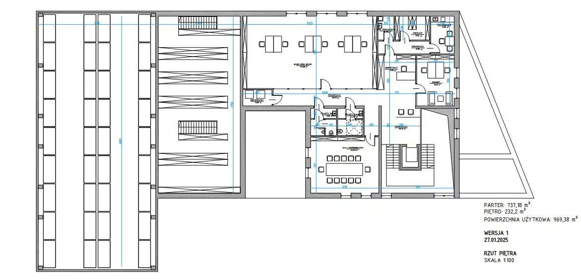
Koncepcja na budowę budynku biurowo-usługowego o pow. 969,38m2:
- hala 737,18m2 na paterze
- biura 232,2m2 z tarasem na piętrze
Działka oznaczona symbolem U- usługi ,
U - usługi z podstawowym przeznaczeniem gruntów pod:
a) banki, instytucje ubezpieczeń, dyrekcje lub zarządy jednostek gospodarczych, obiekty jednostek
projektowych, obiekty handlu detalicznego i hurtowego, obiekty gastronomii, nieuciążliwych zakładów
produkcyjnych oraz rzemiosła, obiekty turystyki, tereny koncentracji usług,usługi łączności.
Dopuszcza się budynki o wysokości do 2 kondygnacji w tym druga może stanowić użytkowe
poddasze,
Zabudowa działki : 20 %.
Media:
- prąd na działce
- woda na działce
- gaz w odległości około 17m od granicy działki
- telekomunikacja w granicy działki
Działka częściowo utwardzona kostką oraz płytami betonowymi, (budowlą - można amortyzować na firmę).
Działka ogrodzona z 3 stron,
Podana cena netto ( + VAT 23%) - podlega negocjacji!
Polecamy i zapraszamy na naszą stronę internetową - Lubelskie Nieruchomości Drabik !
Kształt działki - Trapez, wymiary około 54m X 76m (licząc po dłuższych krawędziach działki)
Koncepcja na budowę budynku biurowo-usługowego o pow. 969,38m2:
- hala 737,18m2 na paterze
- biura 232,2m2 z tarasem na piętrze
Działka oznaczona symbolem U- usługi ,
U - usługi z podstawowym przeznaczeniem gruntów pod:
a) banki, instytucje ubezpieczeń, dyrekcje lub zarządy jednostek gospodarczych, obiekty jednostek
projektowych, obiekty handlu detalicznego i hurtowego, obiekty gastronomii, nieuciążliwych zakładów
produkcyjnych oraz rzemiosła, obiekty turystyki, tereny koncentracji usług,usługi łączności.
Dopuszcza się budynki o wysokości do 2 kondygnacji w tym druga może stanowić użytkowe
poddasze,
Zabudowa działki : 20 %.
Media:
- prąd na działce
- woda na działce
- gaz w odległości około 17m od granicy działki
- telekomunikacja w granicy działki
Działka częściowo utwardzona kostką oraz płytami betonowymi, (budowlą - można amortyzować na firmę).
Działka ogrodzona z 3 stron,
Podana cena netto ( + VAT 23%) - podlega negocjacji!
Polecamy i zapraszamy na naszą stronę internetową - Lubelskie Nieruchomości Drabik !
Nota prawna
Opis oferty zawarty na stronie internetowej sporządzany jest na podstawie oględzin nieruchomości oraz informacji uzyskanych od właściciela, może podlegać aktualizacji i nie stanowi oferty określonej w art. 66 i następnych K.C.
Kalkulator kredytowy
Formularz kontaktowy