Lokal na wynajem
0 zł
1 955 m2









1 / 9
Szczegóły ogłoszenia
- Symbol oferty LND-LW-6179
- Typ oferty lokal na wynajem
- Czynsz wynajmu 0 zł / miesiąc
- Charakterystyka mieszkania 1954.8 m2
- Kaucja do uzgodnienia
Lokalizacja
- Adres lubelskie, Lublin, Ponikwoda
Opis nieruchomości
Do wynajęcia lokale usługowe - Lublin, Ponikwoda
Lokale na trzech kondygnacjach, które można dowolnie dzielić i łączyć !
Stan deweloperski do aranżacji,
Istnieje możliwość wykończenia lokalu przez Wynajmującego - indywidualne ustalenia,
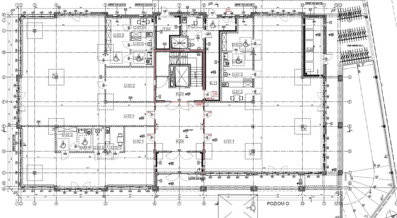
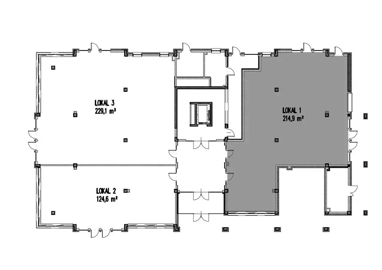
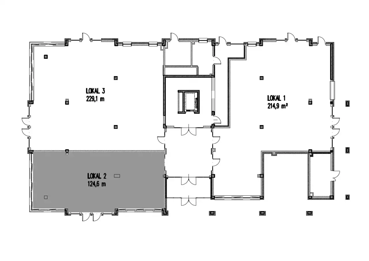
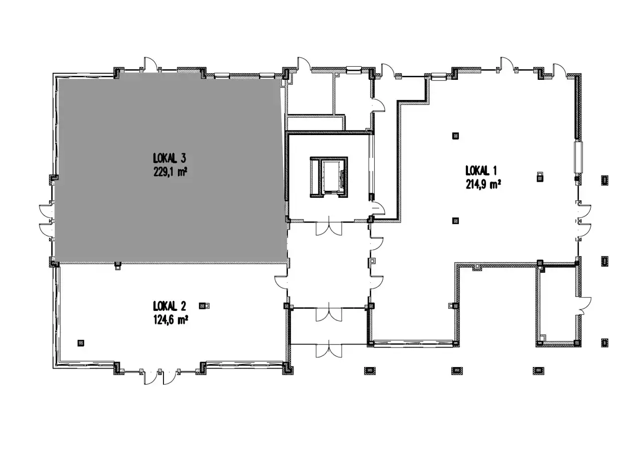
Parter o łącznej powierzchni około 568,6m2
(obecnie dostępne lokale: 124,6m2 ; 214,9m2 ; 229,1m2)
Nośność stropu – 5Tm2.
Lokale wyposażone w instalację do zamontowania klimatyzacji.
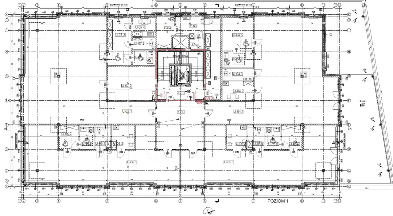
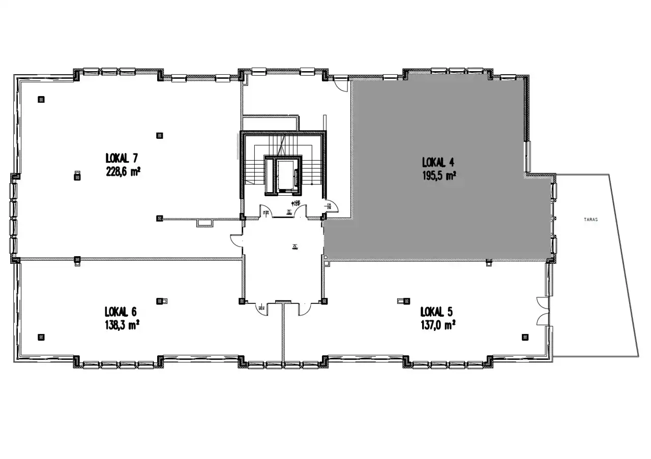
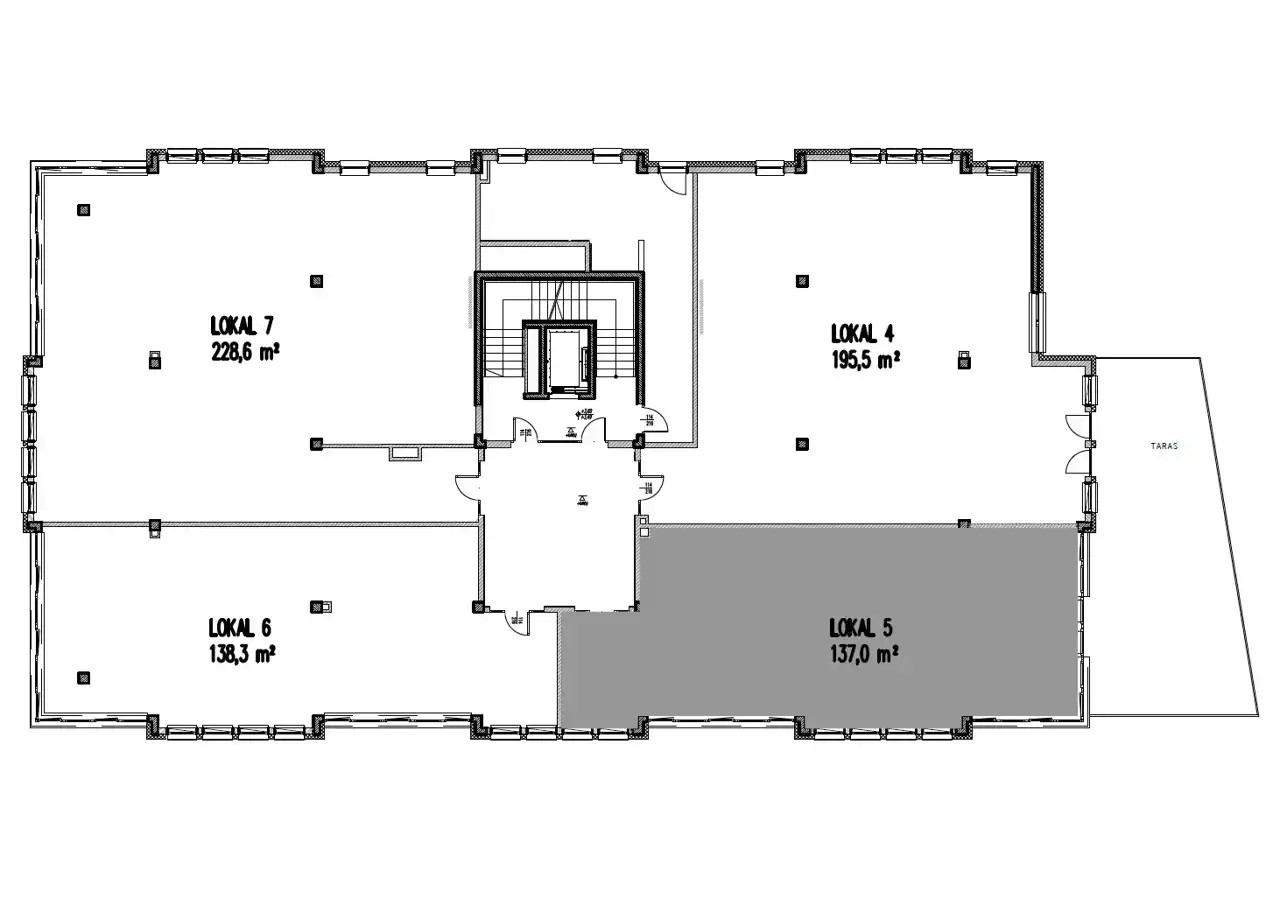
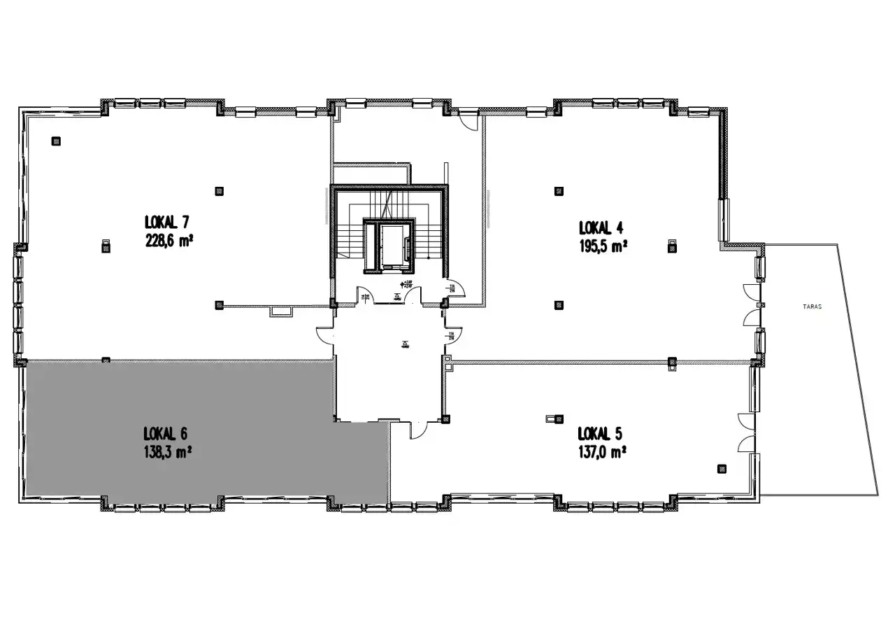
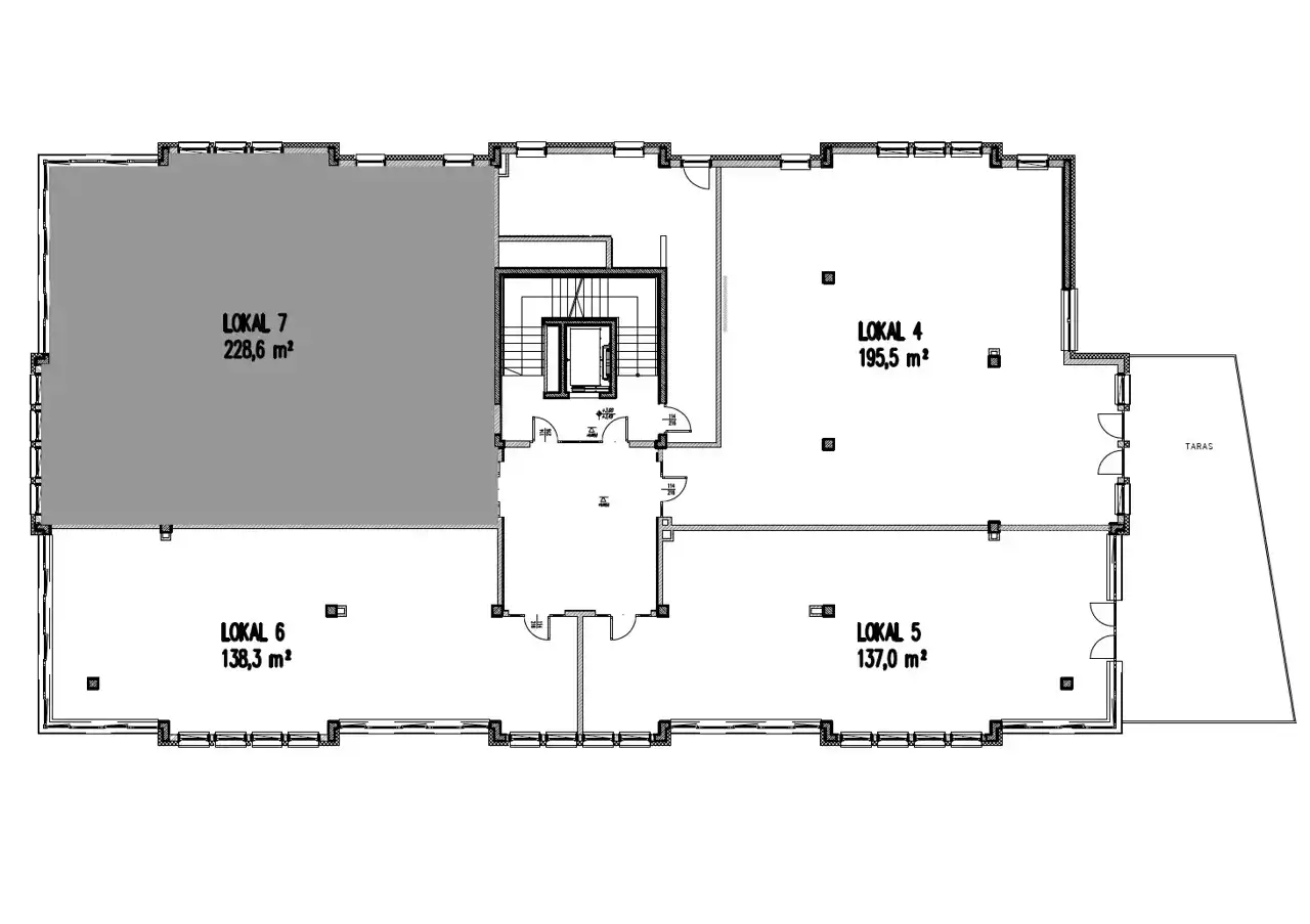
Piętro 1 o łącznej powierzchni około 693,1m2
(obecnie dostępne lokale: 130,7m2; 138,3m2; 195,5m2; 228,6m2
Piętro 2 o łącznej powierzchni około 693,1m2
(obecnie lokale mieszkalne, możliwość przystosowania pod usługi),
Ogrzewanie gazowe,
Parking nadziemny na około 30 samochodów oraz podziemny na około 25 samochodów,
Proponowane czynsze najmu:
parter 55zł netto/m2 + opłata eksploatacyjna 10zł netto/m2
1 piętro 50zł netto/m2 + opłata eksploatacyjna 10zł netto/m2
Polecamy i zapraszamy na naszą stronę intranetową - Lubelskie Nieruchomości Drabik !
Lokale na trzech kondygnacjach, które można dowolnie dzielić i łączyć !
Stan deweloperski do aranżacji,
Istnieje możliwość wykończenia lokalu przez Wynajmującego - indywidualne ustalenia,
Parter o łącznej powierzchni około 568,6m2
(obecnie dostępne lokale: 124,6m2 ; 214,9m2 ; 229,1m2)
Nośność stropu – 5Tm2.
Lokale wyposażone w instalację do zamontowania klimatyzacji.
Piętro 1 o łącznej powierzchni około 693,1m2
(obecnie dostępne lokale: 130,7m2; 138,3m2; 195,5m2; 228,6m2
Piętro 2 o łącznej powierzchni około 693,1m2
(obecnie lokale mieszkalne, możliwość przystosowania pod usługi),
Ogrzewanie gazowe,
Parking nadziemny na około 30 samochodów oraz podziemny na około 25 samochodów,
Proponowane czynsze najmu:
parter 55zł netto/m2 + opłata eksploatacyjna 10zł netto/m2
1 piętro 50zł netto/m2 + opłata eksploatacyjna 10zł netto/m2
Polecamy i zapraszamy na naszą stronę intranetową - Lubelskie Nieruchomości Drabik !
Nota prawna
Opis oferty zawarty na stronie internetowej sporządzany jest na podstawie oględzin nieruchomości oraz informacji uzyskanych od właściciela, może podlegać aktualizacji i nie stanowi oferty określonej w art. 66 i następnych K.C.
Formularz kontaktowy