Lokal na wynajem



Szczegóły ogłoszenia
- Symbol oferty BSH-LW-3140
- Typ oferty lokal na wynajem
- Czynsz wynajmu 20 805 zł / miesiąc
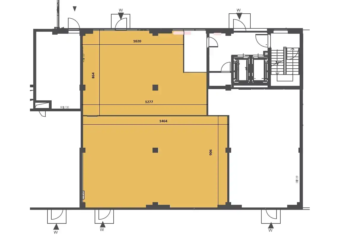
- Charakterystyka mieszkania 219 m2, 2 pokoje
- Rozkład mieszkania parter piętro
- Okna PCV
- Stan lokalu deweloperski
Lokalizacja
- Adres lubelskie, Lublin, Szerokie
Opis nieruchomości
Lokal użytkowy na wynajem – 219 m² | parter | nowe osiedle | ul. Nałęczowska 16
Do wynajęcia przestronny lokal użytkowy o powierzchni 219 m², zlokalizowany na parterze nowej inwestycji przy ul. Nałęczowskiej 16. Nieruchomość znajduje się w dynamicznie rozwijającym się rejonie, w otoczeniu nowego osiedla mieszkaniowego, co gwarantuje stały przepływ klientów.
Lokal posiada dwa niezależne wejścia z dwóch stron budynku, co daje szerokie możliwości aranżacyjne oraz pozwala na podział przestrzeni lub obsługę różnych stref działalności. Dużym atutem są duże, przeszklone witryny, zapewniające doskonazną ekspozycję oraz dostęp światła dziennego – idealne pod działalność wymagającą widoczności i reklamy.
Przestrzeń w stanie deweloperskim umożliwia pełną adaptację lokalu według potrzeb najemcy.
Lokal idealnie nadaje się m.in. na:
-
przedszkole lub żłobek
-
sklep spożywczy / osiedlowy
-
placówkę medyczną (przychodnia, gabinety specjalistyczne, stomatologia)
-
salon kosmetyczny / beauty / SPA
-
fitness, studio treningowe, joga, pilates
-
biuro, siedzibę firmy
-
restaurację, kawiarnię lub bistro (po uzgodnieniu warunków technicznych)
-
showroom lub punkt usługowy
Atuty nieruchomości:
-
parter
-
219 m² powierzchni
-
dwa wejścia
-
duże witryny
-
nowe osiedle – potencjał stałych klientów
-
nowoczesna inwestycja
-
elastyczne możliwości aranżacji
Lokal doskonale sprawdzi się dla firm szukających reprezentacyjnej przestrzeni w rozwijającej się lokalizacji z dużym potencjałem biznesowym.