Lokal na wynajem
2 860 zł
74 m2
















1 / 16
Szczegóły ogłoszenia
- Symbol oferty LEM-LW-8858
- Typ oferty lokal na wynajem
- Czynsz wynajmu 2 860 zł / miesiąc
- Charakterystyka mieszkania 74 m2
- Budynek biurowo-usługowy; rok budowy: 2006
- Rozkład mieszkania 1p piętro
- Media Ogrzewanie: gazowe
- Miejsce parkingowe Tak
- Dojazd asfalt
- Instalacje dobre
- Kaucja do uzgodnienia
- Okna PCV
- Stan lokalu dobry
Lokalizacja
- Adres lubelskie, Lublin m., Lublin
Opis nieruchomości
Atrakcyjny lokal biurowo-usługowy przy ul. Lubartowskiej.
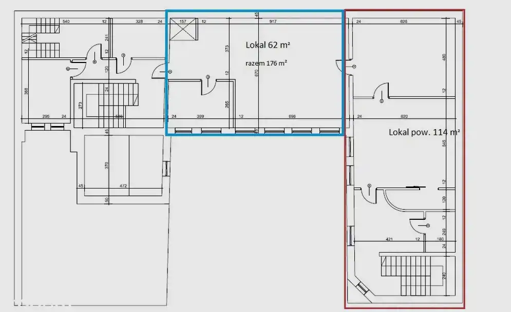
1 piętro w budynku z 2006 r. z 4 miejscami parkingowymi dla Najemcy i jego klientów.
Lokal składa się z pomieszczenia biurowego o powierzchni 64m2, aneksu kuchennego, WC a ponadto klatki schodowej, którą można zaadaptować na kolejne pomieszczenie biurowe.
Rozkład pomieszczeń sprawdzi się jako siedziba firmy usługowej, biura albo jako sklep.
Bardzo korzystna lokalizacja w sąsiedztwie lokali komercyjnych: sklepów i punktów usługowych, przy uczęszczanej ulicy, blisko centrum a także przystanków autobusowych.
Wejście do lokalu przez indywidualną klatkę schodową, z placu parkingowego zamykanego bramą.
Czynsz najmu wynosi 2850zł/m-c brutto (z 23% VAT).
Opłaty za ogrzewanie lokalu do podziału z pozostałymi najemcami na podstawie zajmowanej powierzchni. Dodatkowo płatne będą: woda i prąd wg wskazań podliczników.
W lokalu jest klimatyzacja!
Zapraszamy zainteresowanych!
1 piętro w budynku z 2006 r. z 4 miejscami parkingowymi dla Najemcy i jego klientów.
Lokal składa się z pomieszczenia biurowego o powierzchni 64m2, aneksu kuchennego, WC a ponadto klatki schodowej, którą można zaadaptować na kolejne pomieszczenie biurowe.
Rozkład pomieszczeń sprawdzi się jako siedziba firmy usługowej, biura albo jako sklep.
Bardzo korzystna lokalizacja w sąsiedztwie lokali komercyjnych: sklepów i punktów usługowych, przy uczęszczanej ulicy, blisko centrum a także przystanków autobusowych.
Wejście do lokalu przez indywidualną klatkę schodową, z placu parkingowego zamykanego bramą.
Czynsz najmu wynosi 2850zł/m-c brutto (z 23% VAT).
Opłaty za ogrzewanie lokalu do podziału z pozostałymi najemcami na podstawie zajmowanej powierzchni. Dodatkowo płatne będą: woda i prąd wg wskazań podliczników.
W lokalu jest klimatyzacja!
Zapraszamy zainteresowanych!
Nota prawna
Opis oferty zawarty na stronie internetowej sporządzany jest na podstawie oględzin nieruchomości oraz informacji uzyskanych od właściciela, może podlegać aktualizacji i nie stanowi oferty określonej w art. 66 i następnych K.C.
Formularz kontaktowy