Mieszkanie na sprzedaż
440 958 zł
61 m2














1 / 14
Szczegóły ogłoszenia
- Symbol oferty FRC-MS-199157
- Typ oferty mieszkanie na sprzedaż
- Cena 440 958 zł
- Charakterystyka mieszkania 60.51 m2, 3 pokoje
- Budynek blok; rok budowy: 2022
- Rozkład mieszkania 1p piętro
- Media Ogrzewanie: gazowe; Woda: ciepła - piecyk gazowy; Gaz: tak - miejski
- Balkon jest
- Czynsz Czynsz letni: 200 zł
- Dojazd asfalt
- Ilość sypialni 2
- Instalacje nowe
- Okna PCV
- Otoczenie działki zabudowane
- Stan lokalu do wprowadzenia
- Technologia budowlana silikat
- Umeblowanie częściowo umeblowane
- Winda Tak
Lokalizacja
- Adres wielkopolskie, Margonin
Opis nieruchomości
NA SPRZEDAŻ MIESZKANIE 3-POKOJOWE NA I PIĘTRZE
Z OGÓLNODOSTĘPNYM MIEJSCEM POSTOJOWYM I KOMÓRKĄ LOKATORSKĄ W NOWYM BLOKU Z WINDĄ W MARGONINIE
MIESZKANIE WYKOŃCZONE POD KLUCZ !!!
Kupujący nie płaci prowizji ani podatku PCC !!!
ZALETY TAKIEGO ROZWIĄZANIA:
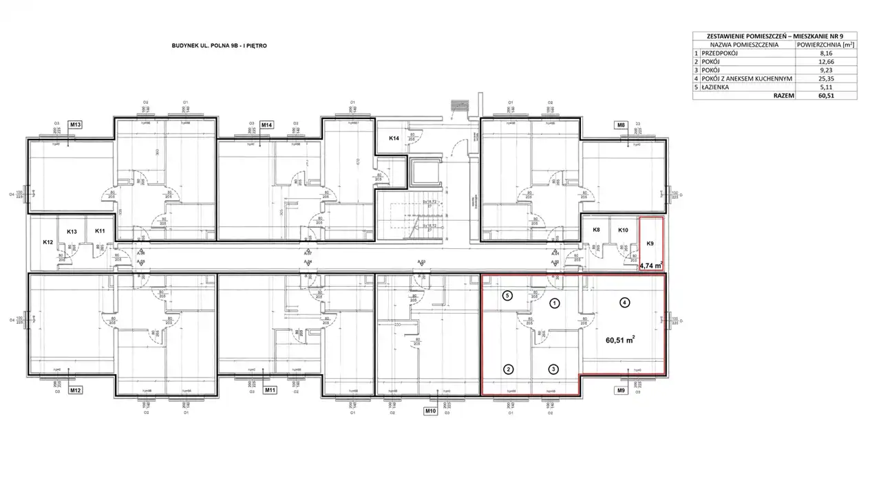
Powierzchnia lokalu mieszkalnego wynosi 60,51 m2, w skład którego wchodzi:
- pokój dzienny z aneksem kuchennym 25,35 m2,
- pokój 12,66 m2,
- pokój 9,23 m2,
- łazienka 5,11 m2
- przedpokój 8,16 m2
Do mieszkania przynależy komórka lokatorska o powierzchni 4,74 m2, która znajduje się na tym samym piętrze co mieszkanie, a co bardzo ułatwia korzystanie z niej na co dzień.
Mieszkania oddawane w standardzie "pod klucz"
W ramach podanej ceny mają Państwo zapewnione wykonanie:
- ściany i sufity pokryte gładzią i pomalowane
- ułożone panele i płytki wraz z listwami przypodłogowymi
- zamontowane ościeżnice i drzwi wewnętrzne
- zamontowane gniazdka, włączniki oraz oprawy świetlne
- zamontowane parapety wewnętrzne
- stolarka okienna PCV - wewnątrz biała, na zewnątrz okleina w kolorze antracytowym, okna trzy szybowe z roletami zewnętrznymi
- w łazience pełna ceramika (wc geberit, umywalka), prysznic, baterie, płytki na ścianach i podłodze,
- łazienka wyposażona w zabudowę pod wymiar oraz pralkę
- w kuchni zabudowa kuchenna wraz ze sprzętem AGD
- w przedpokoju szafa w zabudowie
Cena 440 958 zł
Podana cena jest ceną brutto, zawiera podatek VAT.
POLECAM I ZAPRASZAM NA PREZENTACJĘ
Z OGÓLNODOSTĘPNYM MIEJSCEM POSTOJOWYM I KOMÓRKĄ LOKATORSKĄ W NOWYM BLOKU Z WINDĄ W MARGONINIE
MIESZKANIE WYKOŃCZONE POD KLUCZ !!!
Kupujący nie płaci prowizji ani podatku PCC !!!
ZALETY TAKIEGO ROZWIĄZANIA:
- oszczędność czasu
- mniejszy stres związany z szukaniem ekipy remontowej
- spójność estetyczna
- wygoda dla osób zapracowanych lub inwestujących w wynajem
Powierzchnia lokalu mieszkalnego wynosi 60,51 m2, w skład którego wchodzi:
- pokój dzienny z aneksem kuchennym 25,35 m2,
- pokój 12,66 m2,
- pokój 9,23 m2,
- łazienka 5,11 m2
- przedpokój 8,16 m2
Do mieszkania przynależy komórka lokatorska o powierzchni 4,74 m2, która znajduje się na tym samym piętrze co mieszkanie, a co bardzo ułatwia korzystanie z niej na co dzień.
Mieszkania oddawane w standardzie "pod klucz"
W ramach podanej ceny mają Państwo zapewnione wykonanie:
- ściany i sufity pokryte gładzią i pomalowane
- ułożone panele i płytki wraz z listwami przypodłogowymi
- zamontowane ościeżnice i drzwi wewnętrzne
- zamontowane gniazdka, włączniki oraz oprawy świetlne
- zamontowane parapety wewnętrzne
- stolarka okienna PCV - wewnątrz biała, na zewnątrz okleina w kolorze antracytowym, okna trzy szybowe z roletami zewnętrznymi
- w łazience pełna ceramika (wc geberit, umywalka), prysznic, baterie, płytki na ścianach i podłodze,
- łazienka wyposażona w zabudowę pod wymiar oraz pralkę
- w kuchni zabudowa kuchenna wraz ze sprzętem AGD
- w przedpokoju szafa w zabudowie
Cena 440 958 zł
Podana cena jest ceną brutto, zawiera podatek VAT.
POLECAM I ZAPRASZAM NA PREZENTACJĘ
Nota prawna
Opis oferty zawarty na stronie internetowej sporządzany jest na podstawie oględzin nieruchomości oraz informacji uzyskanych od właściciela, może podlegać aktualizacji i nie stanowi oferty określonej w art. 66 i następnych K.C.
Kalkulator kredytowy
Formularz kontaktowy