Mieszkanie na sprzedaż








Szczegóły ogłoszenia
- Symbol oferty GRS-MS-2983
- Typ oferty mieszkanie na sprzedaż
- Cena 79 000 zł
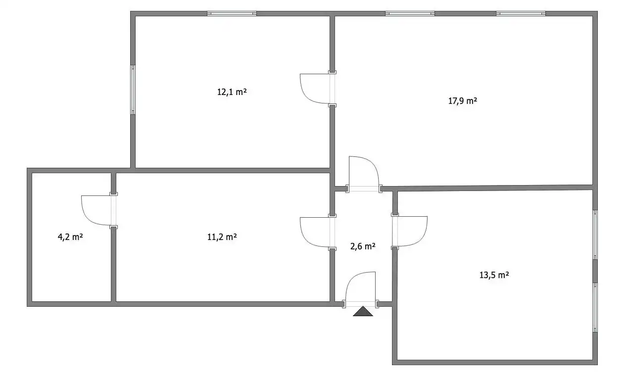
- Charakterystyka mieszkania 62.15 m2, 3 pokoje
- Budynek budynek wielorodzinny; rok budowy: 1940
- Rozkład mieszkania 1p piętro
- Okna PCV
- Stan lokalu do generalnego remontu
- Technologia budowlana beton, cegła
- Umeblowanie brak
Lokalizacja
- Adres pomorskie, bytowski, Miastko (gw)
Opis nieruchomości
Na sprzedaż mieszkanie 62,15 m² w malowniczym Słosinku – między jeziorami!
Oferujemy Państwu mieszkanie o powierzchni 62,15 m², położone na pierwszym piętrze kameralnego, dwupiętrowego budynku w Słosinku, zaledwie 11 km od Miastka. Lokalizacja ta znajduje się w zachodniej części Pojezierza Bytowskiego, w gminie Miastko, w powiecie bytowskim, w województwie pomorskim – w otoczeniu lasów i jezior: Słosineckiego Wielkiego i Słosineckiego Małego.
Układ mieszkania:
- 2 przestronne pokoje,
- kuchnia,
- przedpokój,
- łazienka,
- klimatyczna weranda.
Mieszkanie wymaga generalnego remontu, co daje możliwość własnej aranżacji i dopasowania przestrzeni do indywidualnych potrzeb.
Atuty nieruchomości:
- nowe okna PCV z parapetami,
- nowe drzwi wejściowe,
- duże, ustawne pomieszczenia,
- widne i słoneczne wnętrza,
- doprowadzone wszystkie niezbędne instalacje: elektryczna, wodociągowa, kanalizacyjna oraz telekomunikacyjna,
- ogrzewanie centralne z pieca na węgiel lub drewno.
To idealna propozycja dla osób szukających mieszkania w cichej i zielonej okolicy, blisko jezior i natury, a jednocześnie z dobrym dojazdem do Miastka.
CENA: 79 000 PLN
Strona Kupująca pokrywa wynagrodzenie prowizyjne dla biura.
Więcej informacji uzyskasz kontaktując się z nami:
799 333 633 – Dominika Wójcik (opiekun oferty)
728 20 20 30 – Marta Patyna
669 647 067 – Karolina Jakuczun
503 901 101 – Adrianna Iwanicka, licencja 23687
728 111 007 – Przemysław Pryzwan
799 799 397 – Dominika Szramiak
Serdecznie zapraszam Państwa na prezentację nieruchomości, z przyjemnością odpowiem na wszelkie pytania oraz udzielę dodatkowych informacji.
Zamierzasz kupić nieruchomość i skorzystać z finansowania banku? Pomożemy dokonać Ci dobrego wyboru najlepszej oferty spośród wielu banków. Nasz doradca dostosuje ofertę kredytu hipotecznego do Twoich potrzeb i oczekiwań oraz będzie do Twojej dyspozycji na każdym etapie procesu kredytowego.
Niniejsza oferta nie stanowi oferty w rozumieniu Kodeksu Cywilnego, a dane w niej zawarte mają jedynie charakter informacyjny i mogą ulec zmianie.