Działka na sprzedaż
1 350 000 zł
1 300 m2





1 / 5
Szczegóły ogłoszenia
- Symbol oferty EMP-GS-10331
- Typ oferty działka na sprzedaż
- Cena 1 350 000 zł
- Charakterystyka mieszkania 1300 m2
- Media Woda: w trakcie prowadzenia; Kanalizacja: w trakcie prowadzenia; Prąd: w ulicy; Gaz: w ulicy
- Bezpieczeństwo ogrodzenie działki: częściowo ogrodzona
- Dojazd droga gruntowa
- Działka Niezagospodarowana, płaska, prostokąt
- Otoczenie działki zabudowane
Lokalizacja
- Adres mazowieckie, Michałowice (gw), Michałowice-Wieś
Opis nieruchomości
Do działki dojedziesz wklejając w Google Maps: 52.164583, 20.893417
https://maps.app.goo.gl/24vBnj6b3LSUtKms8
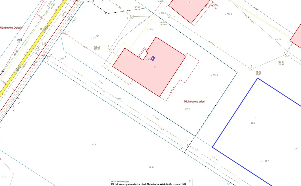
Michałowice Wieś, ul. Wesoła
Numer ewidencyjny 1/47
Media
Prąd i gaz - w odległości około 64m
Woda i kanalizacja - w trakcie prowadzenia
Wymiary
52m x 25m
Działka jest objęta miejscowym planem zagospodarowania przestrzennego pod tereny zabudowy mieszkaniowej jednorodzinnej:
Ustalenia planu (symbol MN):
1. Przeznaczenie podstawowe - zabudowa mieszkaniowa jednorodzinna;
2. Na jednej działce budowlanej dopuszcza się realizację jednego budynku mieszkalnego jednorodzinnego wolnostojącego;
3. Dopuszcza się realizację garaży i budynków gospodarczych;
4. Maksymalna wysokość:
- budynków mieszkalnych – 12 m,
- budynków gospodarczych i garaży – 5 m,
5. maksymalna intensywność zabudowy – 0,6;
6. Maksymalna powierzchnia zabudowy – 30% powierzchni działki budowlanej;
7. Minimalna powierzchnia biologicznie czynna – 60% powierzchni działki budowlanej.
Zapraszam do kontaktu:
Maciej Adamczyk
883-106-453
https://maps.app.goo.gl/24vBnj6b3LSUtKms8
Michałowice Wieś, ul. Wesoła
Numer ewidencyjny 1/47
Media
Prąd i gaz - w odległości około 64m
Woda i kanalizacja - w trakcie prowadzenia
Wymiary
52m x 25m
Działka jest objęta miejscowym planem zagospodarowania przestrzennego pod tereny zabudowy mieszkaniowej jednorodzinnej:
Ustalenia planu (symbol MN):
1. Przeznaczenie podstawowe - zabudowa mieszkaniowa jednorodzinna;
2. Na jednej działce budowlanej dopuszcza się realizację jednego budynku mieszkalnego jednorodzinnego wolnostojącego;
3. Dopuszcza się realizację garaży i budynków gospodarczych;
4. Maksymalna wysokość:
- budynków mieszkalnych – 12 m,
- budynków gospodarczych i garaży – 5 m,
5. maksymalna intensywność zabudowy – 0,6;
6. Maksymalna powierzchnia zabudowy – 30% powierzchni działki budowlanej;
7. Minimalna powierzchnia biologicznie czynna – 60% powierzchni działki budowlanej.
Zapraszam do kontaktu:
Maciej Adamczyk
883-106-453
Nota prawna
Opis oferty zawarty na stronie internetowej sporządzany jest na podstawie oględzin nieruchomości oraz informacji uzyskanych od właściciela, może podlegać aktualizacji i nie stanowi oferty określonej w art. 66 i następnych K.C.
Kalkulator kredytowy
Formularz kontaktowy